"20251205173537:H:0" "20251205173537:H:0" "20251205173537:H:0"
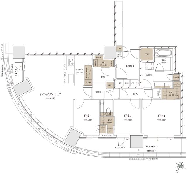
ザ・パークハウス 武蔵小杉タワーズ (間取り図 S-101A)

ザ・パークハウス 武蔵小杉タワーズ (間取り図 S-101A)

価格未定  (サウス 第二期)
1LDK~4LDK | 44.07m2~104.09m2、(トランクルーム面積0.32m2~2.86m2、戸別宅配ボックス面積0.42m2を含む) | JR南武線「武蔵小杉」歩3分~4分
SUUMO(スーモ)新築マンションのザ・パークハウス 武蔵小杉タワーズの間取り(S-101A)詳細情報です。
S-101A
  • 所在地 神奈川県川崎市中原区小杉町1丁目390番1の一部(地番)
  • 交通 JR南武線「武蔵小杉」歩3分~4分
間取りの概要/特徴
価格

未定(サウス 第二期)

間取り
  • 3LDK+2WIC+SIC+2TR
専有面積
  • 101.27m2
バルコニーまたは
テラス面積
  • 20.92m2
その他
  • ※専有面積にトランクルーム面積1.8m2、戸別宅配ボックス0.42m2含む
特徴
キッチン
  • ディスポーザー
  • 浄水器or活水器
立地・配置
  • 角部屋
設備・構造
  • 光ファイバー対応
  • 浴室1.6×2.0M以上
  • リビングダイニング15畳以上
  • 角住戸
  • LD15畳以上

※S=サービスルーム(収納)

【この物件広告についての注釈】

※価格は物件の代金総額を表示しています。消費税が課税される場合は税込み価格を表示しており、10000円未満を切り上げている場合があります。

※住戸別の価格(帯)表記については、そのタイプに含まれるすべての住戸の情報を掲載していない場合があります。住戸タイプと各住戸の価格帯表記について、単位(1000万円・100万円・10万円)が異なる場合があります。

※「モデルルーム」とは、間取りや仕様・設備などを知ることができる施設全般を指し、それらの一部のみ展示している「サンプルルーム」や「ギャラリー」、「インフォメーションセンター」なども含みます。

※完成予想図はいずれも外構、植栽、外観等実際のものとは多少異なることがあります。

※CG合成の画像の場合、実際とは多少異なる場合があります。

※完成後1年以上を経過した未入居物件が掲載される場合があります。ご了承ください。

※掲載の省エネ性能ラベル内の物件・住棟・号室名称については最新のものに変更されている場合があります。

※概要のエネルギー消費性能、断熱性能、目安光熱費については、表示している省エネ性能ラベルによってデータの内容が異なります。販売戸数が複数の住棟ラベル、または住戸ラベルの場合は、原則建築確認が下りている物件全体の最小~最大を、販売戸数1戸の住戸ラベルの場合はその住戸のデータを表示しています。

ザ・パークハウス 武蔵小杉タワーズ 物件概要 サウス 第二期

所在地
神奈川県川崎市中原区小杉町1丁目390番1の一部(地番)
地図を見る
交通 JR南武線「武蔵小杉」歩3分~4分 総戸数 1438戸(サウス/719戸、ノース/719 戸)
間取り 1LDK~4LDK 専有面積 44.07m2~104.09m2、(トランクルーム面積0.32m2~2.86m2、戸別宅配ボックス面積0.42m2を含む)
価格
未定
引渡可能時期 2028年2月中旬予定
販売スケジュール 2026年1月中旬より販売開始予定

情報更新日:2025/12/3

お問い合わせ先

「ザ・パークハウス 武蔵小杉タワーズ」レジデンスギャラリー

0120-320-308 無料

お問合せの際は『SUUMO(スーモ)を見て』とお伝えいただくとスムーズです。

営業時間:平日11:00AM~5:00PM 土日祝日10:00AM~5:00PM

定休日:火曜・水曜・木曜日

※こちらよりお電話させていただく際は「050-1722-6851」より発信いたします。
折り返しいただく際はフリーダイヤルまでおかけください。 本物件は音声ガイダンスにてご案内しております。
サービス向上のため、着信および発信ともに録音させていただいておりますのでご了承ください。

【67731939】ザ・パークハウス 武蔵小杉タワーズ
他の物件も見てみる!

あなたにオススメの物件

PR

条件を変更して物件を探す

ページトップへ戻る
簡単!約2分で完了
以前にもチェックした物件です 簡単!約2分で完了 まずは気軽に資料請求をしてみよう!