階段に手すりをつける、急勾配の階段をつくりかえて安全な階段にする、階段の位置を変えるなど階段リフォームに必要な費用はどれくらいかかるのでしょうか。階段リフォームをするともらえる補助金や減税制度も知っておトクに賢くリフォームしましょう。
価格帯ごとにできる階段リフォームの内容や事例も紹介するので参考にしてください。

記事の目次
屋内階段での高齢者の死亡は年間400人を超える
屋内の高齢者の事故件数は段差などによる転倒に次いで、階段から落ちる事故が占めています。
厚生労働省の人口動態調査(2022年)によると、屋内での事故による死亡者数のうち、階段(および段数の少ないステップ)からの転落・転倒によるものは436人。浴槽内での事故や床でのつまずき、窒息、火災などに次いで多い数となっています。
また、死亡しないまでも階段から落ちて、ケガで救急搬送される人の数も多く、高齢者の屋内転落事故のトップ2840人(東京消防庁2021年)を占めていることから、階段から落ちてケガをする人がとても多いことがわかります(救急搬送データからみる高齢者の事故)。
| 落ちた場所 | 人数(人) |
|---|---|
| 階段 | 2840 |
| ベッド | 1100 |
| 椅子 | 414 |
| 脚立・踏み台・足場 | 367 |
| エスカレーター | 153 |
東京消防庁2021年発表、救急搬送された軽症、中等症、重症・重篤・死亡を含む
※稲城市、島しょ地区を除く
毎日使う階段のリフォームは暮らしに大きく影響します。どんなことができるのか、どんなメリットがあるのかを見ていきましょう。
階段リフォームでバリアフリーにする
階段勾配をゆるくするリフォーム
階段から落ちるなどの事故を防ぐには階段のバリアフリー化が必要です。
古い住宅では階段の勾配が急な場合があります。そもそも現在のバリアフリーの考え方に照らすと建築基準法の基準では勾配がきついためです。
そのため、急な勾配の階段はつくりなおして勾配を緩和するのがよいでしょう。
階段勾配は下図の蹴上げ(けあげ)と踏み面(ふみづら)の寸法で決まります。つまり、蹴上げが高すぎず、踏み面が狭すぎないことが大切です。それによって階段の勾配が決まります。
建築基準法(一般住宅)の基準は、以下です。
国土交通省の「高齢者が居住する住宅の設計に係る指針」では、
勾配が22/21以下、踏み面の寸法は19.5cm以上に、蹴込みの寸法は3cm以下にします。
また、蹴上げの寸法の2倍と踏み面の寸法を合わせて55cm以上65cm以下を提案しています。
これは住宅性能表示制度の高齢者等配慮対策の等級3および2に該当します。
等級は5まであり、等級1が建築基準法レベルです。
スペースにゆとりがあるなら等級4、5(勾配6/7以下)が理想です。
例えば蹴上げの寸法を19cm、踏み面を22cmにした場合、
上記の計算式(蹴上げの寸法の2倍と踏み面の寸法を合わせて55cm以上65cm以下)に当てはめると
蹴上寸法19cm×2+踏み面寸法22cm=60cmで、55cm以上65cm以下に収まります。

階段勾配を緩くするためには階段をつくりなおす必要があります。
既存の階段と同じ場所でつくりなおす場合、階段を緩くすると、既存の階段より長くなります。そのスペースを確保できるかどうかをリフォーム会社と相談しましょう。
階段に手すりを設ける
手すりを付けることでより安全な階段になります。
手すりの設置は既存の階段に手を入れる必要がありません。
ただ、壁に手すりをつけて外れないだけの強度がない場合は、壁の下地を補強しなければならないことがあります。
また、手すりの高さも家族が使いやすいようにリフォーム会社と相談して決めましょう。
手すりの高さの目安は踏み面から75cm~85cm程度ですが、子どものためにもう1本設ける場合は60cm~65cmを目安とします。

階段の見た目がよくなるカバー工法
階段リフォームのメリットの一つが古くなった階段を一新することで、見た目がよくなることです。
ここでは既存の階段を壊すことなく、短工期で仕上がるカバー工法を紹介します。
階段リフォームで比較的簡単にできるのが階段のカバー工法です。
汚れや傷が目立ってきた階段の踏み面や蹴上げなどの表面に、専用の薄い板を釘と接着剤で上張りすることで、階段をつくりかえなくても見た目を一新できます。
階段カバー工法(上張り)の工期は短く2日程度です。


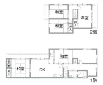
階段を移設し間取り変更する
階段は移設することも可能です。階段の位置を変えることで、大きな間取り変更もできます。
下の例では、フロアの中央にあった階段を外壁側に寄せることで、1階にキッチンを中心とした広い空間をつくりだしています。
2階もスペースを有効に使って、書斎や水まわりスペースを設置できました。
このように階段の移設は、大規模なリフォームの際に行われることが多いです。



階段の種類とリフォームのポイント
リフォームで階段をつくりなおす際に知っておきたいポイントを述べましょう。
直階段と踊り場のある階段の違い
階段を大きく分けるとまっすぐ伸びた直階段と途中で曲がる踊り場のある階段に分かれます。それぞれのメリット・デメリットを見ていきましょう。
直階段はスペースが最小限で済むのがメリットです。
しかし、狭いスペースに設置することで勾配がきつくなることがあります。
一方、途中で曲がる踊り場のある階段は、スペースにゆとりがないとつくれませんが、上り下りがらくな階段になります。

スケルトン階段はリフォーム費用が高くなる傾向
スケルトン階段は鉄骨などの骨組みと踏み面だけでできた階段です。
片側もしくは両側に壁がなく、蹴上げもないので、見通しがよいのが特徴です。
リビング内階段に設けられることが多く、空間を広く見せる効果もあります。
一方で、蹴込み板がないことから幼児や高齢者などには危険です。網を取り付けるなど落下防止対策が必要です。また、見える階段であることから材質やデザインに気を使う必要があり、リフォーム費用が高くなることもあります。

階段移設リフォームの注意点
階段リフォームは、目的によって工事の内容も大きく違ってきます。
階段移設リフォームの注意点を知っておきましょう。
階段の移設は間取りに影響する
既存の階段をこわさずカバー工法できれいにする場合は、家全体の強度や間取りに影響することはありません。
しかし、階段の移設を含むリフォームは、大規模な工事になります。階段の移設は間取りに影響し、関連する工事や工事範囲が広がるためです。そのため階段の移設を含むリフォームは、費用も多額になります。
リフォーム会社としっかり打ち合わせを行い、プランと見積もりをもらって進めましょう。
階段の移設リフォームは建築確認申請が必要
階段は建築基準法上の主要構造部にあたります。
階段の上張り(カバー工法)は、小規模な模様替えの範囲なので、建築確認申請は不要です。
しかし、階段をつくりなおしたり、階段の移設を含むリフォームは、家の構造にも関係してきます。主要構造部の過半にわたるリフォームは、建築確認申請が必要です。リフォーム前に役所の担当課にプランを示して相談してみましょう。
ただ、階段を移設し、壁や天井を撤去して家全体の間取りを変える大規模な工事になると、建築確認申請を行う必要があると思っていいでしょう。
建築確認申請を行う費用は、手数料、リフォーム会社の書類作成費などがかかりますので、あらかじめリフォーム会社に聞いて準備しておきましょう。
建築確認申請にかかる費用の目安は、15万円~20万円程度です。
階段リフォームの工期
階段リフォームの工期は、工事内容によって変わります。
カバー工法(上張り)や手すり設置のように既存の階段をこわさない場合は、1日~2日でできます。
既存の階段を壊して、勾配をゆるやかにしてつくりなおすような場合は1週間以上の工期をみておきましょう。
階段の移設を含む大規模リフォームの場合は、長期間の工事になるので、仮住まいが必要になることも多いでしょう。
| リフォームの内容 | 工期の目安 |
|---|---|
| カバー工法(上張り) | 2日程度 |
| 手すり設置 | 1日~2日 |
| 階段のつくりなおし | 1週間~10日 |
| 階段の移設を含むリフォーム | 1カ月~3カ月 |
階段リフォームの費用相場
ここからはリフォーム費用帯ごとにどんな階段リフォームができるのかを見ていきましょう。それぞれの価格帯の実例も紹介します。
※各事例の価格帯およびリフォーム費用は施工当時のもので、現在の価格とは異なる場合があります。
20万円までの階段リフォーム
20万円まででできる階段リフォームは、既存の階段にカーペットを張る、手すりを設ける、階段下収納を設けるといったリフォームです。
| リフォームの内容 | 費用相場 |
|---|---|
| 階段にカーペットを張る | 約5万円~10万円 |
| 階段に手すりを設置 | 約6万円~13万円 |
| 階段下収納をつくる | 約7万円~20万円 |
階段の踏み板にカーペットを張る
階段が滑りにくいように既存の踏み面にカーペットを張るリフォームは約5万円~10万円です。カーペットのグレードなどによって費用が変わります。また、既存のカーペットを剥がす場合は、剥がし手間代が加わります。
【事例】階段にカーペットを張る
既存の階段の踏み面にカーペットを張ることで、クッション性があり、歩行性のよい階段になりました。階段の上がり下りに負担が減り、見た目もよくなりました。

階段に手すりをつける
高さ1mを超える階段には手すりを設けなければならないことが、2000年の建築基準法改正で定められました。それ以前に建てられた家を対象とするリフォームでは、リフォームを機会に手すりを設置しましょう。
階段の片側に壁があればその反対側だけでもいいのですが、両側に手すりがあったほうがより安全でしょう。
階段の手すり設置の費用は、下地補強費等を含めて約6万円~13万円。階段の長さなどによって変わります。両側に設置する場合は、この倍程度を見込みましょう。
【事例】手すりをつけて安全な階段に
階段の上り下りの安全性を考えて、壁に下地を設けたうえで手すりを設置しました。

階段下収納を設ける
階段下の空間を有効活用して階段下収納をつくることができます。
壁の一部を撤去して、中の床・壁・天井を仕上げるだけなら比較的低コストでできます。
高さ最大1m、幅1mくらいの扉のない収納庫なら約7万円くらいからできます。
これに扉を造作でつけると、さらに約3万円~5万円が必要です。
収納のサイズが大きくなれば、その分内装費などが加算されます。
また、棚など内部の造作を行うとその費用が加算されます。
【事例】扉なしの階段下収納
階段下に収納を設け、床はクッションフロア(新築時の余りもの)、壁はビニールクロスで仕上げています。天井は仕上げていません。また、扉も設置しませんでした。

20万円~100万円までの階段リフォーム
この費用帯になると、さまざまな階段リフォームが可能です。
階段下に収納を設けるなど手軽にできるものから、階段のカバー工法(上張り)や階段のつくりなおしまで、本格的な階段リフォームができます。
| リフォームの内容 | 費用相場 |
|---|---|
| 階段のカバー工法(上張り) | 約25万円~50万円 |
| 階段の勾配をゆるくする | 約40万円~80万円 |
| 階段をつくりなおす | 約55万円~95万円 |
階段のカバー工法(上張り)
階段のカバー工法は、既存の階段を壊さず、表面に薄い化粧材を上張りする工法です。
【事例】カバー工法で階段を一新
床の張替えリフォームに併せて、既存の階段にカバー工法で床材に合わせた板を上張りし、見た目を統一しました。

急勾配の階段の段数を増やして緩くする
階段の位置を変えずに段数を増やすことで勾配を緩くする工事はほかの部位への影響が少ないので、小規模な工事となります。
【事例】段数を増やし階段勾配を緩和
階建の勾配が急で、日頃の上がり下りに不安がありましたが、階段の位置を変えずに段数を増やすことで不安を解消。手すりも設置しました。

階段のデザインを変えてつくりなおす/約50万円~100万円
階段をつくりなおす費用は、既存の階段の解体費と新規造作費用がかかります。
使用する素材やデザインによっても費用は変わってきます。
【事例】スケルトン階段をボックスタイプに
鉄骨のスケルトン階段でしたが、安全性を考慮して、木造のボックスタイプにつくりなおしました。

階段の移設リフォーム
階段の位置を変えて、間取りを変えることも可能です。
階段の移設を含む費用が高くなるのは、間取り変更のために、間仕切り壁・床の撤去や再仕上げ費用などがからんで工事範囲が広くなるからです。
間口が狭く、家の中まで光が届かない、暗くて風通しの悪い家を、階段の位置を変えて。天窓を新設。光と風が巡るいつも人が集まる家になりました。



階段リフォームでもらえる補助金
階段リフォームをすることでもらえる補助金の種類と条件を紹介します。
子育てエコホーム支援事業
子育てエコホーム支援事業は、「子育て世帯※1」および「若者夫婦世帯※2」の補助額の上限をそのほかの対象者より引き上げて優遇している制度で、補助対象は全世帯です。
※1 申請時点において、2005年4月2日以降に出生した子を有する世帯
※2 申請時点において夫婦であり、いずれかが1983年4月2日以降に生まれた世帯
子育てエコホーム支援事業の対象となるリフォーム工事は、次の1~3の必須工事とそれと併せて行えば補助対象になる4~8の工事です。
| 必須工事 | 1. 開口部の断熱改修 |
|---|---|
| 2. 外壁、屋根・天井または床の断熱改修 | |
| 3. エコ住宅設備の設置 | |
| 上記と併せて行うことで補助対象 | 4. 子育て対応改修 |
| 5. 防災性向上改修 | |
| 6. バリアフリー改修 | |
| 7. 空気清浄機能・換気機能付きエアコンの設置 | |
| 8. リフォーム瑕疵保険等への加入 |
階段リフォームは、バリアフリー改修に含まれ、手すりを設置した場合に対象となります。補助額は5000円/戸です。
ただし補助額が5万円未満(ほかの特定の補助事業と併用することで2万円以上)だと補助対象になりません。補助金をもらうためには、必須工事を含めたほかの補助対象工事と組み合わせる必要があります。
複数の工事を行っても補助金の上限は20万円です。
ただし、前述のように子育て世帯と若者夫婦世帯および既存住宅を購入してリフォームをする※3、長期優良住宅の認定を受ける場合は、上限が増えます。
| 世帯の属性 | 既存住宅購入・長期優良住宅の有無 | 1戸あたりの上限補助額 |
|---|---|---|
| 子育て世帯または 若者夫婦世帯 |
既存住宅を購入しリフォームを行う場合※3 | 60万円 |
| 長期優良住宅の認定(増築・改築)を受ける場合 | 45万円 | |
| 上記以外のリフォームを行う場合 | 30万円 | |
| そのほかの世帯 | 長期優良住宅の認定(増築・改築)を受ける場合 | 30万円 |
| 上記以外のリフォームを行う場合 | 20万円 |
※3売買金額が税込み100万円以上、2023年11月2日以降に売買契約を行い、3カ月以内にリフォームの契約をする場合に限ります
申請はこの制度に登録しているリフォーム会社等の施工事業者が行うので、補助金を受け取る場合は、登録している会社に依頼するか、未登録の場合は登録してもらいましょう。
子育てエコホーム支援事業の申請期限は2024年12月31日。ただし、制度の予算が上限に達し次第締め切られます。
参照:子育てエコホーム支援事業
介護保険の住宅改修助成
要支援・要介護者が必要な住宅改修を行うと助成されるのが介護保険の住宅改修助成制度です。改修にかかった費用が20万円の9割(18万円)まで支給されます。収入によって支給割合が8割もしくは7割になる場合もあります。
この制度によって対象となる階段の改修は、手すりの取り付けです。
介護保険による改修の助成対象となる工事は以下です。
階段リフォームで使える減税制度
一定の階段リフォームを行うとバリアフリー減税の対象となり、所得税から一定割合で控除されます。
対象は手すり設置のほか、階段の勾配を緩和するリフォーム工事です。
バリアフリー減税の控除率は10%で、所得税からの控除額の上限は20万円です。
バリアフリーと併せて行うそのほかの工事も減税対象となる(控除率5%)ので、最大控除額は60万円となります。
控除期間は工事を完了した年のみです。
この制度の期限は2025年12月31日です。
また、階段に手すりの設置、階段勾配の緩和を行うと、固定資産税の減額も行われます。減額幅は3分の1、家屋面積の100m2相当分までです。
減額期間は工事完了の翌年分のみです。
この制度の適用期限は2026年3月31日です。
【最新版】リフォームで使える補助金と減税制度。対象のリフォーム・リノベーション、補助金額や申請方法・期限は?
まとめ
階段リフォームによって、より安全に上がり下りができるようになりますし、見栄えも一新できます。階段リフォームにかかる費用は、リフォームの内容によって変わり、数万円からできるものもありますし、位置移動など家全体にかかわることで多額の費用がかかる場合もあります。
いまわが家の階段に何が必要なのかをよく見極めて、リフォームプランを立てることが大切です。補助金や減税制度も活用して上手に階段リフォームをしましょう。
外階段をリフォームする方法と費用相場を素材別に解説。施工実例も紹介!
監修/柏崎文明さん(一級建築士、甚五郎設計企画代表)
構成・取材・文/林直樹
イラスト/むらたゆか