SUUMO(スーモ)は、住宅・不動産購入をサポートする情報サイトです。
リモートワーク用の部屋として、小家族用の住居として、関心が高まっているスモールハウス。スモールハウスにはどのような種類があり、費用はどれくらいかかるのでしょうか? また実際のスモールハウスがどのような外観や間取りをしているのか、風呂・トイレ付きのものもあるのかも気になるところです。この記事では、スモールハウスを建てるメリット・デメリットや建築時の注意点なども含めてkao一級建築士事務所の越野かおるさんに伺い解説します。
スモールハウスとはその名のとおり「小さな家」を意味し、タイニーハウスと呼ばれることもあります。ただ、何をもってスモールハウスと呼ぶのかは明確にされておらず、広さの定義もありません。一般的には4.5畳~20畳程度のものを指すことが多いようです。
「定義はないとはいえ、さすがに2階建てになるとスモールハウスとはいえなくなるように思います。スモールハウスという言葉には『面積が狭く、DIYできるような簡易な建物』のイメージがあります。とすると、それなりの面積を占める階段を備えるだけの広さがあり、建築家が設計から関わるような2階建ての家は、スモールハウスからは外れるように思います」(越野さん/以下同)

スモールハウスには「地面固定型」と「移動可能型」の2つのタイプがあります。
地面固定型のスモールハウスは、基礎を設けて地面にしっかりと設置するタイプです。コンテナハウスのように箱を設置するタイプや、ログハウスなどのようにキットを組み立てるタイプがあります。
移動可能型のスモールハウスは、トレーラーハウスのように、シャーシ(タイヤが付いた車台)と一体構造になり、移動できるタイプを指します。
「移動可能型は、厳密的には建物ではなく車両として扱われるため、建築基準法は適用されません。ただし、近年こういったスモールハウスが増えているので、今後なんらかの形で規制される可能性はあるといわれています」

地面固定型と移動可能型は、どのような観点で選べばよいのでしょうか?
「地面固定型は、簡易な小屋や離れとして使いたい場合。あるいは電気や水道、ガスなどのライフラインをきっちり整え、安定して暮らせる住居として使いたい人向けだと思います。
一方移動可能型は、例えば大きな災害に遭ったときでも家ごと移動できるのがメリットです。その代わり太陽光発電パネルと蓄電池で自家発電したり、水のタンクを積んだり、トイレの汚水の処理をしたりといった手間がかかります。移動可能型のスモールハウスは、そういった手間をいとわない、アウトドアライフを楽しめる人向けといえそうです」
関連記事
・タイニーハウスとは? 風呂・トイレ付きの価格と間取り、後悔しないための注意点は? 一人暮らしにオススメ?・
おしゃれなコンテナハウスの魅力と価格!中古コンテナには住める?後悔しないためのQ&A
スモールハウスは、次のような目的で建てられることが多いようです。
「小屋的なスモールハウスに興味を示すのは、男性が多いように思います。『隠れ家』や『秘密基地』のような場所で、自分の趣味を存分に楽しみたい気持ちがあるのかもしれません。
また、家はどんどん高額になり、とくに首都圏では手に入れるのが難しくなってきました。そのため今後は一人暮らしの方だけでなく、ご夫婦や小さなお子さんがいるファミリーなどが『家にはお金をかけずに生活を楽しもう』と割り切って考えるようになり、スモールハウスを検討する人が増えてくるのではないかと思います」

スモールハウスを建てることには、どのようなメリットがあるのでしょうか?
スモールハウスのメリットは、なんといってもマイワールドを存分に楽しめる空間を持てることです。DIYするタイプであれば「自分で建てた」という愛着もわくでしょう。
スモールハウスは4.5畳~20畳程度のサイズが一般的なので、広い土地を必要としません。移動可能型であれば、土地がなくても家を持てます。
「ただし車両となっているタイプであれば、駐車場の確保(車庫証明)が必要な場合もあるため、自治体に確認するようにしてください」
スモールハウスは規模が小さいので、建築費が安いこともメリットです。とくに高額になりがちな水まわりを設けない小屋タイプであれば、かなり安価に建てられます。
スモールハウスは室内空間も狭いので、エアコンや照明などの設備機器にかかる費用やランニングコストも少なくてすみます。
スモールハウスは、メンテナンスや外観の掃除が楽であるのもメリットです。
「確かにスモールハウスは、屋根や外壁の塗り替えなどのメンテナンスは楽だと思います。DIYで塗り替えを楽しむこともできるでしょう。
一方部屋の中の掃除が楽かどうかは、使い方によりそうです。スモールハウスは室内空間が狭いため、持ち物が多くなると床面積が狭くなり、掃除しようにも動きにくくなることがあるからです」

スモールハウスには、以下のようなデメリットもあります。
スモールハウスの広さによっては、少し物を置いただけで狭くなってしまいます。居住用で考えている場合は、できるだけ物を増やさず暮らすことを考える必要があるでしょう。
スモールハウスは部屋を明確に区切っていないことが多く、また部屋数も少ないため、居住用で考えている場合にはプライバシーを確保しにくいことも問題になりがちです。
スモールハウスは狭いので、キッチンや浴室設備もミニマムなものになる傾向があります。そのため住居用として考える場合、使い勝手がいいとはいえず、QOL(クオリティ オブ ライフ=生活の質)は下がるかもしれません。
「スモールハウスは、例えば料理はフライパン一つで何でもできるような、ミニマリスト向きだと思います。
スモールハウスで暮らすのであれば、室内空間だけでなく、外も有効活用すると生活を楽しめます。そういった意味でも、スモールハウスはアウトドア派には有利です」

スモールハウスの本体はどれくらいの価格で買えるのでしょうか? また実際に建てるには、いくらかかるのでしょうか。
自宅の敷地内にスモールハウスを建てるのなら、土地代はかかりません。しかしそうでないなら、土地を購入する必要があります。必要な土地の面積は、スモールハウスの大きさや、その土地の建蔽率(建ぺい率=土地面積に対する建物面積の割合)や容積率(土地面積に対する延床面積の割合)によって決まります。
なお移動可能型のスモールハウスは車両の扱いとなるので、土地の購入は不要です。ただし自治体によっては車庫証明が必要となる場合もあるので、あらかじめ確認しましょう。
建蔽率、容積率についてもっと詳しく
→「建蔽率(建ぺい率)」「容積率」とは? 知っておきたい建物の規制
スモールハウス本体の価格は、仕様によって大きく異なります。簡易的な小屋のようなタイプなら、100万円台から購入が可能です。一方水まわり設備も設ける居住型になると、500万円以上するケースが多いようです。トイレやシャワールームなどの設備にかかる費用も必要になるためです。
キットタイプのスモールハウスやコンテナハウスなどは、敷地まで持ってくる運送費がかかります。大型荷物となるので、運送費は高額になりがちです。また小屋タイプのスモールハウスでも、電気だけは必要になるため、電気の引き込み工事費もかかります。居住用ならガスや水道の敷設の費用も必要です。
「母屋があるならそこからライフラインを引き込めますが、新設する場合は高額になる可能性があります。とくに上下水道の敷設費は、道路からの距離が遠くなるほど費用がかかります。距離が長くなればなるほど、勾配を取るために深く掘る必要があるからです」

地面固定型は、建築確認を受けるための費用もかかります。
「建築確認申請にはさまざまな書類が必要になるので、設計事務所の建築士などに依頼するのが一般的です。申請費そのものはさほど高額ではありませんが、それら書類の作成などもあわせると数十万円の費用がかかるでしょう。ただし申請書類を自分で用意したり、図面を自分で描いたりして依頼する内容を減らすことができれば、費用は10万円程度に納められる場合もあります」
| 本体価格 | 100万円~ 水まわり設備も設ける居住型なら500万円~ |
|---|---|
| 運送費 | キットタイプやコンテナハウスの場合に必要 |
| ライフラインの敷設費 | 水道は道路からの距離が長いと高額になりがち |
| 建築確認費 | 地面固定型の場合に必要 |
ここではおしゃれなスモールハウスの外観や間取りを紹介していきます。
室内面積わずか2畳のとても小さなスモールハウス。モダンでシックな外観デザインがおしゃれです。静かな環境でテレワークに集中したい、といったときにちょうどいいサイズです。



外壁にラップサイディングが使われた、アメリカンデザインのスモールハウスです。樹脂サイディングが張られているので、塩害にも耐えられます。部屋の広さはおよそ6畳。趣味を楽しんだり子どもの遊び場にしたり、多目的に使える広さです。



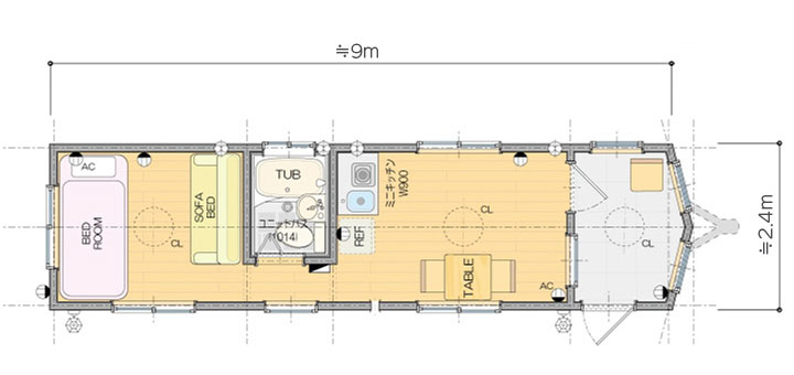
水まわり設備も備わった、住居用のトレーラーハウスです。コンパクトながらミニキッチン、ユニットバスが装備されていて、小家族なら問題なく暮らせます。高気密・高断熱にするために複層ガラスに樹脂サッシ、寒冷地仕様断熱材が使われるなど、住宅性能にも配慮されています。



ここでは特に、地面固定型のスモールハウスを建てるときにはどのような点に注意すればよいのかを解説します。
建物を建てるときには、「1つの敷地には1つの建物しか建てられない」とする「1敷地1建物」という原則を守る必要があります。そのため母屋がある敷地内に、さらに居住用(水まわり機器が装備されているタイプ)のスモールハウスを建てるのであれば、敷地を分筆しなければなりません。
「ただし、住居としてではない小屋のようなスモールハウスを建てるのであれば『増築』に該当するため、原則的には分筆は不要です」

現行の建築基準法では、防火地域・準防火地域でなければ、延床面積10m2以下の建築物は建築確認申請が不要です。それ以外の場合は、建築確認申請が必要になります。なお10m2は約3坪なので、6畳が目安です。正確な延床面積は、スモールハウスの施工業者に聞いたり、仕様書などで確認したりしましょう。
「なお仕様についても建築基準法を満たす必要もあります。求められる内容は、スモールハウスを単なる『小屋』として使うのか『住居』として使うのかなど、用途によって異なります」
建築確認についてもっと詳しく
→建築確認とは?流れは? 建築確認済証と建築確認申請書の違いは?
スモールハウスを建てるときには、土地ごとに定められた建蔽率や容積率を守らなければなりません。それは新築でも増築でも同じです。
「特に増築の場合、現状の建蔽率、容積率にどの程度余裕があるか必ず確認が必要です。すでに建蔽率・容積率いっぱいで家を建てているなら、その敷地にスモールハウスの増設はできません」
スモールハウスを増築する場合、延床面積が増えることになります。固定資産税の算定は延床面積を基準におこなわれるので、スモールハウスを増築することで税額が増える可能性もあるでしょう。
最後にあらためて越野さんに、スモールハウスを検討する人に向けてのアドバイスをいただきました。
「スモールハウスは『自分だけのプライベート空間』にあこがれて検討する人も少なくありません。けれども利用目的が明確ではなく『ちょっと興味がある』『あると便利そう』程度の気持ちで建ててしまうと、使わなくなってしまう可能性があります。
スモールハウスで何がしたいのか、居住型なら本当にそのスペースで暮らせるのか、きちんとイメージトレーニングしたうえで決断するようにしてください」
スモールハウスとは、一般的には4.5畳から20畳程度のコンパクトな家を指す
スモールハウスには地面固定型と移動可能型の2種類がある
スモールハウスを建てるときには、利用目的を明確にすることが何よりも大切