東京都中野区Nさんのリフォーム事例 - SUUMO(スーモ)リフォーム
3階建マンションのオーナーであるNさん。長い間1・2階でご家族が生活し、3階の2部屋は賃貸に出していました。しかし数年前、賃貸の契約期間が終了した後は、ご長男のための住まいへとリフォームを決意。気に入ったデザインをしてくれる施工会社を探し、何社にも相談を重ねるなかで、朝日住宅リフォームの藤井氏に出会いました。工事にあたっては、これまで二世帯に貸せるよう独立していた3階の2部屋をスケルトンリフォームし、合体。使いやすさとデザイン性を両立させた、シンプルモダンな1LDKを作り上げました。さらにビッグサイズのウォークインクロゼットも設け、整理整頓しやすいのも見逃せないポイントです。
| 建物タイプ | マンション |
|---|---|
| リフォームの種類 | 複合リフォーム |
| 家族構成 | - |
| 築年数 | 37年 |
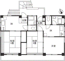
| 間取り | [ Before ] → [ After ] 1LDK+S |
| 目的 | デザイン重視、収納力アップ |
| リフォーム箇所 | リビング&ダイニング、キッチン、浴室・バス、トイレ、洗面、寝室、玄関、その他 |
| 新しくした設備 | - |
| 費用 | 1155万円 |
|---|---|
| 費用概算 |
解体工事: 1,200,000円 仮設工事: 250,000円 左官工事: 350,000円 ガラス・サッシ工事: 900,000円 住宅設備工事: 1,200,000円 電気設備工事: 900,000円 家具工事: 2,000,000円 建具工事: 500,000円 木工事: 3,400,000円 仕上げ・その他工事: 300,000円 消費税: 550,000円 |
| 工期 | 60日間 |
| リフォーム面積 | 60平米 |
表示されている価格帯および本体価格は施工当時のもので、現在の価格とは異なる場合があります。
ご近所のお宅が、朝日住宅リフォームさんでリォームをしたのがきっかけで、最初は2階のお風呂を交換してもらったんです。その時の対応がよかったですし、提案していただいたプランもとても気に入りましたので、3階の大幅リフォームも安心してお願いしました。
築37年を迎え、老朽化も次第に目立ち始めていました。その反面、これまで賃貸に出していた部屋がスケルトンリフォームにより、どんな住まいに変わるのか楽しみにしていました。
Nさまのご要望にお応えし、「優しい色合い」の空間を目指しました。内装は、明るめの木材と白を基調にカラーコーディネート。一方、機能面では、「音楽やDVDを楽しめるように防音性を高めたい」「収納を大きくとりたい」など、ご長男からのリクエストを反映。玄関スペースも狭く感じさせることなく、コートまでかけられる大型収納を確保しました。実際に暮らす方のご希望を最大限に取り入れながら、シンプルで美しい住まいに仕上げています。
賃貸に出していた2DKと1DKの部屋を合体し、ゆったりした1LDK+ウォークインクロゼットの間取りに変更しました。「料理はあまりしない」というご長男のライフスタイルに合わせ、キッチンはコンパクトかつ機能的に設計。代わってリビングダイニングを広くとり、プライベートな時間を楽しめるよう配慮されています。
LDKに入った瞬間、目に飛び込むのが一面に施工された目透し壁。明るい色調の板を壁材に用いることで、シンプルかつ洗練された空間を作り上げています。さらに、この目透し壁をはじめ、ドアなど建具の高さは天井高で統一。引き戸は天井吊り下げ型にして床のレールをなくし、フラットに。引き戸の取っ手も出っ張りがないものを選び、無駄のないすっきりとした空間を生み出しました。また、フローリングにナラの無垢材を使うことで、シンプルな中にも木の温もりを感じられるように配慮しました。
「一人暮らしの男性でも、億劫がらず片付けられるように」ということで、寝室の隣にウォークインクロゼットを設けました。約6畳もの広さがあり、開口部が2方向についているため、窓を開けて風通しすることも可能。もちろん、ハンガーパイプや棚も作り付け。さまざまな荷物が手軽に片付けられるように工夫されています。さらに、ウォークインクロゼットだけでなく、オリジナル家具も多数制作。その1つであるリビングのチェストは、フローリングや目透し壁とカラー統一されており、クールさを演出するうえでも一役買っています。
白い壁と明るい木目でまとめられ、清々しいLDK。写真右側の壁が、建築家こだわりの目透し壁だ。施主Nさんもモダンな感じが気に入っているとか。一方、写真正面はオリジナル制作のチェスト。床などとのカラーコーディネートにより、室内に統一感をもたらしている
引き戸は天井高で統一されており、一見壁のよう。空間をすっきり見せる工夫だ。写真左奥の木製引き戸を開ければサニタリールームに、また白い引き戸はキッチンへと続いている
オリジナル制作のキッチンは、「狭くて構わない」という要望に合わせたコンパクト設計。そのなかでも、動きやすいL字型を採用し、機能性に配慮している。また、カラーは白をベースに、LDKとのコーディネートを図っている
サニタリールーム。シャープなラインが美しい洗面台も建築家が選んだもの。もともとのサイズだと大きすぎたため、角を斜めにカット。ドアを開閉してもぶつからないばかりか、視覚的な広がりも感じさせる
約6畳もの広さを持つウォークインクロゼット。大きめの棚やハンガーパイプがしっかりと設けられ、整理整頓が楽に行なえる。2方向に開口部があり、風通しがいい点も、保管スペースとして最適だ
| 会社名 |
朝日住宅リフォーム(朝日住宅センター株式会社)
|
||||||||||||||||
|---|---|---|---|---|---|---|---|---|---|---|---|---|---|---|---|---|---|
| 対応エリア |
|
||||||||||||||||
| 会社概要データ |
|
||||||||||||||||
| お問い合わせ先 (TEL・FAX) |
番号を表示 | ||||||||||||||||
| その他のデータ |
|













