街並みに調和した外観デザインや、流行りを追うことなく、飽きのこないインテリアを希望したKさんご夫妻。完成したのは、深い軒が重厚感と高級感を生み出している和テイストの住まい。石や植栽との融合、玄関やアプローチに採用したコンクリート洗い出し仕上げ、鎖樋と樋受石の採用など、和の風情を感じさせるデザインに仕上げている。一方室内空間は、大胆に用いたラワン材が目を引く、アジアンテイストを感じさせるぬくもりのある空間に。壁を回り込むようにつくった造作収納&飾り棚も空間の… 続きを読む
街並みに調和した外観デザインや、流行りを追うことなく、飽きのこないインテリアを希望したKさんご夫妻。完成したのは、深い軒が重厚感と高級感を生み出している和テイストの住まい。石や植栽との融合、玄関やアプローチに採用したコンクリート洗い出し仕上げ、鎖樋と樋受石の採用など、和の風情を感じさせるデザインに仕上げている。一方室内空間は、大胆に用いたラワン材が目を引く、アジアンテイストを感じさせるぬくもりのある空間に。壁を回り込むようにつくった造作収納&飾り棚も空間のアクセントになっている。駐車スペース上をスキップフロアの納戸にするなど設計士の薄田さんの提案を取り入れながら、希望だった豊富な収納スペースも確保した暮らしやすい家を完成させた。「ハウスイズムさんはとても話しやすくて良かったです。打ち合わせ中に保育士さんがいる安心感も大きかったですね」とKさん。「出来上がった家を見て、図面で見たよりも素敵だなと嬉しくなりました。友人にはラワン材の壁やスケルトン階段が好評です。統一感のあるデザインにまとめてくださり感謝しています」と夫人。洋風、和風、サーファーズハウスなど、多種多様な家づくりに施主の期待を上回る提案で応えるハウスイズム。まずは県内各地にあるスタジオに相談に出かけてみよう。
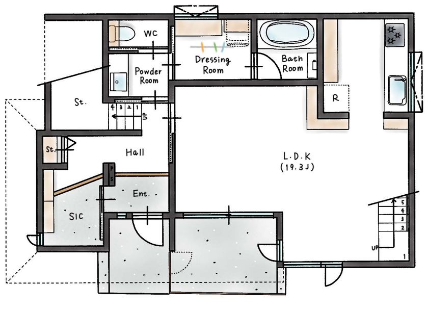
広々としたLDKの中で、あえてキッチンを独立させたのは「自分の居場所として使いたい」「来客があった時に丸見えにならない」などの夫人のリクエストを叶えたもの。家族や来客が使いやすいように、洗面室は脱衣室から独立させて配置。ランドリールームの機能もある脱衣室をつくることで外干しのほか中干しもできる洗濯家… 続きを読む
広々としたLDKの中で、あえてキッチンを独立させたのは「自分の居場所として使いたい」「来客があった時に丸見えにならない」などの夫人のリクエストを叶えたもの。家族や来客が使いやすいように、洗面室は脱衣室から独立させて配置。ランドリールームの機能もある脱衣室をつくることで外干しのほか中干しもできる洗濯家事がラクな家に。アプローチ、玄関、玄関収納、テラスはコンクリート洗い出し仕上げにして表情豊かに仕上げている
2階はご夫妻とお子さんの個室以外に、セカンドリビングとして使える広いホールを設置。造作のベンチに座ってくつろげるほか、ピアノを設置して音楽も楽しめる空間に。お子さんが友人を連れて来た時の遊び場所としても役立っている
2階はご夫妻とお子さんの個室以外に、セカンドリビングとして使える広いホールを設置。造作のベンチに座ってくつろげるほか、ピアノを設置して音楽も楽しめる空間に。お子さんが友人を連れて来た時の遊び場所としても役立っている
「対面キッチンではなく、自分の居場所として使える独立型のキッチンが欲しい」との夫人の希望を叶えたキッチン。使う… 続きを読む
「対面キッチンではなく、自分の居場所として使える独立型のキッチンが欲しい」との夫人の希望を叶えたキッチン。使う物、しまいたい物に合わせた棚は造作。食器集めが趣味という夫人のセンスが感じられる、毎日の食卓を特別なひとときに変える素敵な食器が多数収納されている
今後ドラムを購入して演奏を楽しみたいと話す、ギターやピアノの演奏、ライブ鑑賞などが趣味のKさん。広々としたホー… 続きを読む
今後ドラムを購入して演奏を楽しみたいと話す、ギターやピアノの演奏、ライブ鑑賞などが趣味のKさん。広々としたホールは演奏会場にもぴったり。家族の豊かな時間を育む場所として、現在も、そしてこれからも大いに活用できるスペース
住みやすそうな土地が見つかれば家を建てたいと考えていたKさんご夫妻。理想的な土地が見つかり、住宅展示場見学のほかインターネットやSUUMOカウンターなどを利用して情報を集め、ハウスメーカー探しを行ったという。その中で興味を持った1社がハウスイズム建築設計事務所。「施工例のデザイン性が高かったこと、またスタジオがお洒落で相談しやすそうな雰囲気だったこともあり、早速相談に出かけました」とKさん。最終的にハウスイズムに決めた理由について「ありがちな画一的なもので… 続きを読む
住みやすそうな土地が見つかれば家を建てたいと考えていたKさんご夫妻。理想的な土地が見つかり、住宅展示場見学のほかインターネットやSUUMOカウンターなどを利用して情報を集め、ハウスメーカー探しを行ったという。その中で興味を持った1社がハウスイズム建築設計事務所。「施工例のデザイン性が高かったこと、またスタジオがお洒落で相談しやすそうな雰囲気だったこともあり、早速相談に出かけました」とKさん。最終的にハウスイズムに決めた理由について「ありがちな画一的なものではなく、私達の希望を巧みに取り入れてくれたプランが良かったですね。様々な要望に造作対応してくれることにも惹かれました。距離感が適切でとても話しやすく、何でも希望を伝えることができました」。
K様ご夫妻はともにおだやかで、醸し出す雰囲気や身なりからとてもお洒落でセンスが良いお2人と感じていました。家づくりでは、土地の高低差を活かした駐車スペースと収納の設置や、もともとの植栽を活かした庭計画を希望されており、土地の高低差をどのように活かすか、さらに既存植栽や石などと建物をどうなじませるかに配慮しながら設計を行いました。また、作り込み過ぎないこと(余白をつくること)で小物や家具、照明器具などを活かすこと、木材や鉄などの素材の色味を合わせることですっ… 続きを読む
K様ご夫妻はともにおだやかで、醸し出す雰囲気や身なりからとてもお洒落でセンスが良いお2人と感じていました。家づくりでは、土地の高低差を活かした駐車スペースと収納の設置や、もともとの植栽を活かした庭計画を希望されており、土地の高低差をどのように活かすか、さらに既存植栽や石などと建物をどうなじませるかに配慮しながら設計を行いました。また、作り込み過ぎないこと(余白をつくること)で小物や家具、照明器具などを活かすこと、木材や鉄などの素材の色味を合わせることですっきりとさせつつ小物の色が映えるようにしたこと、キッチンを単独としたことで生活感を隠しつつ、キッチンの収納でも遊べるようにするなどのご提案を行いました。今回お住まいを拝見し、打ち合わせ時のご夫妻の印象通りとてもお洒落な使い方をされており、小物なども映えていて嬉しく思いました。ハウスイズムでは様々な条件下の土地に対しても解決策、さらにその上の暮らしやすさを考えてご提案します。空間づくり、雰囲気作り(インテリア)も一緒に考え、ご提案を行いますので、狭小地や変形地、高低差のある土地など、どのような土地の方もお気軽にご相談ください。
| 商品名 | - |
| 部材・設備 | - |
| 商品名 | - |
| 部材・設備 | - |
| 延床面積 | 121.41m2 (36.7坪) |
| 敷地面積 | 129.06m2 (39.0坪) |
| 工法 | 木造軸組 |
| 本体価格 | 3,500万円~3,599万円 |
| 竣工年月 | 2024年12月 |
| 店舗名 | 横須賀スタジオ 本社 |
| 住所 | 神奈川県横須賀市安浦町2-23-5 |
| 問い合わせ | |
| ホームページ | この会社のホームページへ |
街並みに馴染むように、また流行りを追うことなく長く快適に暮らせる普遍的な美しさを持つ住まいを希望したKさんご夫妻。深い軒が印象的な重厚感と高級感のあるデザインが、庭の石や植栽と美しく調和した和テイストの住まいが完成。ハウスイズム建築設計事務所はシンプルモダンからサーファーズハウス、和テイストの家まで、デザイン+暮らしやすさで施主の期待を上回る提案で応えてくれる会社
玄関ホールからリビング・ダイニングを見た様子。「10年後20年後に違和感がないように、また老後も暮らしやすい家にしたいと考えてクラシカルなデザインを希望しました」とKさん。「どのように暮らしたいか夫婦でしっかり考えてつくったこと、また採光や通風を考えて設計してくださったので、とても快適です。料理づくりも楽しくなりました」と夫人
もともとあった石をうまく活かしながら完成した、和テイストのK氏邸。「駐車スペースの向きなどもあり、間取りの変更をお願いしたのですが快く対応してくれました」とKさん。駐車スペースの上部にスキップフロアの収納スペースをつくり、その上がKさんの部屋になっている。わずかなスペースも見逃さない無駄のない設計で、ご夫妻が希望した豊富な収納スペースを創り出した
ご夫妻が使いたいと考えていたラワン材を壁一面に用いた印象的なリビング。大胆に採用することで、ブラケットライトの裸電球さえもお洒落に見えてしまうデザイン性の高い空間に。ラワン材の赤褐色の色に合わせて空間全体をコーディネートしている。「ラワン材の使用を希望したのですが、統一感のあるデザインにしてくれて良かったです」と夫人
床や壁、ダイニングテーブルや造作家具などに採用した木がぬくもりを醸し出すリビング・ダイニング。リビング上部のレールは照明やスピーカーの設置、観葉植物を吊るして飾るなど、今後活用する予定とのこと。「ダイニングや2階のホールなど、その時々の気分でくつろぐ場所が変えられる、とても居心地のよい家です」とKさん
写真奥のリビングと玄関ホールをつなぐ引き戸は、壁に用いたラワン材と同一の素材を使った造作の一品。引き戸に枠を付けず、より洗練されたデザインに仕上げているのも同社の提案によるもの。一見気が付かないような細部までのこだわりが、見る者を惹きつける完成度の高い美しい仕上がりに貢献している
スケルトン階段の下部をボックス型にして、その下を愛猫のトイレスペースに。「猫と楽しく暮らせる家を希望し、目立たない場所にトイレスペースをつくりたいと考えていました。すごく上手にトイレスペースをつくってくれた提案力もさすがだと思いました」と夫人
蹴込み板や手すり壁のないスケルトン階段は光を遮らないため、明るい空間づくりにも貢献。ちょっと腰掛けて読書などを楽しむスペースにもぴったりだ
インテリアのオブジェとして存在感を放つスケルトン階段。 洗練されたデザインがインテリアの一部として機能し、空間をより美しく見せる。床やダイニングテーブルの色と合わせることで、空間の中に自然と溶け込んでいる
壁を囲むように2面にまたがりつくられた、小物などを飾るのが楽しくなるお洒落な造作棚。お洒落な飾り棚を作りたい人は、ぜひ参考にしたらいかがだろう
「対面キッチンではなく、自分の居場所として使える独立型のキッチンが欲しい」との夫人の希望を叶えたキッチン。使う物、しまいたい物に合わせた棚は造作。食器集めが趣味という夫人のセンスが感じられる、毎日の食卓を特別なひとときに変える素敵な食器が多数収納されている
家族やゲストが使いやすいように、洗面室と脱衣室の分離を希望。帰宅時の手洗いにも便利に使えるように玄関ホール近くに設置した洗面化粧台。収納棚を造作し、より使いやすいように仕上げている
「家族一緒にゆったり過ごせる場所が欲しい」との希望に薄田さんが提案したのが広々とした2階のホール。造作ベンチに腰掛けて読書をしたりハンモックでくつろいだりと、セカンドリビングのような感覚でくつろげる。照明も目を引くアクセントに。造作ベンチの下は収納になっており、小物などをすっきりと片付けられる
今後ドラムを購入して演奏を楽しみたいと話す、ギターやピアノの演奏、ライブ鑑賞などが趣味のKさん。広々としたホールは演奏会場にもぴったり。家族の豊かな時間を育む場所として、現在も、そしてこれからも大いに活用できるスペース
2階にあるKさんの部屋は、寝室兼仕事部屋兼演奏などを楽しむ趣味部屋に。小上がりの下は収納になっている
鎖樋と雨水を着地させる樋受石を用い、雨水が落ちるのを目で見て楽しむ、和テイストの家ならではの情緒が感じられるアプローチ。玄関土間と同じコンクリート洗い出し仕上げにして、アプローチにも豊かな表情をつくりだしている