じょぶ

じょぶ

土地の探し方から設計・施工・アフターメンテナンスまでずっと永く暮らせる家づくりを
お気に入りに追加する
大阪府  Kさん
【大阪/4000万円~/ビルトインガレージ】SE構法で叶えた大空間、大開口のガレージハウス
じょぶ 【大阪/4000万円~/ビルトインガレージ】SE構法で叶えた大空間、大開口のガレージハウスの建築実例画像1
  • 本体価格
    4,000万円
    85.5万円/坪
  • 延床面積
    154.68m2 (46.7坪)
    敷地面積
    185.75m2 (56.1坪)
    家族構成
    夫婦
  • 竣工年月
    2023年7月
    工法
    その他(独自認定工法等)(SE構法)
この会社をもっと知りたくなったら
無料でお届け!まずはカタログ請求

施主Kさんのこだわり

プランから性能まですべて満足のできる家づくりを実現

開口6.3mを誇る、憧れのガレージハウスを叶えたKさん宅。車2台とバイクを格納できるゆとりのサイズで、隣接する書斎から車を眺められる、憧れの住まいが完成した。「SE構法で大開口が叶えられることがわかり、じょぶさんに相談。デザインやプラン、技術力の高さにも安心感がありました」と一任された。希望していた洗車もできるテラスやドッグランとして活用できる庭はガレージの裏に設け、プライバシーを守って過ごせるように同社が提案。リビングでは、窓のサッシは天井高と揃えたハイ… 続きを読む

開口6.3mを誇る、憧れのガレージハウスを叶えたKさん宅。車2台とバイクを格納できるゆとりのサイズで、隣接する書斎から車を眺められる、憧れの住まいが完成した。「SE構法で大開口が叶えられることがわかり、じょぶさんに相談。デザインやプラン、技術力の高さにも安心感がありました」と一任された。希望していた洗車もできるテラスやドッグランとして活用できる庭はガレージの裏に設け、プライバシーを守って過ごせるように同社が提案。リビングでは、窓のサッシは天井高と揃えたハイサッシを採用し、壁面収納の建具も天井高まであるものを用いて、端正な佇まいの空間に。キッチンは2連にして、レンジフードのダクトをスッキリと壁に納まるようにするなど、細部までこだわって仕上げた。性能面においては気密測定を実施し、HEAT20G2グレードの高い気密・断熱性能を備え、第一種換気システムの採用で年中心地よく暮らせる性能も装備。「プラン提案はもちろんスイッチの位置や照明など細かい所まで丁寧に対応して下さったので、どこも大満足。リビングは明るくて心地よく真夏もエアコン1台で涼しく過ごせて電気代も節約できました。女性設計士さんが洗濯物を洗って干すまでの動線を工夫して下さったので、家事も快適。芝生やシンボルツリーなど今後の計画も楽しみですね」。

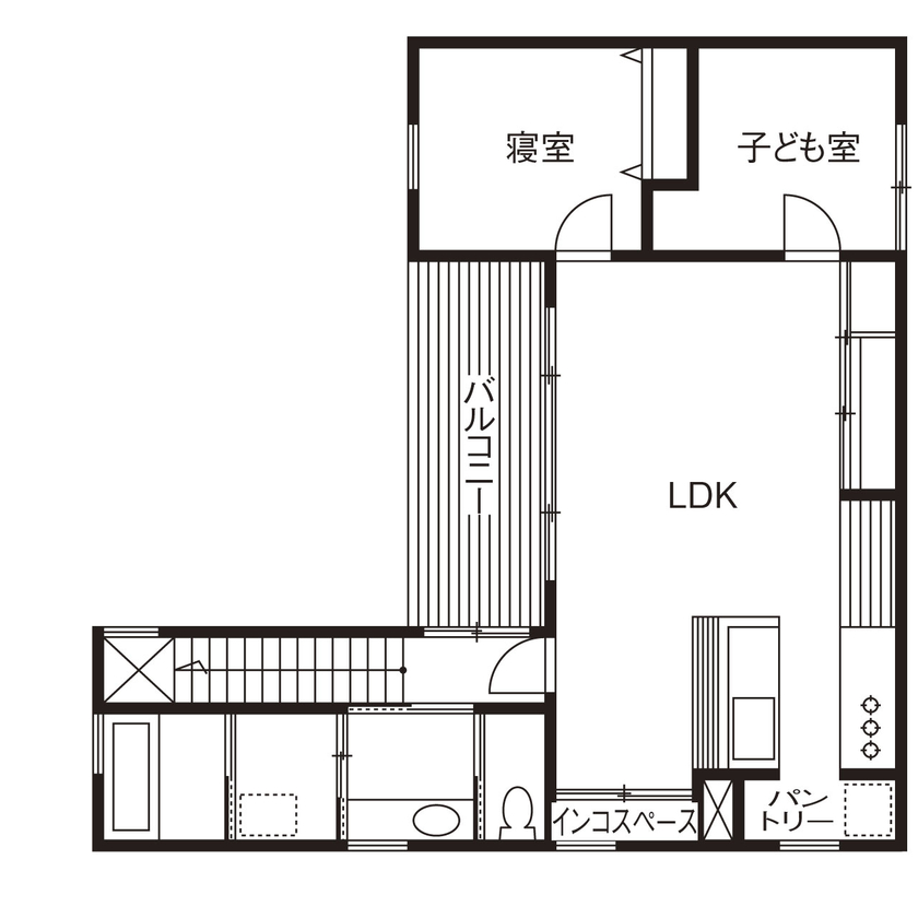
間取り図(3LDK)

1階
じょぶ 【大阪/4000万円~/ビルトインガレージ】SE構法で叶えた大空間、大開口のガレージハウスの間取り図(3LDK)1階
2階
じょぶ 【大阪/4000万円~/ビルトインガレージ】SE構法で叶えた大空間、大開口のガレージハウスの間取り図(3LDK)2階
この会社をもっと知りたくなったら
無料でお届け!まずはカタログ請求

内外観ギャラリー

この会社をもっと知りたくなったら
無料でお届け!まずはカタログ請求

この会社の他の建築実例を見る

この建築実例が気になった方へおすすめ

  • この建築実例のカタログをもらう

    じょぶのカタログ画像
    総合カタログ
    jobook   ~じょぶが建てた家(施工事例)と、会社のご紹介~
    じょぶがこれまでに建てた家の中から厳選した施工事例と会社のご紹介WEBカタログです
  • この建築実例を検討時に見学したモデルハウス

    じょぶのモデルハウス画像1
    じょぶのモデルハウス画像2
    • 延床面積
      87.78m226.5坪)
    • 所在地
      大阪府高槻市天川新町12-17
    • 営業時間
      10:00~18:00(定休日:月・火(第1・第3)・水・祝)
    • ナチュラル
    • 高性能
    • 趣味
    • 等身大

この建築実例の詳細情報

この建築実例を建てた店舗情報

住所 大阪府東大阪市中新開2-10-26
問い合わせ
072-966-9225
  • ※営業時間内の対応となります。

  • ※お問い合わせの際は「SUUMO(スーモ)を見て」とお伝え下さい。

ホームページ この会社のホームページへ

じょぶのコンテンツ一覧

お問い合わせ

カタログをもらう
総合カタログ
じょぶのカタログ(jobook   ~じょぶが建てた家(施工事例)と、会社のご紹介~)
jobook   ~じょぶが建てた家(施工事例)と、会社のご紹介~
問合コード:1305140001

この会社が気になったら

カタログをもらう
総合カタログ
じょぶのカタログ(jobook   ~じょぶが建てた家(施工事例)と、会社のご紹介~)
jobook   ~じょぶが建てた家(施工事例)と、会社のご紹介~
問合コード:1305140001

関連キーワード

この建築実例のその他の特徴
ページトップへ戻る