iKKA

iKKA

10年、20年先も「ずっといい家」。
お気に入りに追加する
滋賀県  Wさん
【滋賀県守山|1990万円|間取り図有|平屋】通り土間のアウトドアリビングとロフトで趣味を楽しむお家
  • 本体価格
    1,990万円
    76.1万円/坪
  • 延床面積
    86.52m2 (26.1坪)
    敷地面積
    259.05m2 (78.3坪)
    家族構成
    本人
    竣工年月
    2018年5月
    工法
    木造軸組
  • 特徴
    耐震・免震・制震  |  省エネ・創エネ・エコ(eco)  |  高耐久  |  高気密・高断熱  |  防音・遮音  |  こだわりの外観デザイン  |  …
この会社をもっと知りたくなったら
無料でお届け!まずはカタログ請求

施主Wさんのこだわり

全開口できる掃き出し窓がお気に入り。「季節を感じながらゆったりと暮らせています」

左官仕上げの黒い外観にチーク材の床をベースとした落ち着いたイメージの室内、コンセプトは趣味を楽しむ大人の平屋暮らし。最初の打ち合わせの段階から平屋を希望し、広い土間スペースとしてしつらえたアウトドアリビングもWさんのイメージの中にあったもの。滋賀でゆったりした暮らしを叶えるため、80坪程の土地を探すところからスタート。構造の梁を見せた伸びやかな空間に、対面型のキッチンや階段付きのロフトを備えた間取りでコンパクトに暮らせる住まいが完成した。Wさんの趣味は釣り… 続きを読む

左官仕上げの黒い外観にチーク材の床をベースとした落ち着いたイメージの室内、コンセプトは趣味を楽しむ大人の平屋暮らし。最初の打ち合わせの段階から平屋を希望し、広い土間スペースとしてしつらえたアウトドアリビングもWさんのイメージの中にあったもの。滋賀でゆったりした暮らしを叶えるため、80坪程の土地を探すところからスタート。構造の梁を見せた伸びやかな空間に、対面型のキッチンや階段付きのロフトを備えた間取りでコンパクトに暮らせる住まいが完成した。Wさんの趣味は釣り。休日になると通り土間や濡縁で道具のメンテナンスをするのが楽しみだそうで、釣った魚をさばくことも。「全開口できる大きな掃き出し窓がいいですね。土間に座って作業していると中にいるような外にいるような不思議な感覚。季節が感じられてすごく気持ちいいです」。天井にあしらったラワン材やテレビボードの後ろに張ったレッドシダーなど、木の雰囲気もWさんのお気に入り。「かっこいい雰囲気が好きで素材感を活かしてもらいました」。木に囲まれながらゆったりとした暮らしを楽しんでいる

間取り図(1LDK)

1階
iKKA 【滋賀県守山|1990万円|間取り図有|平屋】通り土間のアウトドアリビングとロフトで趣味を楽しむお家の間取り図(1LDK)1階

玄関を入ると玄関ポーチから土間床の濡縁、通り土間を介してリビングダイニングキッチン(LDK)まで、空間全体が一帯になった開放的な住まい。自然と庭へ視線が抜けるように構成されている。リビング・ダイニングを住まいの中心にレイアウトし、対面型のキッチンは少し奥まったところに控えめに。バックヤードに配置した… 続きを読む

玄関を入ると玄関ポーチから土間床の濡縁、通り土間を介してリビングダイニングキッチン(LDK)まで、空間全体が一帯になった開放的な住まい。自然と庭へ視線が抜けるように構成されている。リビング・ダイニングを住まいの中心にレイアウトし、対面型のキッチンは少し奥まったところに控えめに。バックヤードに配置した洗面スペースは、物干場に直接アクセスできる便利な造り。ウォークインクロゼットを備えた寝室も落ち着ける空間。80坪の土地にアウトドアスペースを広くとり、全開放の窓を開け放つと、緑豊かな庭と土間リビング、開放的なLDKがゆったりつながる間取り。住み心地の良さを追求した

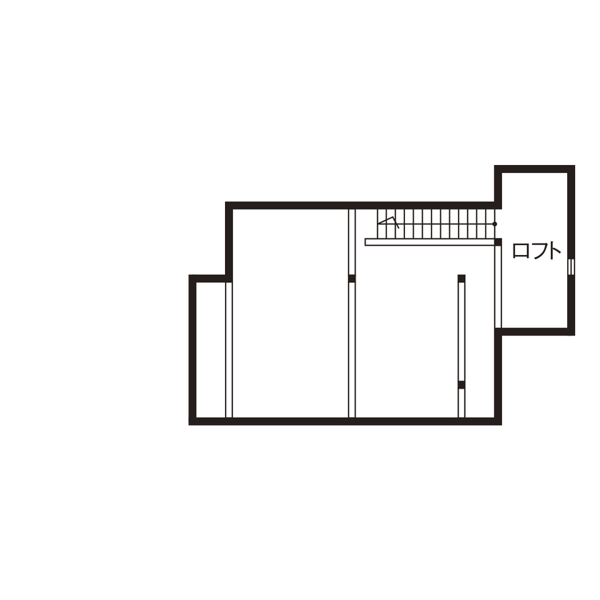
2階
iKKA 【滋賀県守山|1990万円|間取り図有|平屋】通り土間のアウトドアリビングとロフトで趣味を楽しむお家の間取り図(1LDK)2階

ロフトは、釣り道具などを収納するスペースとしてはもちろん、読書をしたり、音楽を聴いたり、隠れ家的に使える遊びの空間にもなっている。ロフトは、心落ち着く居場所としておこもり感もありながらもLDKを見渡せ、狭さを感じさせない空間に。平屋建てを活かし構造材の梁を見せるように組み上げ、おしゃれでかっこいい大… 続きを読む

ロフトは、釣り道具などを収納するスペースとしてはもちろん、読書をしたり、音楽を聴いたり、隠れ家的に使える遊びの空間にもなっている。ロフトは、心落ち着く居場所としておこもり感もありながらもLDKを見渡せ、狭さを感じさせない空間に。平屋建てを活かし構造材の梁を見せるように組み上げ、おしゃれでかっこいい大人の平屋建て住宅を実現した

この会社をもっと知りたくなったら
無料でお届け!まずはカタログ請求

内外観ギャラリー

この会社をもっと知りたくなったら
無料でお届け!まずはカタログ請求

施主Wさんがこの会社に決めた理由

家作りに対する考え方や性能面に納得。「要望を理解してもらえているのを感じました」

シンプルで大人っぽい木の雰囲気に惹かれて話を聞きに行ったというWさん。「ショールームの雰囲気も良くて、リラックスできました。家作りに対する考え方や性能面の解説など、お話いただいた内容にも納得感があって。信頼できる会社であることが確認できたので、依頼することに決めました」。その後の打ち合わせも丁寧だったそうで、「『趣味が楽しめる家にしたい』というこちらの要望をちゃんと理解してもらえていることを感じましたし、通り土間の提案など、実際に形になりました。完成した住… 続きを読む

シンプルで大人っぽい木の雰囲気に惹かれて話を聞きに行ったというWさん。「ショールームの雰囲気も良くて、リラックスできました。家作りに対する考え方や性能面の解説など、お話いただいた内容にも納得感があって。信頼できる会社であることが確認できたので、依頼することに決めました」。その後の打ち合わせも丁寧だったそうで、「『趣味が楽しめる家にしたい』というこちらの要望をちゃんと理解してもらえていることを感じましたし、通り土間の提案など、実際に形になりました。完成した住まいにも家作りの過程にもすごく満足しています」。

この建築実例の担当者より

会話をヒントに考えた通り土間のプラン。Wさんの印象に合わせて小屋っぽくしました

釣りを趣味にされているということで、お打ち合わせの際にも何度も話題に上がっていました。その中で、「釣った魚を捌ける場所があれば」や「道具はメンテナンスが必要で」といったお話も出ていて、それなら両方できるスペースをLDK内に作ろうと提案したのが、庭と繋がる通り土間でした。鎧張りの壁や現しの梁など、ラフな仕上げで小屋っぽくしたのもアウトドアがお好きなWさまのイメージに合わせて。他にも、キッチンや洗面スペースは目立たない場所におさめて生活感が出ないように配慮し、… 続きを読む

釣りを趣味にされているということで、お打ち合わせの際にも何度も話題に上がっていました。その中で、「釣った魚を捌ける場所があれば」や「道具はメンテナンスが必要で」といったお話も出ていて、それなら両方できるスペースをLDK内に作ろうと提案したのが、庭と繋がる通り土間でした。鎧張りの壁や現しの梁など、ラフな仕上げで小屋っぽくしたのもアウトドアがお好きなWさまのイメージに合わせて。他にも、キッチンや洗面スペースは目立たない場所におさめて生活感が出ないように配慮し、遊び心のある空間でリラックスしていただけるよう工夫しています。

iKKAの担当者画像
建築士
木原翼

この会社の他の建築実例を見る

この建築実例が気になった方へおすすめ

  • この建築実例のカタログをもらう

    iKKAのカタログ画像
    その他
    「ずっといい家」 iKKAの家づくりへの想い
    iKKAが考える「ずっといい家。」を紹介するコンセプトブックをお届けします

この建築実例の詳細情報

この建築実例を建てた店舗情報

住所 滋賀県大津市唐崎一丁目16-21
問い合わせ
0120-41-2755
  • ※営業時間内の対応となります。

  • ※お問い合わせの際は「SUUMO(スーモ)を見て」とお伝え下さい。

ホームページ この会社のホームページへ

iKKAのコンテンツ一覧

お問い合わせ

カタログをもらう
その他
iKKAのカタログ(「ずっといい家」 iKKAの家づくりへの想い)
「ずっといい家」 iKKAの家づくりへの想い
問合コード:1355980001
お問い合わせ先
0120-41-2755
  • ※営業時間内の対応となります。

  • ※お問い合わせの際は「SUUMO(スーモ)を見て」とお伝え下さい。

  • 滋賀県大津市唐崎一丁目16-21

  • 定休日:-

この会社のホームページへ

この会社が気になったら

カタログをもらう
その他
iKKAのカタログ(「ずっといい家」 iKKAの家づくりへの想い)
「ずっといい家」 iKKAの家づくりへの想い
問合コード:1355980001

関連キーワード

この建築実例のその他の特徴
ページトップへ戻る