"20251205214209:H:0" "20251205214209:H:0" "20251205214209:H:0"
ミオカステーロ宿河原II (取材レポート)

ミオカステーロ宿河原II (取材レポート)

価格未定
SUUMO(スーモ)新築マンションのミオカステーロ宿河原IIの取材レポート情報です。

心安らぐ豊かな自然と、利便性に寄り添う暮らしの魅力とは

【ミオカステーロ宿河原II】資料請求

物件の詳細情報の提供には物件エントリーが必要です。エントリー頂いた方には、最新情報をいち早くお知らせいたします。「資料請求」ボタンより物件エントリーをお願い致します。

簡単!約2分で完了
簡単!約2分で完了 以前に資料請求した物件です。気軽に見学予約をして物件を見学しに行こう! 以前にもチェックした物件です。まずは気軽に見学予約や資料請求をしてみよう!
1
開発が進む「登戸」駅1分の「宿河原」駅徒歩6分に豊かな緑を纏う角部屋中心の全55邸
二ヶ領用水 宿河原桜並木が駅へのアプローチ。約1.3haの川崎市緑化センター隣接
  • 「ミオカステーロ宿河原II」は、JR南武線「宿河原」駅徒歩6分に誕生する全55邸のレジデンス。「宿河原」駅の位置するJR南武線は、立川、武蔵小杉、川崎などの街と結ばれ小田急線「登戸」駅へ1駅1分、「武蔵溝ノ口」駅へ3駅6分。新宿、渋谷、大手町方面など東京都心の商業・ビジネス地域へスムーズにアクセス。

  • 「宿河原」駅から現地へは、平坦なアプローチで、約400本のサクラが植えられた二ヶ領用水宿河原桜並木などの風景が楽しめる。その先には、多彩な草花や樹木が植えられた約1.3haの都市緑化植物園「川崎市緑化センター」が立地。「ミオカステーロ宿河原II」の敷地は、これに隣接する緑を纏う暮らしやすい住環境だ。

ミオカステーロ宿河原IIの取材レポート画像
空撮写真(※1)
川崎市内でトップの人口増加数・増加率の多摩区 多摩区エリアNO.1の豊富な供給実績
  • ミオカステーロ宿河原IIの取材レポート画像
    概念図
    • ミオカステーロ宿河原IIの取材レポート画像
      川崎市立稲田小学校(徒歩4分/約290m)
    • ミオカステーロ宿河原IIの取材レポート画像
      宿河原駅前
不動産コンサルタント 岡本郁雄

首都圏中心に延べ3,000件以上のモデルルームや現場を見学しマンション市場に精通。セミナー講師や執筆、メディア等で活躍中。(現地周辺(約260m)にて2025年11月撮影)

多摩川の畔に位置する自然豊かな多摩区は、2024年の人口増加数・増加率が川崎市内で最も高くこの10年で、2025年10月1日時点の人口総数は、229,056人。この20年間で、2万人超も増加している(※2)。事業主である山田建設は、昭和38(1963)年設立という歴史ある企業で、製販一貫体制の強みを活かしマンション事業を展開。顧客視点の居心地の良い住空間づくりに定評があり川崎市多摩区のマンション分譲実績は、総計34棟1,189戸に及ぶ。「川崎市緑化センター」隣接という早々出会えない場所でのマンション分譲は、同社が用地取得・設計・施工など製販一貫体制でマンション事業を行ってきた成果だろう。

子育てがしやすい住環境は、「ミオカステーロ宿河原II」の魅力。川崎市立稲田小学校が徒歩4分、保育園や幼稚園も徒歩圏内に揃う。「川崎市緑化センター」では、様々なイベントが行われるほか、徒歩2分の宿河原南公園、藤子・F・不二雄ミュージアムや生田緑地など家族で楽しめるスポットも多い。また、まいばすけっと、ライフ、ビッグ・エーなど買い物施設も「宿河原」駅周辺に充実している。土地区画整理事業が進む向ケ丘遊園・登戸エリアも生活圏で、商業施設クロス向ヶ丘が2024年4月に開業、登戸駅前地区第一種市街地再開発事業も進行中で地域の将来性も感じる。川崎市立多摩病院など医療施設も揃っていて、家族が安心して暮らせる住環境だ。

2
南・西に住宅街 東・北に緑の木立や草花 四季折々の景色を楽しむ中層5階建て全55邸
  • 「川崎市緑化センター」から建設中の「ミオカステーロ宿河原II」の建物を眺めると、この立地での豊かな暮らしが想起できる。「川崎市緑化センター」内には、樹木や二ヶ領用水沿いのサクラをはじめ春夏秋冬の草花が彩るフラワーロードなど豊富な植栽が施されており、東側住戸の一部からは緑の借景を楽しむことができる。

  • 「川崎市緑化センター」の開園時間は、9時から16時半(11月~2月は、9時から16時)で、夜間や早朝は、静けさも保たれる。また、敷地の西側・南側は住宅街が広がっており、開放的で日当たりや風通しも良好で、周囲に高層建物がないため上階からの見晴らしも良い。家族団らんの居心地の良い時間が過ごせそうだ。

ミオカステーロ宿河原IIの取材レポート画像
川崎市緑化センター(徒歩2分/約160m)にて2025年11月撮影
総敷地面積1900m2超 角住戸率58%超の通風・採光に優れた心地よい暮らしを提案
  • ミオカステーロ宿河原IIの取材レポート画像
    建物完成予想CG
    • ミオカステーロ宿河原IIの取材レポート画像
      【食器洗浄乾燥機】(同仕様)
    • ミオカステーロ宿河原IIの取材レポート画像
      【ガス温水式床暖房】(同仕様)
ZEH-M Oriented

省エネルギー性についてBELSによる評価を受けた「ZEH-M Oriented」を採用したマンションです。

「ミオカステーロ宿河原II」の総敷地面積は1900m2超と広大で、敷地東側には「川崎市緑化センター」が面している。敷地の特徴を活かし配棟計画は、低層住宅街が続く南・西、「川崎市緑化センター」のある東に向けて住戸が配置されている。南側のエントランスホールを抜けると吹き抜け空間のある植栽が見える。内を向いた共用廊下で、プライバシーを守り、セントラル警備保障と連携したカードキーによる3重のセキュリティシステム「ハイセクト」の導入で日々の安心を届ける。4棟構成で角部屋比率が58%と高く、バルコニーにガラス手摺を採用し陽光を届ける。建物の外観フォルムは、明るくリズミカルで上質な暮らしがイメージできる。

家事負担を軽減する設備・仕様の充実も魅力。キッチンには、食器洗浄乾燥機や3層立体的で使いやすいユーティリティーシンクを標準装備。オープンカウンターのキッチンは、フロントポケットなど収納も豊富で、面材の色を揃えた食器棚を全住戸に装備しているのもうれしい。バスルームには、ミストサウナ付浴室暖房乾燥機を装備。手洗いカウンターやタンクレストイレ設置の機能的なトイレやノズルが引き出せる洗面化粧台など使い勝手の良い設備が充実している。複層ガラスの採用やガス温水式床暖房を装備し高効率TES熱源機「エコジョーズ」を採用。省エネルギー性の高い「ZEH-M Oriented」採用のマンションで、経済的かつ快適な暮らしが叶えられる。

3
ライフスタイルに合わせて選択できる!多彩な間取りの魅力について
角部屋を活かし、スライドドア採用の明るく開放的なリビング・ダイニング
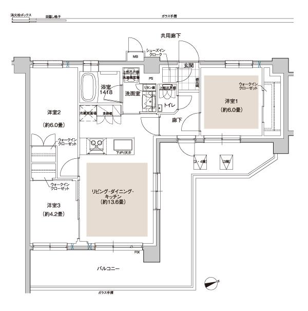
Eタイプ
間取り:3LDK+WIC+FC+SIC 専有面積:79.01m2 バルコニー面積:10.88m2
ミオカステーロ宿河原IIの取材レポート画像
【バスルーム】(同仕様)

「ミオカステーロ宿河原II」の間取りの魅力は、4棟構成・角部屋比率58%超(※3)を活かした心地の良い居住空間の提案。明るく開放的なオープンカウンターのキッチンや収納量の確保など生活シーンや使い勝手に配慮した提案が特徴だ。広々としたリビング・ダイニングと隣接する洋室を可動間仕切りによりフレキシブルに開閉できる点もうれしい。シューズインクロークや廊下の収納など収納量を確保。共用廊下側の窓に可動式面格子を設置するなど各住戸のプライバシーに配慮している点もうれしい。

南向き角部屋のEタイプは、「ミオカステーロ宿河原II」の特徴が強く印象付けられる間取り。約6.8mのゆとりあるスパンで、スライドドアを開けることで洋室3と一体にできる。浴室にも窓を設置し、約8.0畳の洋室1にも窓が2つあるなど通風性が高い。柱型の出ないアウトフレーム工法採用によりリビング・ダイニングや洋室3の空間はスッキリしている。南向きの採光性に加え、風通しが良好で健やかで快適な暮らしが叶えられそうだ。

広々したバルコニーで景色を楽しむ 浴室や廊下にも窓を設けた快適な暮らしを提案
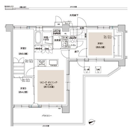
Lタイプ
間取り:3LDK+3WIC+SIC 専有面積:68.08m2 バルコニー面積:26.36m2
ミオカステーロ宿河原IIの取材レポート画像
【スライドドア】(同仕様)

「川崎市緑化センター」側に面したX棟のLタイプは、リビング・ダイニングや居室からの四季折々の景色が楽しみな間取りだ。間口が約11.55mもあるワイドスパンプランで、バルコニーも「川崎市緑化センター」のある東側に配置。リビング・ダイニングと洋室1、洋室3がバルコニーに面しており爽やかで明るい空間を演出する。リビング・ダイニングには、東側と北側に窓があり、キッチンで料理をしながら開放的な景色を楽しめそう。浴室にも窓があるほか、玄関を入った廊下の先にも窓があるなど通風性への配慮は十分だ。広々したバルコニーも魅力的で、早朝から景色を眺めながらカフェを楽しむなど寛ぎの時間が過ごせるだろう。

構造・品質においては、遮音性や断熱性に優れた二重床・二重天井を採用。将来のリフォームなどにも対応しやすい。また、100年の耐久性を目指したコンクリートなど建物の長寿命化も図られている。建物は、上階まで建設中で完成後のイメージも現地でしやすい。将来性豊かな「宿河原」駅徒歩6分の全55邸「ミオカステーロ宿河原II」。まずは、資料請求をおすすめしたい。

【ミオカステーロ宿河原II】資料請求

物件の詳細情報の提供には物件エントリーが必要です。エントリー頂いた方には、最新情報をいち早くお知らせいたします。「資料請求」ボタンより物件エントリーをお願い致します。

簡単!約2分で完了
簡単!約2分で完了 以前に資料請求した物件です。気軽に見学予約をして物件を見学しに行こう! 以前にもチェックした物件です。まずは気軽に見学予約や資料請求をしてみよう!

※1 掲載の空撮写真は2025年2月に撮影したものです。一部CG処理を施しており、実際とは多少異なります。光の柱は本物件の位置を示すものであり、建物の高さや規模を示すものではありません。
※2 川崎市 長期時系列データ(人口)(2025年11月10日)※国勢調査及び推計人口による各年10月1日現在の数値である。令和7(2025)年10月1日現在は令和2(2020)年国勢調査確定値を基数としている。令和7(2025)年国勢調査速報値公表後、遡及して修正する(令和8(2026)年6月頃)
※3 55戸中32戸
※約1.3ha=13000m2
※川崎市立稲田小学校(徒歩4分/約290m)、桐光学園みどり幼稚園(徒歩5分/約390m)、保育園アリス宿河原(徒歩6分/約470m)、川崎市緑化センター(徒歩2分/約160m)、宿河原南公園(徒歩2分/約90m)、生田緑地(徒歩29分/約2,250m)、藤子・F・不二雄ミュージアム(徒歩15分/約1,180m)、まいばすけっと宿河原駅前店(徒歩8分/約570m)、ライフ宿河原店(徒歩13分/約1040m)、ビッグ・エー川崎宿河原店(徒歩7分/約510m)、クロス向ヶ丘(徒歩23分/約1,780m)、川崎市立多摩病院(徒歩18分/約1,440m)
※登戸駅前地区第一種市街地再開発事業(2029年度完了予定)

【この物件広告についての注釈】

※価格は物件の代金総額を表示しています。消費税が課税される場合は税込み価格を表示しており、10000円未満を切り上げている場合があります。

※住戸別の価格(帯)表記については、そのタイプに含まれるすべての住戸の情報を掲載していない場合があります。住戸タイプと各住戸の価格帯表記について、単位(1000万円・100万円・10万円)が異なる場合があります。

※「モデルルーム」とは、間取りや仕様・設備などを知ることができる施設全般を指し、それらの一部のみ展示している「サンプルルーム」や「ギャラリー」、「インフォメーションセンター」なども含みます。

※完成予想図はいずれも外構、植栽、外観等実際のものとは多少異なることがあります。

※CG合成の画像の場合、実際とは多少異なる場合があります。

※完成後1年以上を経過した未入居物件が掲載される場合があります。ご了承ください。

※掲載の省エネ性能ラベル内の物件・住棟・号室名称については最新のものに変更されている場合があります。

※概要のエネルギー消費性能、断熱性能、目安光熱費については、表示している省エネ性能ラベルによってデータの内容が異なります。販売戸数が複数の住棟ラベル、または住戸ラベルの場合は、原則建築確認が下りている物件全体の最小~最大を、販売戸数1戸の住戸ラベルの場合はその住戸のデータを表示しています。

ミオカステーロ宿河原II 物件概要

所在地
神奈川県川崎市多摩区宿河原6-606-1他(地番)
地図を見る
交通 JR南武線「宿河原」歩6分 総戸数 56戸(管理事務室1戸含む)
間取り 2LDK+S(納戸)~4LDK 専有面積 61.45m2~80.89m2、(MB含む)
価格
未定
引渡可能時期 2026年8月上旬予定
販売スケジュール 販売開始予定 2025年12月下旬

情報更新日:2025/12/3

お問い合わせ先

ミオカステーロ多摩マンションギャラリー

0120-302-525 無料

お問合せの際は『SUUMO(スーモ)を見て』とお伝えいただくとスムーズです。

営業時間:10:00AM~6:00PM

定休日:水曜日、第1・3・5木曜日(祝日は営業)

※携帯電話・PHSからもご利用いただけます。

見学予約スケジュール

見学をご希望される日程をお選びください。

12/5
12/6
12/7
12/8
12/9
12/10
12/11
12/12
12/13
12/14
12/15
12/16
12/17
12/18
12/19
12/20
12/21
12/22
12/23
12/24
12/25
12/26
12/27
12/28
12/29
12/30
12/31
1/1
1/2
1/3
1/4
1/5
1/6
1/7
1/8

見学予約メニュー

  • (土日祝)プロジェクト発表会[120分](所要時間:120分)

    ◇◆開催日時:土日祝10:00~13:30~15:30~◆◇

  • (平日)プロジェクト発表会[120分](所要時間:120分)

    ◇◆開催日:月火金 10:00~ 13:30~ 15:30~◆◇

【67730504】ミオカステーロ宿河原II
他の物件も見てみる!

あなたにオススメの物件

PR

条件を変更して物件を探す

ページトップへ戻る

見学予約

可能な日程

12/5
12/6
12/7
12/8
12/9
12/10
12/11
他の日程
簡単!約2分で完了
以前、資料請求した物件です
簡単!約2分で完了 まずは気軽に見学予約をしてみよう!
以前にもチェックした物件です
簡単!約2分で完了 まずは気軽に見学予約や資料請求をしてみよう!

モデルルーム見学は予約優先でのご案内になります。

ぜひ、お早めにご予約ください。