太平ハウス・ラボ

太平ハウス・ラボ

富山市の注文住宅・ゼロエネルギー住宅(ZEH)ならおまかせ
お気に入りに追加する
富山県富山市  Mさん
【富山市/長期優良住宅/45.4坪/インナーガレージの家】長年夢見続けてきた、車と一緒に暮らす家が実現!
太平ハウス・ラボ 【富山市/長期優良住宅/45.4坪/インナーガレージの家】長年夢見続けてきた、車と一緒に暮らす家が実現!の建築実例画像1
  • 本体価格
    2,800万円2,899万円
    61.7万円63.9万円/坪
  • 延床面積
    150.20m2 (45.4坪)
    敷地面積
    207.77m2 (62.8坪)
    家族構成
    夫婦
  • 竣工年月
    2019年8月
    工法
    木造軸組(パネル併用工法)
この会社をもっと知りたくなったら
無料でお届け!まずはカタログ請求

施主Mさんのこだわり

ガレージにときめく夫、家事動線に助けられた妻。夫婦の願いをカタチに

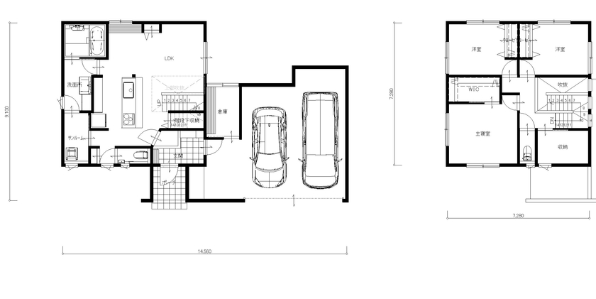
趣味の車を自分でメンテナンスできる、大きなインナーガレージのある家を夢見ていたMさん。その夢を叶えたのがこの「ガレージハウス」だ。ガレージハウスというネーミングは、決して誇張ではない。1階部分の約半分の42m2が、愛車のためのスペースとして占められているのだ。大型車を2台所有し、しかも自動車いじりを楽しむためには、これだけのスペースが不可欠だったのだ。また羨ましいことに、このガレージの中には、自転車を飾り、メンテナンスするためのバイク専用ルームも用意されて… 続きを読む

趣味の車を自分でメンテナンスできる、大きなインナーガレージのある家を夢見ていたMさん。その夢を叶えたのがこの「ガレージハウス」だ。ガレージハウスというネーミングは、決して誇張ではない。1階部分の約半分の42m2が、愛車のためのスペースとして占められているのだ。大型車を2台所有し、しかも自動車いじりを楽しむためには、これだけのスペースが不可欠だったのだ。また羨ましいことに、このガレージの中には、自転車を飾り、メンテナンスするためのバイク専用ルームも用意されている。「妻のこだわりは、家事動線でした」とMさんが語るように、キッチンや水廻りの配置にも工夫が凝らされている。アイランド型のキッチンとダイニングテーブルを、一直線に配置できるように設計。食事の配膳や後片付けも、最短距離で行えるよう配慮されている。洗濯したものをその場で乾かせる、サンルームの使い勝手もよいそうだ。おかげで以前の生活と比べると、家事にかける時間は大幅に短縮できたという。夫と妻の日々に、大きな変化をもたらしたこの家は、きっと長く愛され続ける家になるだろう。

間取り図

1階
太平ハウス・ラボ 【富山市/長期優良住宅/45.4坪/インナーガレージの家】長年夢見続けてきた、車と一緒に暮らす家が実現!の間取り図null1階
この会社をもっと知りたくなったら
無料でお届け!まずはカタログ請求

内外観ギャラリー

この会社をもっと知りたくなったら
無料でお届け!まずはカタログ請求

この会社の他の建築実例を見る

この建築実例が気になった方へおすすめ

この建築実例の詳細情報

この建築実例を建てた店舗情報

住所 富山県富山市黒瀬北町2-3-15
問い合わせ
076-422-1911
  • ※営業時間内の対応となります。

  • ※お問い合わせの際は「SUUMO(スーモ)を見て」とお伝え下さい。

ホームページ この会社のホームページへ

太平ハウス・ラボのコンテンツ一覧

お問い合わせ

カタログをもらう
総合カタログ
太平ハウス・ラボのカタログ(安心・安全、健康・快適なハウス・ラボの家)
安心・安全、健康・快適なハウス・ラボの家
問合コード:1694250001
イベントに参加する
お問い合わせ先
076-422-1911
  • ※営業時間内の対応となります。

  • ※お問い合わせの際は「SUUMO(スーモ)を見て」とお伝え下さい。

  • 富山県富山市黒瀬北町2-3-15

  • 定休日:水曜日

この会社のホームページへ

この会社が気になったら

カタログをもらう
総合カタログ
太平ハウス・ラボのカタログ(安心・安全、健康・快適なハウス・ラボの家)
安心・安全、健康・快適なハウス・ラボの家
問合コード:1694250001
イベントに参加する

関連キーワード

この建築実例のその他の特徴
ページトップへ戻る