スタジオ・チッタ

スタジオ・チッタ

建築デザイナーならではの「+αの発想」でお客様の理想をカタチにします
お気に入りに追加する
千葉県  Aさん
【2000万円/21.3坪/間取り有/狭小住宅】限られた空間に“好き”を凝縮をした、北欧ヴィンテージの家
スタジオ・チッタ 【2000万円/21.3坪/間取り有/狭小住宅】限られた空間に“好き”を凝縮をした、北欧ヴィンテージの家の建築実例画像1
  • 本体価格
    2,000万円
    93.7万円/坪
  • 延床面積
    70.61m2 (21.3坪)
    敷地面積
    66.44m2 (20.0坪)
    家族構成
    夫婦
  • 竣工年月
    -
    工法
    木造軸組
この会社をもっと知りたくなったら
無料でお届け!まずはカタログ請求

施主Aさんのこだわり

将来は英会話教室にすることも見据えた空間設計と、北欧ヴィンテージ家具が似合う家に

スタジオ・チッタが運営するインテリアショップで、よくヴィンテージ家具を購入していたというAさん。戸建てを建てたいという想いが募り、同社へ依頼することに。自身で選んだ土地は、地域の名所である桜並木が望める場所。しかしそこは間口3mの狭小地。快適な暮らしを叶えるためには設計上の工夫が必要だった。Aさん夫妻は共に英会話の先生。一番の希望は「玄関土間を広く確保して、将来はそこを英会話教室にしたい」というもの。そのためLDKなどのメインの生活空間は2階に配置し、狭小… 続きを読む

スタジオ・チッタが運営するインテリアショップで、よくヴィンテージ家具を購入していたというAさん。戸建てを建てたいという想いが募り、同社へ依頼することに。自身で選んだ土地は、地域の名所である桜並木が望める場所。しかしそこは間口3mの狭小地。快適な暮らしを叶えるためには設計上の工夫が必要だった。Aさん夫妻は共に英会話の先生。一番の希望は「玄関土間を広く確保して、将来はそこを英会話教室にしたい」というもの。そのためLDKなどのメインの生活空間は2階に配置し、狭小住宅であっても閉塞感がなく、できるだけ開放的な空間になるよう、高さのある勾配天井にした。天井と壁の境目の部分はRを描くように施工され、空間に柔らかな印象を生み出している。北欧やヴィンテージ家具が好きなAさんの好みや手持ちの家具と調和するデザインもこだわり。特に玄関を入って正面に見える1階から2階まで連なるリブパネルは、昔の北欧の建物にも使われていたことから、設計士が探して提案してくれたそう。また限られた空間を有効に利用できるように、収納や棚の多くは同社が造作。デザインの統一感と使いやすさが叶い、Aさんも大満足。タイルや収納の取っ手など、細部に至るまで夫婦の“好き”を詰め込んだ住まいで、これからも幸せな思い出が増えてゆくのだろう。

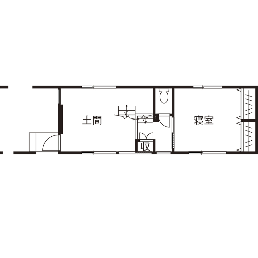
間取り図(1LDK)

1階
スタジオ・チッタ 【2000万円/21.3坪/間取り有/狭小住宅】限られた空間に“好き”を凝縮をした、北欧ヴィンテージの家の間取り図(1LDK)1階
2階
スタジオ・チッタ 【2000万円/21.3坪/間取り有/狭小住宅】限られた空間に“好き”を凝縮をした、北欧ヴィンテージの家の間取り図(1LDK)2階
ロフト
スタジオ・チッタ 【2000万円/21.3坪/間取り有/狭小住宅】限られた空間に“好き”を凝縮をした、北欧ヴィンテージの家の間取り図(1LDK)ロフト
この会社をもっと知りたくなったら
無料でお届け!まずはカタログ請求

内外観ギャラリー

この会社をもっと知りたくなったら
無料でお届け!まずはカタログ請求

この会社の他の建築実例を見る

この建築実例が気になった方へおすすめ

この建築実例の詳細情報

この建築実例を建てた店舗情報

店舗名 千葉Studio
住所 千葉県千葉市中央区末広1-2-6
問い合わせ
043-223-7676
  • ※営業時間内の対応となります。

  • ※お問い合わせの際は「SUUMO(スーモ)を見て」とお伝え下さい。

ホームページ この会社のホームページへ

スタジオ・チッタのコンテンツ一覧

お問い合わせ

カタログをもらう
カタログ一覧

この会社が気になったら

カタログをもらう

関連キーワード

この建築実例のその他の特徴
ページトップへ戻る