【27坪/旗竿地/2階リビング/間取り図】高台の眺望を取り込む吹抜け窓と、家事ラクな回遊動線で快適な暮らし
施主Rさんのこだわり
お子さんを授かったことがきっかけで、賃貸住宅からの住み替えを決めたRさんご夫妻。「要望を丁寧に汲んでくれたMD studio.さんとの家づくりは楽しく、大変だと思ったことはありませんでした」と語る。広々としたLDKと書斎や子ども部屋が欲しい、主寝室・FCL(ファミリークロゼット)・水回りを回遊動線でつなぎたい、といったお二人の希望に応えて、同社は3階建てを計画。ダイニングの吹き抜けが開放的な2階リビングを設計した。また書斎コーナーは、下に収納スペースを設け…
続きを読む
お子さんを授かったことがきっかけで、賃貸住宅からの住み替えを決めたRさんご夫妻。「要望を丁寧に汲んでくれたMD studio.さんとの家づくりは楽しく、大変だと思ったことはありませんでした」と語る。広々としたLDKと書斎や子ども部屋が欲しい、主寝室・FCL(ファミリークロゼット)・水回りを回遊動線でつなぎたい、といったお二人の希望に応えて、同社は3階建てを計画。ダイニングの吹き抜けが開放的な2階リビングを設計した。また書斎コーナーは、下に収納スペースを設けてスキップフロアとし、上部は吹き抜けに。空間にメリハリが生まれ、スペース同士につながりが生まれた。1階の水回りには乾燥機も設け、FCLとつなげることにより、洗濯してから畳んでしまうまでがコンパクトな動線となっている。「入居してから一冬過ごしたところですが、夜に暖房を入れるだけで、その後も十分暖かく快適でした。明るさや開放感はもちろん、断熱性能の高さも実感しています」とRさん。淡いベージュと黒を基調としたシックで温かみのあるインテリアは、同社のインテリアコーディネーターからの提案による。「敷地の状況から家族の暮らし、インテリアまで、希望を考慮して提案してくれました。週末や夜も家にいるのがいい、と思うくらい気に入っています」。
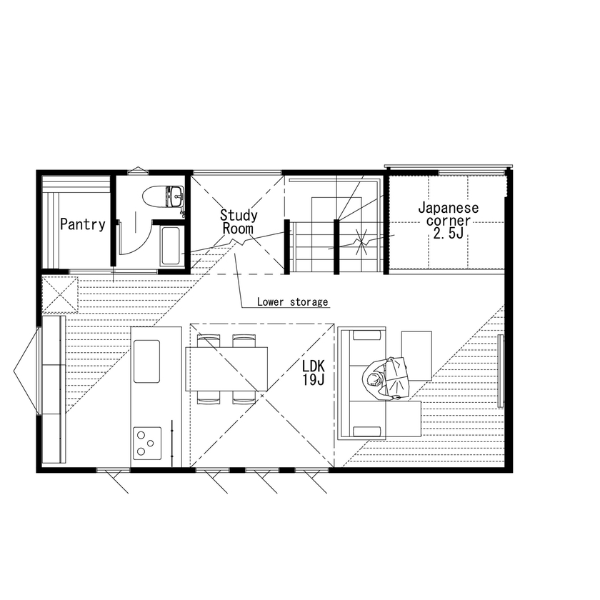
間取り図(3LDK+WIC+書斎)
内外観ギャラリー
-
2階のダイニングには吹き抜けが設けられ、南側の壁一面に、聖堂を思わせる縦長の窓が並ぶ。高台という立地を活かし、…
続きを読む
2階のダイニングには吹き抜けが設けられ、南側の壁一面に、聖堂を思わせる縦長の窓が並ぶ。高台という立地を活かし、床から立ち上がる開口部は、眼下の住宅地から遠くの森や空までを切り取り、開放感と自然光を室内にもたらしてくれる
-
リビング側からLDKを見る。階段横には、高さ50cmほどの収納スペースと、その上にスキップフロアの書斎を配置。…
続きを読む
リビング側からLDKを見る。階段横には、高さ50cmほどの収納スペースと、その上にスキップフロアの書斎を配置。内装や家具の基調色は、淡いベージュと黒。壁やエアコン、巾木、窓の枠などをベージュに、キッチンや家具、照明などを黒と、細かい部分まで素材も統一して同社が提案している。白とは異なる温かみのあるベージュに包まれて、ほっとする居心地のよい空間だ
-
スキップフロアの書斎コーナーは、階段の踊り場を拡張したようなレイアウト。天井が低そうに見えるが、3階の正面にあ…
続きを読む
スキップフロアの書斎コーナーは、階段の踊り場を拡張したようなレイアウト。天井が低そうに見えるが、3階の正面にある壁の後ろに、書斎コーナー上部の吹き抜けが広がる。LDKや窓の外を見渡せる位置にあり、家族の気配も感じられる。普段も写真のように飲み物を渡すのだそう
-
高台の奥まった敷地に建つR氏邸。外観もモノトーンでまとめ、周囲からの視線が気になる2階の窓に配慮してルーバーを…
続きを読む
高台の奥まった敷地に建つR氏邸。外観もモノトーンでまとめ、周囲からの視線が気になる2階の窓に配慮してルーバーを設けた
-
2階にあるキッチン。インテリアの色調に合わせて冷蔵庫や家電などもマットな黒を選んで統一した。どちらも料理をする…
続きを読む
2階にあるキッチン。インテリアの色調に合わせて冷蔵庫や家電などもマットな黒を選んで統一した。どちらも料理をするというご夫妻が2人で立っても動きやすい、ゆったりとしたスペースに。左手にはダイニングと同じ縦長の窓があるため、視線が遠くまで抜けて開放感がある
-
キッチンの横にある引き違い戸は、左を開けるとパントリーが。棚はL字型の大容量で、すっきりとしたキッチンを叶える…
続きを読む
キッチンの横にある引き違い戸は、左を開けるとパントリーが。棚はL字型の大容量で、すっきりとしたキッチンを叶える。引き戸の右を開ければ、手洗いと、奥にトイレが。2つのスペースを1組の引き違い戸で開閉することで、LDK側は建具1つでスッキリとさせるアイデア
-
エコカラットを用いた装飾壁がシックなリビング。TVの裏側にゲーム機収納用のニッチを設けるため装飾壁を計画したが…
続きを読む
エコカラットを用いた装飾壁がシックなリビング。TVの裏側にゲーム機収納用のニッチを設けるため装飾壁を計画したが、あえて必要以上に横長のサイズとすることで、エコカラットの存在感が増し、上質な設えに。左にある小上がりの和室は、下部を引き出し収納とした。窓の外側にはルーバーが施され、外から室内は見えづらいが、中からは視線が抜けるという効果が
-
スキップフロアの書斎コーナー。小さいスペースだが上部が吹き抜けているため、面積以上に開放感が。隠れ家のような雰…
続きを読む
スキップフロアの書斎コーナー。小さいスペースだが上部が吹き抜けているため、面積以上に開放感が。隠れ家のような雰囲気もあり、仕事に集中できそうだ
-
1階のFCL~洗面室~脱衣室~浴室への動線。脱衣室には洗濯機・乾燥機を備えており、洗濯から乾燥までを終えたらF…
続きを読む
1階のFCL~洗面室~脱衣室~浴室への動線。脱衣室には洗濯機・乾燥機を備えており、洗濯から乾燥までを終えたらFCLの作業カウンターでアイロンをかけたり畳んだりした後、すぐ近くにしまうことができる。FCLは、洗面室と主寝室それぞれにつながり回遊動線を描くため、朝晩のルーティンもスムーズ
-
玄関ホールは、凹凸のあるエコカラットに照明を当てることで陰影を強調し、グレード感のある空間に。フロートタイプの…
続きを読む
玄関ホールは、凹凸のあるエコカラットに照明を当てることで陰影を強調し、グレード感のある空間に。フロートタイプの収納で軽やかさと空間のゆとりも演出。住まいの第一印象を決める飾り棚としても活躍する
この建築実例の担当者
R様は2階建てのベースプランから計画をスタートされたお客様。コンパクトな敷地でありながら、必要な空間は広々と感じられるよう工夫を施しています。シンプルな空間で、素材感が引き立つ設計を心掛けました。
この会社の他の建築実例を見る
この建築実例の詳細情報
|
商品名
|
-
|
|
部材・設備
|
-
|
|
延床面積
|
125.03m2
(37.8坪)
|
|
敷地面積
|
91.77m2
(27.7坪)
|
|
工法
|
2×4、2×6
|
|
本体価格
|
4,000万円~
|
|
竣工年月
|
2023年12月
|
この建築実例を建てた店舗情報
|
店舗名
|
横浜本店
|
|
住所
|
神奈川県横浜市神奈川区泉町17-1 第一泉ビル5F
|
|
問い合わせ
|
|
|
ホームページ
|
この会社のホームページへ
|
MD studio. 建築士とつくる家のコンテンツ一覧