ジェネシス

ジェネシス

土地探しから家づくりまでワンストップ対応。リラックスデザイン×高気密・高断熱の家
お気に入りに追加する
東京都  Aさん
【高断熱・全館空調/間取り有】高性能で省エネ&家中が快適に。間取りもデザインも性能もこだわった我が家
ジェネシス 【高断熱・全館空調/間取り有】高性能で省エネ&家中が快適に。間取りもデザインも性能もこだわった我が家の建築実例画像1
  • 本体価格
    3,000万円3,499万円
    97.3万円113.5万円/坪
  • 延床面積
    101.98m2 (30.8坪)
    敷地面積
    129.14m2 (39.0坪)
    家族構成
    夫婦+子ども2人
  • 竣工年月
    2022年12月
    工法
    木造軸組
この会社をもっと知りたくなったら
無料でお届け!まずはカタログ請求

施主Aさんのこだわり

旗竿地でも開放感あふれる室内。コの字型キッチンを中心に家族が集う居心地いいLDK

「引越しが多かったため、環境もデザインも満足な、落ち着ける家を建てたい」とAさん夫妻。「高気密・高断熱の家」をテーマに土地探しと工務店探しを同時に行ない、検討した末にジェネシスに依頼した。手に入れた土地は住宅に囲まれた旗竿地だが「抜け感のあるLDKを」という要望に応え、担当者は、隣家の合間の視界が開ける場所に向けて大きな窓を配置することを提案。それをベースに間取りをつくった。玄関から収納を経てキッチンに向かうプランは、買い物して帰宅した時に便利な動線。モー… 続きを読む

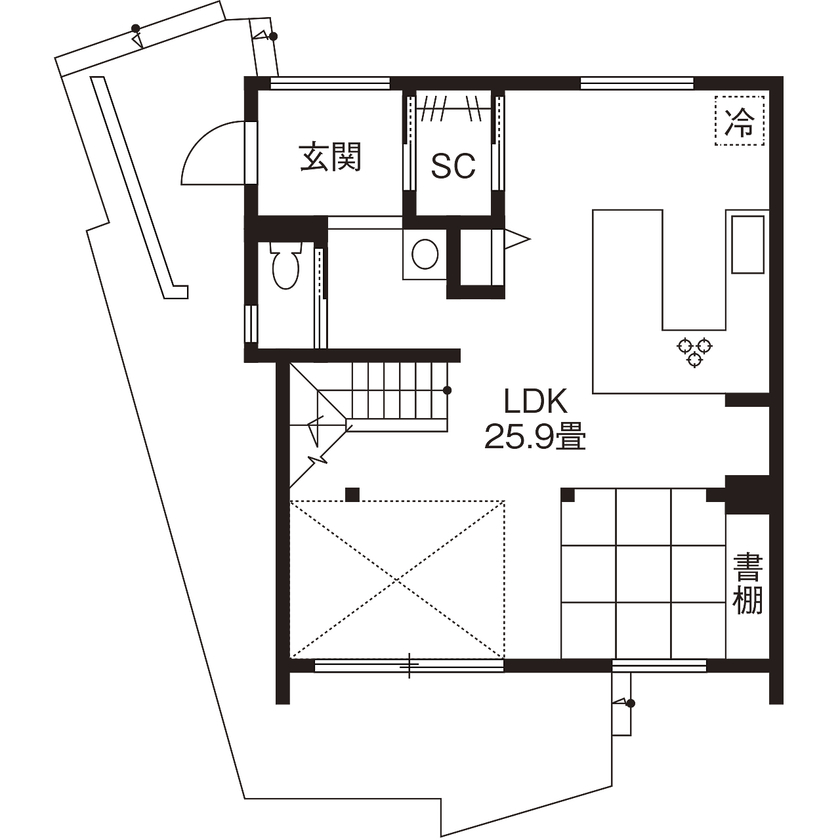
「引越しが多かったため、環境もデザインも満足な、落ち着ける家を建てたい」とAさん夫妻。「高気密・高断熱の家」をテーマに土地探しと工務店探しを同時に行ない、検討した末にジェネシスに依頼した。手に入れた土地は住宅に囲まれた旗竿地だが「抜け感のあるLDKを」という要望に応え、担当者は、隣家の合間の視界が開ける場所に向けて大きな窓を配置することを提案。それをベースに間取りをつくった。玄関から収納を経てキッチンに向かうプランは、買い物して帰宅した時に便利な動線。モールテックスのコの字型キッチンは特注で、食事後もおしゃべりが弾む家族のお気に入りの場所だ。リビング一角に設けた小上がりの畳スペースには、足を下ろして腰掛けられるスタディーコーナーを。吹き抜けに面した2階の洗面室は、広いスペースを確保してランドリールームを併設した。1階は吹抜けのリビングとスケルトン階段という開放的なLDKだが、UA値0.51、C値0.8という高い気密断熱性によって、夏は1・2階に1台ずつのエアコン、冬は床下エアコンで室内は隅々まで快適だという。「こだわりが多かった分、家づくりは大変でしたが、これ以上のものはできないと思う。すべてに満足しています」と笑顔で話すAさんだ。

間取り図(3LDK)

1階
ジェネシス 【高断熱・全館空調/間取り有】高性能で省エネ&家中が快適に。間取りもデザインも性能もこだわった我が家の間取り図(3LDK)1階
2階
ジェネシス 【高断熱・全館空調/間取り有】高性能で省エネ&家中が快適に。間取りもデザインも性能もこだわった我が家の間取り図(3LDK)2階
小屋裏
ジェネシス 【高断熱・全館空調/間取り有】高性能で省エネ&家中が快適に。間取りもデザインも性能もこだわった我が家の間取り図(3LDK)小屋裏
この会社をもっと知りたくなったら
無料でお届け!まずはカタログ請求

内外観ギャラリー

この会社をもっと知りたくなったら
無料でお届け!まずはカタログ請求

この会社の他の建築実例を見る

この建築実例が気になった方へおすすめ

  • この建築実例のカタログをもらう

    ジェネシスのカタログ画像
    総合カタログ
    ここちいい家(ジェネシス会社案内)
    会社案内とこだわりの事例紹介、見学会などのイベント案内をセットで送付します。

この建築実例の詳細情報

この建築実例を建てた店舗情報

住所 東京都武蔵野市吉祥寺本町3-9-14
問い合わせ
0422-21-1835
  • ※営業時間内の対応となります。

  • ※お問い合わせの際は「SUUMO(スーモ)を見て」とお伝え下さい。

ホームページ この会社のホームページへ

ジェネシスのコンテンツ一覧

お問い合わせ

カタログをもらう
総合カタログ
ジェネシスのカタログ(ここちいい家(ジェネシス会社案内))
ここちいい家(ジェネシス会社案内)
問合コード:1238060001
お問い合わせ先
0422-21-1835
  • ※営業時間内の対応となります。

  • ※お問い合わせの際は「SUUMO(スーモ)を見て」とお伝え下さい。

  • 東京都武蔵野市吉祥寺本町3-9-14

  • 定休日:毎週水曜

この会社のホームページへ

この会社が気になったら

カタログをもらう
総合カタログ
ジェネシスのカタログ(ここちいい家(ジェネシス会社案内))
ここちいい家(ジェネシス会社案内)
問合コード:1238060001

関連キーワード

この建築実例のその他の特徴
ページトップへ戻る