エイ・ワン(A-1 home)

エイ・ワン(A-1 home)

「無垢材×自由設計×コスパ」でつくるこだわりの住まいを32.8坪1980万円台から実現
お気に入りに追加する
茨城県行方市  Hさん
【41.5坪/2000万円台/平屋/間取り有】カッコイイと暮らしやすい、どちらも叶えた5種の木の平屋
エイ・ワン(A-1 home) 【41.5坪/2000万円台/平屋/間取り有】カッコイイと暮らしやすい、どちらも叶えた5種の木の平屋の建築実例画像1
  • 本体価格
    2,500万円2,999万円
    60.2万円72.2万円/坪
  • 延床面積
    137.46m2 (41.5坪)
    敷地面積
    -
    家族構成
    -
  • 竣工年月
    2022年7月
    工法
    木造軸組
この会社をもっと知りたくなったら
無料でお届け!まずはカタログ請求

施主Hさんのこだわり

デザインだけじゃなく設備・材質・間取りにもこだわったカッコイイ平屋

「とにかくカッコイイ家にしたい!」というお施主様の想いから始まったスタイリッシュデザインに際立つこだわりの木の平屋造り。広々としたテラスはヒノキのルーバーが目を引き、アウトドアリビングとして活用できるように深い軒を設計。また、一部突き出した屋根はリビングの空間をより広げ、天井高4~4.5mの解放感溢れるLDKが誕生した。軒天にはウエスタンレッドシダーを採用し、モダンな外装と木とのコントラストが美しい外観になった。玄関に入るとローズマホガニーヘリンボーンの床… 続きを読む

「とにかくカッコイイ家にしたい!」というお施主様の想いから始まったスタイリッシュデザインに際立つこだわりの木の平屋造り。広々としたテラスはヒノキのルーバーが目を引き、アウトドアリビングとして活用できるように深い軒を設計。また、一部突き出した屋根はリビングの空間をより広げ、天井高4~4.5mの解放感溢れるLDKが誕生した。軒天にはウエスタンレッドシダーを採用し、モダンな外装と木とのコントラストが美しい外観になった。玄関に入るとローズマホガニーヘリンボーンの床とウエスタンレッドシダーの天井に囲まれた空間が出迎える。リビングは高級感漂うブラックウォルナットのフローリング、その他の居室はメープルのフローリングを採用し、こだわりに満ちた本物の木を楽しむことができる。毎日の家事負担を軽減するため、ゾーニングをもとにした動線計画を考えた間取りにも注目。特に家事負担の大きい洗濯だが、パウダールームに設置した洗濯機とガス乾燥機、そして隣接したファミリークロークにより、最低限の動作で家事が完了する。その他、回遊動線上に大容量の収納を配置した部屋が片付きやすい工夫など、ストレスを抑えた生活がしやすくなるポイントを詰め込んだ平屋が完成した

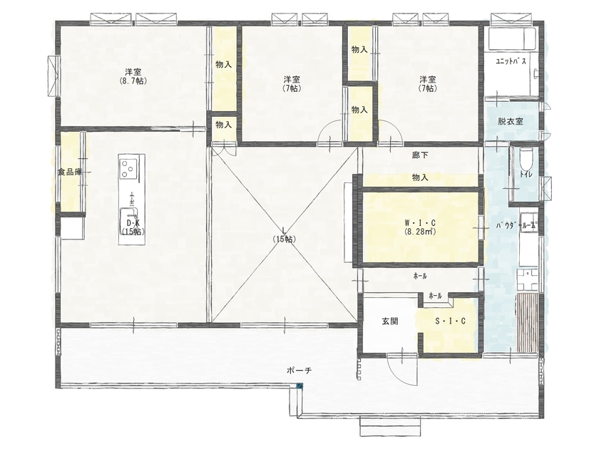
間取り図(3LDKS+WIC+SIC)

1階
エイ・ワン(A-1 home) 【41.5坪/2000万円台/平屋/間取り有】カッコイイと暮らしやすい、どちらも叶えた5種の木の平屋の間取り図(3LDKS+WIC+SIC)1階
この会社をもっと知りたくなったら
無料でお届け!まずはカタログ請求

内外観ギャラリー

この会社をもっと知りたくなったら
無料でお届け!まずはカタログ請求

この会社の他の建築実例を見る

この建築実例が気になった方へおすすめ

この建築実例の詳細情報

この建築実例を建てた店舗情報

住所 茨城県行方市玉造甲4009-1
問い合わせ
0299-55-0321
  • ※営業時間内の対応となります。

  • ※お問い合わせの際は「SUUMO(スーモ)を見て」とお伝え下さい。

ホームページ この会社のホームページへ

エイ・ワン(A-1 home)のコンテンツ一覧

お問い合わせ

カタログをもらう
総合カタログ
エイ・ワン(A-1 home)のカタログ(施工例集)
施工例集
問合コード:1510030001
お問い合わせ先
0299-55-0321
  • ※営業時間内の対応となります。

  • ※お問い合わせの際は「SUUMO(スーモ)を見て」とお伝え下さい。

  • 茨城県行方市玉造甲4009-1

この会社のホームページへ

この会社が気になったら

カタログをもらう
総合カタログ
エイ・ワン(A-1 home)のカタログ(施工例集)
施工例集
問合コード:1510030001

関連キーワード

この建築実例のその他の特徴
ページトップへ戻る