ジャストホーム(越谷・草加)

ジャストホーム(越谷・草加)

お客様ひとりひとりに、思い描く理想のマイホームを
お気に入りに追加する
埼玉県草加市  Tさん
【2000万円台/間取り/40坪/バルコニー/草加】縦横の広がりをもたらすスキップフロア+吹き抜けで開放的な家
ジャストホーム(越谷・草加) 【2000万円台/間取り/40坪/バルコニー/草加】縦横の広がりをもたらすスキップフロア+吹き抜けで開放的な家の建築実例画像1
  • 本体価格
    2,370万円
    58.7万円/坪
  • 延床面積
    133.52m2 (40.3坪)
    敷地面積
    -
    家族構成
    夫婦+子ども1人
  • 竣工年月
    2016年10月
    工法
    木造軸組
この会社をもっと知りたくなったら
無料でお届け!まずはカタログ請求

施主Tさんのこだわり

スキップフロアが作り出す立体空間は、家族のコミュニケーションもスムーズに

T邸のコンセプトは、スキップフロアがもたらす緩やかなゾーニングで、家族の視線が程よく交わる空間づくり。まるで積み木を組み合わせたような立体空間は、ナチュラルなゾーニングの効果を生み出し、上下にいる家族それぞれが空間の立体性を意識するように。フラットな室内よりタテとヨコの広がりを感じさせるスキップフロアを採用し、暮らしやすさと家族間のコミュニケーションの取りやすい間取りを実現した。1階部分のLDKは、合わせると約30帖の広さになる大空間。吹抜けを設けた3.8… 続きを読む

T邸のコンセプトは、スキップフロアがもたらす緩やかなゾーニングで、家族の視線が程よく交わる空間づくり。まるで積み木を組み合わせたような立体空間は、ナチュラルなゾーニングの効果を生み出し、上下にいる家族それぞれが空間の立体性を意識するように。フラットな室内よりタテとヨコの広がりを感じさせるスキップフロアを採用し、暮らしやすさと家族間のコミュニケーションの取りやすい間取りを実現した。1階部分のLDKは、合わせると約30帖の広さになる大空間。吹抜けを設けた3.8mの高天井のリビングは、光と開放感に溢れた家族のくつろぎのスペースだ。表し梁と間接照明で、団欒のひと時を優しく演出。リビングから3段上がった部分には、スタディカウンターを設置。家族が同じ空間にいながらも、それぞれの時間を充実させることができる、そんな穏やかなつながりをもたらす設計だ。2階の居室は、家族の成長やライフスタイルの変化に合わせて部屋を分けることができるように。程よい距離感で、心地よくつながる。そんな理想的な住まいに仕上がった。

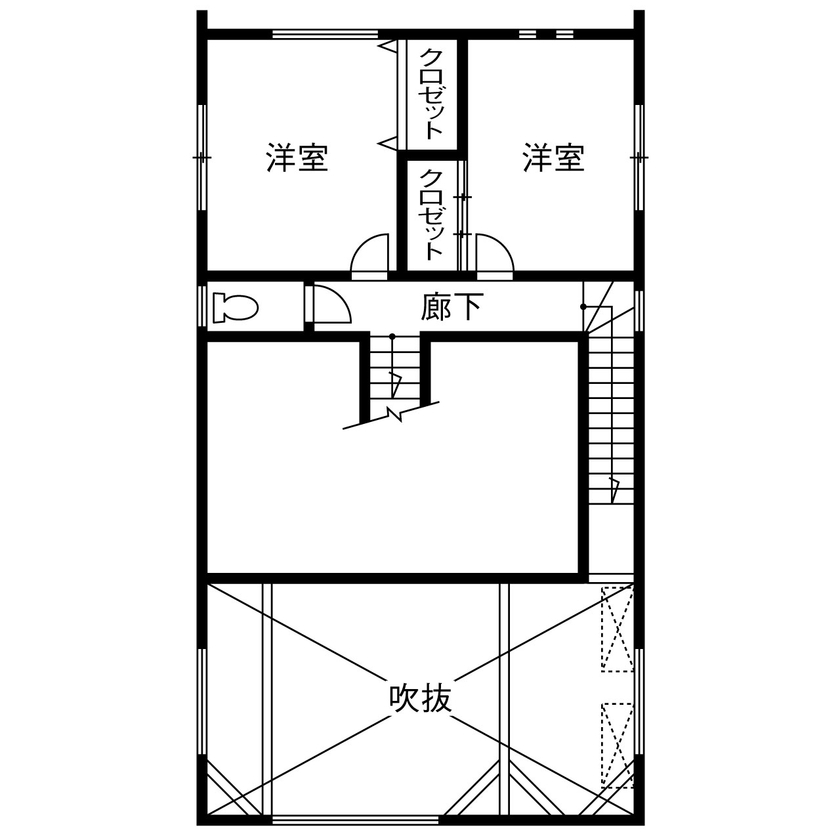
間取り図(4LDK)

1階
ジャストホーム(越谷・草加) 【2000万円台/間取り/40坪/バルコニー/草加】縦横の広がりをもたらすスキップフロア+吹き抜けで開放的な家の間取り図(4LDK)1階
2階(下部)
ジャストホーム(越谷・草加) 【2000万円台/間取り/40坪/バルコニー/草加】縦横の広がりをもたらすスキップフロア+吹き抜けで開放的な家の間取り図(4LDK)2階(下部)
2階(上部)
ジャストホーム(越谷・草加) 【2000万円台/間取り/40坪/バルコニー/草加】縦横の広がりをもたらすスキップフロア+吹き抜けで開放的な家の間取り図(4LDK)2階(上部)
小屋裏収納
ジャストホーム(越谷・草加) 【2000万円台/間取り/40坪/バルコニー/草加】縦横の広がりをもたらすスキップフロア+吹き抜けで開放的な家の間取り図(4LDK)小屋裏収納
この会社をもっと知りたくなったら
無料でお届け!まずはカタログ請求

内外観ギャラリー

この会社をもっと知りたくなったら
無料でお届け!まずはカタログ請求

この会社の他の建築実例を見る

この建築実例が気になった方へおすすめ

  • この建築実例のカタログをもらう

    ジャストホーム(越谷・草加)のカタログ画像
    総合カタログ
    【越谷・草加エリア】ジャストホームのカタログ
    ジャストホームの総合カタログです。
  • イベントに参加する

    ジャストホーム(越谷・草加)のイベント画像
    【完全予約制@越谷市】 暮らし心地を体感できる「長期優良住宅」モデルハウス見学会を開催します!
    • キャンペーン情報
    • 設計・資金相談会
    • モデルハウス見学会
    開催日
    随時開催。お気軽にお問い合わせください。※定休:毎週水曜日
    開催場所
    埼玉県越谷市宮前一丁目9-6

この建築実例の詳細情報

この建築実例を建てた店舗情報

住所 埼玉県越谷市東越谷9-27-8
問い合わせ
048-962-5531
  • ※営業時間内の対応となります。

  • ※お問い合わせの際は「SUUMO(スーモ)を見て」とお伝え下さい。

ホームページ この会社のホームページへ

ジャストホーム(越谷・草加)のコンテンツ一覧

お問い合わせ

カタログをもらう
総合カタログ
ジャストホーム(越谷・草加)のカタログ(【越谷・草加エリア】ジャストホームのカタログ)
【越谷・草加エリア】ジャストホームのカタログ
問合コード:0663380001
お問い合わせ先
048-962-5531
  • ※営業時間内の対応となります。

  • ※お問い合わせの際は「SUUMO(スーモ)を見て」とお伝え下さい。

  • 埼玉県越谷市東越谷9-27-8

  • 定休日:水曜日

この会社のホームページへ

この会社が気になったら

カタログをもらう
総合カタログ
ジャストホーム(越谷・草加)のカタログ(【越谷・草加エリア】ジャストホームのカタログ)
【越谷・草加エリア】ジャストホームのカタログ
問合コード:0663380001

関連キーワード

この建築実例のその他の特徴
ページトップへ戻る