深澤木材

材木のプロと熟練の大工集団がつくる、木にこだわった「和」の家
お気に入りに追加する
埼玉県  Mさん
【3020万円/40坪/間取り有/平屋】吹き抜け窓で明るさを確保した平屋住まい。二世帯住宅対応で和モダンな家
深澤木材 【3020万円/40坪/間取り有/平屋】吹き抜け窓で明るさを確保した平屋住まい。二世帯住宅対応で和モダンな家の建築実例画像1
  • 本体価格
    3,020万円
    75.0万円/坪
  • 延床面積
    133.24m2 (40.3坪)
    敷地面積
    259.44m2 (78.4坪)
    家族構成
    母+本人
  • 竣工年月
    2016年6月
    工法
    木造軸組
この会社をもっと知りたくなったら
無料でお届け!まずはカタログ請求

施主Mさんのこだわり

高齢者にも優しい配慮のある、バリアフリーを実現した平屋の木の家【間取り図有り】

Mさんが要望したのは、室内が明るい家。「正面に家が建つ住宅密集地なので明るさが心配でした。室内に光が届くように、吹き抜けを設けてさらに窓を並べてもらいました。母は足腰が弱く、私も若くはないので、将来車椅子でも移動しやすい外のスロープや、母の部屋からトイレ、洗面、浴室までつながる動線、玄関の一枚板のベンチなど、高齢者に優しいバリアフリーな住まいが実現できました」とMさん。施主と自社大工が現場で話し合いながら臨機応変に施工してくれるのが、深澤木材の家づくりの魅… 続きを読む

Mさんが要望したのは、室内が明るい家。「正面に家が建つ住宅密集地なので明るさが心配でした。室内に光が届くように、吹き抜けを設けてさらに窓を並べてもらいました。母は足腰が弱く、私も若くはないので、将来車椅子でも移動しやすい外のスロープや、母の部屋からトイレ、洗面、浴室までつながる動線、玄関の一枚板のベンチなど、高齢者に優しいバリアフリーな住まいが実現できました」とMさん。施主と自社大工が現場で話し合いながら臨機応変に施工してくれるのが、深澤木材の家づくりの魅力。自社大工は、宮大工の技を持ち伝統工法を継承する経験豊富な実力者揃い。Mさんは「照明やスイッチ、コンセントの位置など、図面ではイメージできない部分を現場で確認しながら施工してくれました」と語る。時には自社大工から「こうしてはどうだろう」と、よりよくするための提案もあるのが嬉しい。外観デザインは深澤木材の提案で、周囲の街並みと調和するかっこいい雰囲気に。厳選した無垢材でつくられた木の家は、木の香りと肌ざわりが心地よい。ぜひ、木のぬくもりに包まれた快適な一戸建てを実現してほしい。【予算2300万円(延床面積30坪の場合)から相談可。まずは経年変化を味わえる盆栽町モデルハウスを見学しよう。気軽にお電話を(月曜休み)】

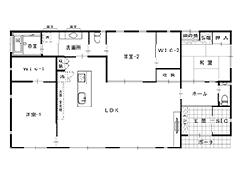
間取り図(3LDK)

1階
深澤木材 【3020万円/40坪/間取り有/平屋】吹き抜け窓で明るさを確保した平屋住まい。二世帯住宅対応で和モダンな家の間取り図(3LDK)1階
この会社をもっと知りたくなったら
無料でお届け!まずはカタログ請求

内外観ギャラリー

この会社をもっと知りたくなったら
無料でお届け!まずはカタログ請求

この会社の他の建築実例を見る

この建築実例が気になった方へおすすめ

  • この建築実例のカタログをもらう

    深澤木材のカタログ画像
    総合カタログ
    深澤木材のカタログ
    深澤木材の総合カタログです。
  • この建築実例を検討時に見学したモデルハウス

    深澤木材のモデルハウス画像1
    深澤木材のモデルハウス画像2
    • 延床面積
      95.84m228.9坪)
    • 所在地
      埼玉県さいたま市北区本郷町326(本社の住所です。平屋展示場は本社より歩いてすぐの場所にあります)
    • 営業時間
      9:00~11:00、14:00~16:00(定休日:日曜日(ご希望の際はお電話でご確認下さい))
    • 和モダン
    • 平屋
    • 快適
    • 等身大

この建築実例の詳細情報

この建築実例を建てた店舗情報

住所 埼玉県さいたま市北区本郷町326
問い合わせ
048-665-1530
  • ※営業時間内の対応となります。

  • ※お問い合わせの際は「SUUMO(スーモ)を見て」とお伝え下さい。

ホームページ この会社のホームページへ

深澤木材のコンテンツ一覧

お問い合わせ

カタログをもらう
総合カタログ
深澤木材のカタログ(深澤木材のカタログ)
深澤木材のカタログ
問合コード:0156340001
お問い合わせ先
048-665-1530
  • ※営業時間内の対応となります。

  • ※お問い合わせの際は「SUUMO(スーモ)を見て」とお伝え下さい。

  • 埼玉県さいたま市北区本郷町326

この会社のホームページへ

この会社が気になったら

カタログをもらう
総合カタログ
深澤木材のカタログ(深澤木材のカタログ)
深澤木材のカタログ
問合コード:0156340001

関連キーワード

この建築実例のその他の特徴
ページトップへ戻る