野村工務店

野村工務店

自然との調和 家族の笑顔にあふれ、お子様が住み続けたいと思える住まいを提供したい
お気に入りに追加する
大阪府枚方市  Iさん
ホームベース型の土地に建つ山小屋風の家。木やしっくいのぬくもりに溢れたLDKに、家族が自然と集まる
  • 本体価格
    2,348万円
    70.0万円/坪
  • 延床面積
    110.99m2 (33.5坪)
    敷地面積
    138.24m2 (41.8坪)
    家族構成
    夫婦+子ども2人
    竣工年月
    2021年2月
    工法
    2×4、2×6
  • 特徴
    耐震・免震・制震  |  2階建て  |  収納充実  |  家事がラク  |  こだわりの外観デザイン  |  通風・採光  |  子育てしやすい  |  …
この会社をもっと知りたくなったら
無料でお届け!まずはカタログ請求

施主Iさんのこだわり

見る角度によって姿を変える外観デザイン。ビルトインガレージが愛車を守る

ビルトインガレージのある山小屋風の家を希望されていたIさん。ご自身で見つけて来られた土地はホームベースのように正面が広く、奥に向かって三角になるユニークな形。一見したところ、大屋根の家を建てるには難しい条件で、つくり手にとっては腕の鳴るリクエスト。Iさんのお話を聞きながら、設計士とインテリアコーディネーターが丁寧にプランをつくり込んでいった。山小屋風の切妻屋根は形状を工夫し、複雑な屋根構成に。デザイントーンを揃えつつ、見る面によって姿が変わる立体的な外観に… 続きを読む

ビルトインガレージのある山小屋風の家を希望されていたIさん。ご自身で見つけて来られた土地はホームベースのように正面が広く、奥に向かって三角になるユニークな形。一見したところ、大屋根の家を建てるには難しい条件で、つくり手にとっては腕の鳴るリクエスト。Iさんのお話を聞きながら、設計士とインテリアコーディネーターが丁寧にプランをつくり込んでいった。山小屋風の切妻屋根は形状を工夫し、複雑な屋根構成に。デザイントーンを揃えつつ、見る面によって姿が変わる立体的な外観になった。「家族が集まるスペースを広くしたい」という希望から、LDKは敷地に沿わせた独特の形状で開放的に。フェンスや植栽で外部からの視線を遮りつつ、大窓からたっぷりと光を取り入れている。自然素材をふんだんに使ったぬくもりのあるインテリアは、お洒落なご夫妻のセンスで家具や照明までこだわってコーディネート。調湿性に優れたしっくい壁や高機能の断熱材、複層ガラスの窓のおかげで一年中快適に過ごせているそう。居心地のよさから家族が自然とリビングへ集まる。「打ち合わせの時間が楽しくて、完成してしまうのが寂しいくらいでした」とご夫妻。味わいを増す自然素材の内装や、庭づくり、部屋の使い方など、今後もご家族で育てていくのを楽しみにされている。

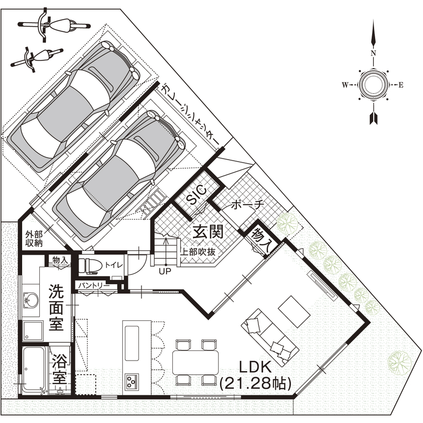
間取り図(3LDK+書斎+WIC+SIC)

1階
野村工務店 ホームベース型の土地に建つ山小屋風の家。木やしっくいのぬくもりに溢れたLDKに、家族が自然と集まるの間取り図(3LDK+書斎+WIC+SIC)1階

間口の広い北東側を正面にして、大屋根をかけた。玄関を中央に置き、ガレージとリビングを両サイドに。玄関ホールはスケルトンタイプの回り階段を設置し、吹抜けから光が届く明るい空間。LDKは敷地に沿わせて配置することで、最大限に広く取った。リビングの南東側の大きな掃き出し窓から庭へとつながる。LDKは2か所… 続きを読む

間口の広い北東側を正面にして、大屋根をかけた。玄関を中央に置き、ガレージとリビングを両サイドに。玄関ホールはスケルトンタイプの回り階段を設置し、吹抜けから光が届く明るい空間。LDKは敷地に沿わせて配置することで、最大限に広く取った。リビングの南東側の大きな掃き出し窓から庭へとつながる。LDKは2か所に出入口を設け、回遊性のある動線に。キッチン側の出入口はトイレ前を通り、ビルトインガレージへ直接出入りできる勝手口へとつながる。キッチン・洗面・浴室の水廻りを1か所にまとめることで、家事もスムーズに。ガレージ内には奥の収納とロフト収納、玄関にはシューズクローゼットがあり、屋外で使うものを室内に持ち込まず、たっぷりとしまっておくことができる。パントリーなど、室内の収納も豊富。

2階
野村工務店 ホームベース型の土地に建つ山小屋風の家。木やしっくいのぬくもりに溢れたLDKに、家族が自然と集まるの間取り図(3LDK+書斎+WIC+SIC)2階

階段そばの吹抜けは、バルコニーに面した大きな窓からの光を階下へと届ける。吹抜けを囲むようにホールを広めに取っていることも、空間のゆとりにつながる。約8帖の主寝室には、2.5帖の書斎スペースのほか、フラットにつながる小屋裏のウォークインクローゼットを続き間で設けた。子ども部屋は2室あり、どちらも2面採… 続きを読む

階段そばの吹抜けは、バルコニーに面した大きな窓からの光を階下へと届ける。吹抜けを囲むようにホールを広めに取っていることも、空間のゆとりにつながる。約8帖の主寝室には、2.5帖の書斎スペースのほか、フラットにつながる小屋裏のウォークインクローゼットを続き間で設けた。子ども部屋は2室あり、どちらも2面採光で明るい空間。ロフト収納はビルトインガレージから梯子で昇り降りして使うことができる。

この会社をもっと知りたくなったら
無料でお届け!まずはカタログ請求

内外観ギャラリー

この会社をもっと知りたくなったら
無料でお届け!まずはカタログ請求

施主Iさんがこの会社に決めた理由

デザインや自然素材の質感に惹かれて相談。変形地でも理想の家づくりができると確信

「子どもの小学校入学までに新居を建てたい」と会社探しをしていたIさん。野村工務店のモデルハウスをいくつか見学し、高原に建つ別荘のようなスタイルが気に入っていたそう。並行して希望するエリアで自ら土地を探し、出会ったのが、2本の道に挟まれたY字路にある変形地だった。立地が気に入り、コスト面でもメリットがあったため、土地を契約する前に希望の家づくりができるかどうかを同社に相談。特殊な土地形状でもこれまでに数々の施工実績があり、十分建築が可能という言葉を聞き、安心… 続きを読む

「子どもの小学校入学までに新居を建てたい」と会社探しをしていたIさん。野村工務店のモデルハウスをいくつか見学し、高原に建つ別荘のようなスタイルが気に入っていたそう。並行して希望するエリアで自ら土地を探し、出会ったのが、2本の道に挟まれたY字路にある変形地だった。立地が気に入り、コスト面でもメリットがあったため、土地を契約する前に希望の家づくりができるかどうかを同社に相談。特殊な土地形状でもこれまでに数々の施工実績があり、十分建築が可能という言葉を聞き、安心して依頼を決めたという。設計の工夫により、敷地の個性は二つとない住まいの魅力に。どの方向から見ても美しい外観デザインも実現した。インテリアに合わせて、家具や照明なども隅々までこだわった住まいが完成した。

この建築実例の担当者より

屋根の形状を工夫し、大屋根のイメージと室内の広さを両立。明るく開放的な空間に

設計・施工の難易度が高い変形地での建築は、野村工務店が得意とするところです。I様邸は、約40坪のホームベース型の敷地に、山小屋風の大屋根の家を希望されていました。また、乗り物がお好きで、2台分プラスアルファの駐車スペースが必要。1台分はビルトインガレージにしたいというご要望もありました。敷地に合わせてそのまま建てると、大屋根がかかる両サイドは天井の高さを十分に取ることができず、室内が狭くなってしまうという課題が出てきます。また、開放的な空間設計には、床面の… 続きを読む

設計・施工の難易度が高い変形地での建築は、野村工務店が得意とするところです。I様邸は、約40坪のホームベース型の敷地に、山小屋風の大屋根の家を希望されていました。また、乗り物がお好きで、2台分プラスアルファの駐車スペースが必要。1台分はビルトインガレージにしたいというご要望もありました。敷地に合わせてそのまま建てると、大屋根がかかる両サイドは天井の高さを十分に取ることができず、室内が狭くなってしまうという課題が出てきます。また、開放的な空間設計には、床面の広がりに加え、縦方向の広がりも重要です。そこで、屋根の形状を工夫。玄関側の正面は大屋根を印象付ける左右対称のシルエットを保ちつつ、裏面や両サイドは一部の屋根の角度を変えたり、ドーマーを設けるなどして、必要な室内のボリュームを確保しました。北東向きの玄関は上部を吹抜けにしたことで、安定した光を室内へと届けます。南~東面にかけて設けたLDKは、敷地に沿わせる形で最大限の広さに。角度が付くことで空間にリズムが生まれ、広がりも感じられます。リビングに面する南東側には日当たりのいい庭も設けることができました。屋根の図面を何度も描き直すなど試行錯誤しましたが、I様のご希望を叶えながら、明るく心地よく暮らしていただけるお住まいになったと思います。

野村工務店の担当者画像
企画設計部
島田 清孝
得意分野
趣味や団欒など日常を楽しむ設計。ご要望以上の提案をするため日々努力しています

この会社の他の建築実例を見る

この建築実例が気になった方へおすすめ

  • この建築実例のカタログをもらう

    野村工務店のカタログ画像
    プラン集
    NOMURAの注文住宅
    多彩な内観・外観・外構デザイン、こだわりの間取りを施工事例からご紹介。
  • モデルハウスを見学する

    野村工務店のモデルハウス画像1
    野村工務店のモデルハウス画像2
    • 延床面積
      101.20m230.6坪)
    • 所在地
      大阪府交野市森北2-12-19
    • 営業時間
      9:00~17:00(定休日以外は当日予約OK)(定休日:火水定休。問合せは年末年始・お盆除く無休)
    • ナチュラル
    • 高性能
    • 趣味
    • 外と繋がる
  • イベントに参加する

    野村工務店のイベント画像
    交野市星田で開催!【完全個別家づくり相談会】土地がある方もない方も\自社分譲地も紹介可!各モデルハウスでの実施も可/!※完全予約制 
    • 設計・資金相談会
    • モデルハウス見学会
    • 土地相談会
    開催日
    随時開催 火水定休。問合せは年末年始・お盆除く無休(定休日以外は当日予約OK)
    開催場所
    大阪府交野市星田6丁目1-20ー1フラット星田 2F
    参加特典
    SUUMOを見て、ご来場いただいた方にギフトカード5000円相当分プレゼントのチャンス!(毎月先着450名)

この建築実例の詳細情報

この建築実例を建てた店舗情報

住所 大阪府交野市星田6丁目1番20-1号 フラット星田2F
問い合わせ
0120-62-5588
  • ※営業時間内の対応となります。

  • ※お問い合わせの際は「SUUMO(スーモ)を見て」とお伝え下さい。

ホームページ この会社のホームページへ

野村工務店のコンテンツ一覧

お問い合わせ

カタログをもらう
プラン集
野村工務店のカタログ(NOMURAの注文住宅)
NOMURAの注文住宅
問合コード:0652900003
お問い合わせ先
0120-62-5588
  • ※営業時間内の対応となります。

  • ※お問い合わせの際は「SUUMO(スーモ)を見て」とお伝え下さい。

  • 大阪府交野市星田6丁目1番20-1号 フラット星田2F

  • 定休日:夏季・冬季休暇

この会社のホームページへ

この会社が気になったら

カタログをもらう
プラン集
野村工務店のカタログ(NOMURAの注文住宅)
NOMURAの注文住宅
問合コード:0652900003

関連キーワード

この建築実例のその他の特徴
ページトップへ戻る