アーキホームライフ

アーキホームライフ

大切な友人の家をお世話するように
お気に入りに追加する
京都府  Tさん
【京都・グッドデザイン賞受賞】お互いに好きな事を大切に想いあえる「夫婦のシェアハウス」(間取り有)
アーキホームライフ 【京都・グッドデザイン賞受賞】お互いに好きな事を大切に想いあえる「夫婦のシェアハウス」(間取り有)の建築実例画像1
  • 本体価格
    2,890万円
  • 延床面積
    -
    敷地面積
    -
    家族構成
    夫婦
  • 竣工年月
    2020年9月
    工法
    木造軸組
この会社をもっと知りたくなったら
無料でお届け!まずはカタログ請求

施主Tさんのこだわり

共有と専有をあわせ持つシェアハウスの様な居心地がある家

2020年グッドデザイン賞を受賞(※)したこの家は、多忙な仕事と長い通勤時間の中にあって子育て、仕事、生活の喜怒哀楽を共にしてきた施主夫妻が互いの理解・尊重を育み、それぞれが好きなことを大切に想いあえるように設計された「共有と専有をあわせ持つシェアハウスのような居心地のある家」だ。団欒を楽しむパブリック空間は余白をしっかりととり、リビングを兼ねるエントランスホールとの間を愛読書棚で仕切ることで、ひとつのライブラリースペースとして広がりのある空間を設計。書棚… 続きを読む

2020年グッドデザイン賞を受賞(※)したこの家は、多忙な仕事と長い通勤時間の中にあって子育て、仕事、生活の喜怒哀楽を共にしてきた施主夫妻が互いの理解・尊重を育み、それぞれが好きなことを大切に想いあえるように設計された「共有と専有をあわせ持つシェアハウスのような居心地のある家」だ。団欒を楽しむパブリック空間は余白をしっかりととり、リビングを兼ねるエントランスホールとの間を愛読書棚で仕切ることで、ひとつのライブラリースペースとして広がりのある空間を設計。書棚を見上げた先にある吹抜けは空と繋がり、屋外ルーバーからこぼれる陽だまりは自然界とも程よい距離感を保った心地よさをパブリック空間にもたらしてくれる。(※)日本デザイン振興会主催。

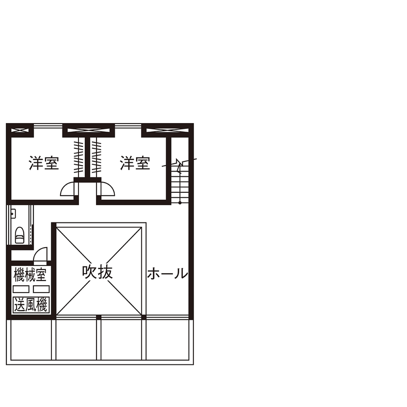
間取り図(4LDK)

1階
アーキホームライフ 【京都・グッドデザイン賞受賞】お互いに好きな事を大切に想いあえる「夫婦のシェアハウス」(間取り有)の間取り図(4LDK)1階
2階
アーキホームライフ 【京都・グッドデザイン賞受賞】お互いに好きな事を大切に想いあえる「夫婦のシェアハウス」(間取り有)の間取り図(4LDK)2階
この会社をもっと知りたくなったら
無料でお届け!まずはカタログ請求

内外観ギャラリー

この会社をもっと知りたくなったら
無料でお届け!まずはカタログ請求

この会社の他の建築実例を見る

この建築実例が気になった方へおすすめ

この建築実例の詳細情報

この建築実例を建てた店舗情報

店舗名 福知山本店
住所 京都府福知山市和久市町123
問い合わせ
0773-23-6277
  • ※営業時間内の対応となります。

  • ※お問い合わせの際は「SUUMO(スーモ)を見て」とお伝え下さい。

ホームページ この会社のホームページへ

アーキホームライフのコンテンツ一覧

お問い合わせ

カタログをもらう
カタログ一覧
※1社で請求できるカタログは3冊までです。

この会社が気になったら

カタログをもらう

関連キーワード

この建築実例のその他の特徴
ページトップへ戻る