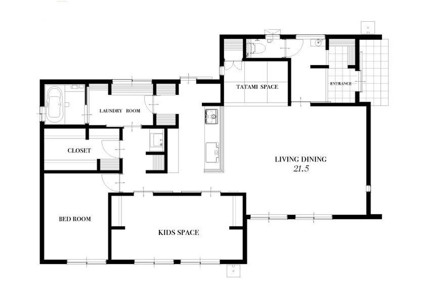
コンセプトは「気持ちに余裕が生まれる住まい」 奥行きのある間取りで、思った以上に広く感じられる設計の平屋。家族が集うリビングは、子どもたちが走り回れる余裕の広さ。リビングとつながる畳スペースは遊び場として大活躍。家族の様子を見守れるキッチンは住まいの中心に配置。そこからつながる水回りと豊富な収納は、無駄な動きを減らして時間に余裕がもてる回遊プランとなっている。桜島の火山灰が降る鹿児島では、洗濯物を外に干すタイミングが難しい。それを解決するのは室内物干しを備… 続きを読む
コンセプトは「気持ちに余裕が生まれる住まい」 奥行きのある間取りで、思った以上に広く感じられる設計の平屋。家族が集うリビングは、子どもたちが走り回れる余裕の広さ。リビングとつながる畳スペースは遊び場として大活躍。家族の様子を見守れるキッチンは住まいの中心に配置。そこからつながる水回りと豊富な収納は、無駄な動きを減らして時間に余裕がもてる回遊プランとなっている。桜島の火山灰が降る鹿児島では、洗濯物を外に干すタイミングが難しい。それを解決するのは室内物干しを備えた広いランドリールームと、スムーズに動ける水回りの家事楽動線。スムーズに動けること、家事の負担を減らすことをしっかり組み込んだプランにより、ストレスを作らない。休めるときにはゆっくりとくつろげるように、主寝室は玄関から一番はなれた奥の位置に。家族と過ごすリビング時間も、一人でゆっくり休む時間も、家にいるときはいつもくつろげる、気持ちに余裕が生まれる住まいとなっている。
デザイン性だけでなく住む人の心地良さを追求したこの家は、自然の景色に馴染むグレーを基調とした外壁と、人気の三角… 続きを読む
デザイン性だけでなく住む人の心地良さを追求したこの家は、自然の景色に馴染むグレーを基調とした外壁と、人気の三角屋根で整えた。洗練されたモダンな外観でありながら、ぬくもりを感じさせる木目調の玄関は、帰宅する家族をあたたかく迎えてくれる。高気密高断熱はもちろん、耐震性もしっかり備えたトリプル性能に加え、マイナスイオンを発生させるAIリキッド工法で快適な室内環境に。そして35年間毎年行われる無料定期点検により、長く安心して暮らせる住まいとなっている。
折り上げ天井と間接照明によりホテルライクな内装インテリア。オフホワイトのクロスにダークトーンの床材を合わせて、… 続きを読む
折り上げ天井と間接照明によりホテルライクな内装インテリア。オフホワイトのクロスにダークトーンの床材を合わせて、深みと落ち着きのあるリビングに仕上げた。大きな2面の窓はウッドデッキへとつながって、カーテンを開ければ開放感は倍増。ウチとソトがつながり、子どもたちが楽しく走り回る声が聞こえてくる。子どものお友達ご家族や、仕事仲間、友人達を招いて、夏はBBQ、冬はホームパーティーを楽しめる。たくさんの来客を招くことに抵抗のない余裕の広さを造りあげた。
明るい光が燦々と入り込む大きな窓には、複層Low-E硝子(アルゴンガス入り)を採用。遮熱断熱効果が高くエアコン… 続きを読む
明るい光が燦々と入り込む大きな窓には、複層Low-E硝子(アルゴンガス入り)を採用。遮熱断熱効果が高くエアコンの効きを左右しにくい省エネ性をプラスしている。また、防犯合わせ硝子なので雨戸さえも不要。台風のときも、留守にするときも、安心できる住環境となっている。対面型のキッチンからはリビングを一望できて、お料理をする人が孤独にならず、一緒になって会話を楽しめる。子どもたちの様子をいつも見守れて、帰宅した家族と顔を合わせられる。「いってらっしゃい」「おかえり」の声が当たり前にある暮らしになっている。
21帖のリビングダイニングはとにかく広い。含水率を平均15%以下まで人工乾燥させた木材を採用した木造軸組工法に… 続きを読む
21帖のリビングダイニングはとにかく広い。含水率を平均15%以下まで人工乾燥させた木材を採用した木造軸組工法により、高耐久の構造に。仕切りの壁がないから地震に弱いということはなく、ベタ基礎工法、耐震面材、制震ダンパーを採用して耐震等級3適合を実現している。安心して暮らせるのは何よりも幸せなこと。お施主様ご家族の幸せのカタチは住まいにしっかりと詰まっている。間接照明の柔らかな照明と、計算されて配置されたダウンライト。明るすぎず、暗すぎず、ほっとする居心地を大切にした。
吊り下げ収納がなくスッキリとした見た目のキッチンは、ダストボックスを収められるカップボードが設置してあり、ワイ… 続きを読む
吊り下げ収納がなくスッキリとした見た目のキッチンは、ダストボックスを収められるカップボードが設置してあり、ワイドサイズの引き出しには大きなお鍋もたくさんの調味料もたっぷりしまうことができる。家族の成長とともに物が増えるのはまずキッチン。いろいろな調理器具や素敵な雑貨屋さんで購入したお気に入りのお皿、まとめ買いの食料品を上手に綺麗に片付けたい。その気持ちを想定して使いやすい設備と機能を兼ね備えた設備を選んだ。さらにコンセントが多いのも魅力。たこ足配線にならない安心感、見た目も使い勝手も気持ち良い。
小物の収納に便利な棚も設置された3.5帖の大容量ウォークインクローゼット。家族の衣類から季節ごとの家電製品まで… 続きを読む
小物の収納に便利な棚も設置された3.5帖の大容量ウォークインクローゼット。家族の衣類から季節ごとの家電製品まで大量に詰め込める。ウォークスルーじゃないことのメリットは、奥に収納ボックスなどを置いて、コの字型に収納範囲を広げられること。枕棚の位置を高くしたことで、パイプの下に引き出し収納を置き、子どもたちが自分の衣類を自分で出し入れできる、「衣類のお片付け」を自然と身につけられるようにした。
脱衣室をランドリールームと兼用に。火山灰が降る鹿児島では洗濯物を室内に干せることが何よりもありがたい。ワイドな… 続きを読む
脱衣室をランドリールームと兼用に。火山灰が降る鹿児島では洗濯物を室内に干せることが何よりもありがたい。ワイドな窓は明るい光を取り込み爽やかな雰囲気に。上部の棚は洗剤など消耗品のストック置きに。カウンターはアイロン掛けや洗濯物を畳むのに適した高さ。立ったまま洗濯物を畳むのはとってもラク。さらに動線にもなっており、通路としてスムーズに動けるようにした。万代ホームの設計士は家事をラクにする間取りを得意としている。長く暮らす大切な家だから、ストレスの無い間取りを重要視した。
| 商品名 | OBU |
| 部材・設備 | 制震AIダンパー 高気密施工 高断熱施工 AIリキッド工法 防火サイディング スプリング付耐震羽子板ボルト カラーベストコロニアル |
| 商品名 | OBU |
| 部材・設備 | 制震AIダンパー 高気密施工 高断熱施工 AIリキッド工法 防火サイディング スプリング付耐震羽子板ボルト カラーベストコロニアル |
| 延床面積 | 96.47m2 (29.1坪) |
| 敷地面積 | 248.29m2 (75.1坪) |
| 工法 | 木造軸組 |
| 本体価格 | 2,000万円~2,499万円 |
| 竣工年月 | 2024年5月 |
| 店舗名 | 鹿児島営業所 |
| 住所 | 鹿児島県鹿児島市鴨池2丁目10-20 |
| 問い合わせ | |
| ホームページ | この会社のホームページへ |
※営業時間内の対応となります。
※お問い合わせの際は「SUUMO(スーモ)を見て」とお伝え下さい。
宮崎県都城市妻ヶ丘町2街区15号
定休日:火曜日・水曜日・年末年始