Mさんがマイホームで叶えたかったのは、『空を見ながら、ゆっくり食事を楽しめる暮らし』。2階に広々としたオープンバルコニーを作ったことで、その夢は実現できた。「休日は音楽を聞きながら家族や友人・知人と食事やバーベキューを楽しんでいます。南側ではなく、あえて西側に設置したので、夏でも午前中は涼しく、ここで過ごす時間が増えました。天気によって出し入れの調整ができる、日よけのオーニングも設けて良かったですね。もう一つ希望したのが、自宅にいながら仕事をスムーズにでき… 続きを読む
Mさんがマイホームで叶えたかったのは、『空を見ながら、ゆっくり食事を楽しめる暮らし』。2階に広々としたオープンバルコニーを作ったことで、その夢は実現できた。「休日は音楽を聞きながら家族や友人・知人と食事やバーベキューを楽しんでいます。南側ではなく、あえて西側に設置したので、夏でも午前中は涼しく、ここで過ごす時間が増えました。天気によって出し入れの調整ができる、日よけのオーニングも設けて良かったですね。もう一つ希望したのが、自宅にいながら仕事をスムーズにできるシーカヤックガレージ。シーカヤック関連の仕事をしているので、ガレージの横に仕事部屋を設けることで、効率よく仕事を進められるようになりました」。ステイホームの楽しみが広がる空間に、仕事への配慮もプラスして、Mさんファミリーの暮らしにピッタリの住まいが完成した。スペースが取れなかった子ども部屋は、広めのスキップフロアやロフトを設けて、ワクワクするような空間で代用。スキップフロアにはトイレを設けているので、勉強にも集中できる。浴室~洗面は一直線に配置。水廻りをまとめたことで、生活動線もスムーズだ。さらに、「以前の家の思い出を新しい家にも刻みたい」という想いに応え、建て替え前の柱を部屋のアクセントに再利用していた。
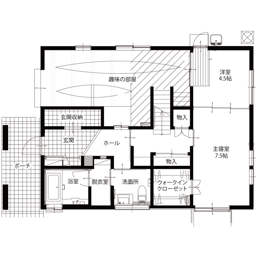
シーカヤック2艘を床に並べて置けるガレージは屋内と屋外の3か所から出入り可能。使用後、そのまま自宅に持ち込め、お手入れもスムーズに行える。ホールや洋室からも行き来できるので、自宅でも効率よく仕事を進められる。1階をご夫婦の寝室と作業スペースとして利用。玄関ホールから洗面所への動線が短く、帰宅後の手洗… 続きを読む
シーカヤック2艘を床に並べて置けるガレージは屋内と屋外の3か所から出入り可能。使用後、そのまま自宅に持ち込め、お手入れもスムーズに行える。ホールや洋室からも行き来できるので、自宅でも効率よく仕事を進められる。1階をご夫婦の寝室と作業スペースとして利用。玄関ホールから洗面所への動線が短く、帰宅後の手洗いも習慣づけられる。洗面所には天井埋め込み式の室内物干しがあるので、雨天や梅雨時期の洗濯が快適。広めにとった玄関収納には家族の靴や傘、アウトドア用品なども置け、住まいの第一印象を決める玄関を、スッキリ綺麗に保てる。
広々としたLDKを中心に、バルコニーや和室、スキップフロアへの階段を配置。キッチンは回遊自在のアイランド型で、出窓収納も確保しているので、開放感を高めつつ機能性も抜群だ。リビングの前には、プライベート性に配慮したオープンバルコニーを設置。6人掛けのテーブルを置いてもゆとりある広さを確保しているので、… 続きを読む
広々としたLDKを中心に、バルコニーや和室、スキップフロアへの階段を配置。キッチンは回遊自在のアイランド型で、出窓収納も確保しているので、開放感を高めつつ機能性も抜群だ。リビングの前には、プライベート性に配慮したオープンバルコニーを設置。6人掛けのテーブルを置いてもゆとりある広さを確保しているので、家族や友人を招いてバーベキューなど、自宅にいながらアウトドア気分を味わる。スキップフロアは簡易的なトイレと手洗い場を設けて書斎やパウダースペースとして活用。7畳の和室はゲストルームや寝室など、さまざまなシーンで重宝するひと部屋。
熊本地震で築80年の旧家が被害を受け、大規模半壊になったことをきっかけに家づくりを決意したMさん。7~8社の展示場を見学し、3社と具体的な話を進めていった。「数社と話をしたなか、新産住拓さんに惹かれていったのは営業担当者の人柄。すごく親身で、家づくりにかかる費用に対しても、価格をアピールではなく、必要なお金を分かりやすく明確に説明してくれました。そんな“正直な姿勢”に、この人にお願いしたら間違いないと思いましたね」。最初から何事も正直に教えてくれたことで、… 続きを読む
熊本地震で築80年の旧家が被害を受け、大規模半壊になったことをきっかけに家づくりを決意したMさん。7~8社の展示場を見学し、3社と具体的な話を進めていった。「数社と話をしたなか、新産住拓さんに惹かれていったのは営業担当者の人柄。すごく親身で、家づくりにかかる費用に対しても、価格をアピールではなく、必要なお金を分かりやすく明確に説明してくれました。そんな“正直な姿勢”に、この人にお願いしたら間違いないと思いましたね」。最初から何事も正直に教えてくれたことで、ギャップがなく、完成像もイメージしやすかったという。さらに、アフターサービスがしっかりしている点にも魅力を感じていた。「実は、30年前に同社で家を建てた知人がいるのですが、熊本地震の際はその知人が県外にいて、家の様子を見てきてくれないかと頼まれました。そこで、知人の家を見に行くと、そこには新産住拓のスタッフがいたのです。施主に頼まれた私よりも早く、住まいの様子を確認にきていたことに驚きましたね。同時に、この会社なら安心して家づくりを任せられると確信しました」。家が建つも前も、完成した後も、施主の暮らしを見守る誠実な姿勢に感動し、大切な家づくりのパートナーに同社を選んだという。
家づくりがスタートした当初は、隣の土地も購入して平屋を建築する予定でしたが、敷地面積49.7坪の土地へ計画が変更したため、2階建てやスキップフロアを採用することで、ご希望の詰まったお住まいをつくることに。M様は当初から、外で食事をするスペースやインナーガレージなど、叶えたい暮らしのイメージがたくさんあったので、できるだけご希望に添えるよう、何度もプランを練って検討を重ねました。できる限り理想をカタチにしたいとスタッフ全員で取り組みましたが、ご希望の中には、… 続きを読む
家づくりがスタートした当初は、隣の土地も購入して平屋を建築する予定でしたが、敷地面積49.7坪の土地へ計画が変更したため、2階建てやスキップフロアを採用することで、ご希望の詰まったお住まいをつくることに。M様は当初から、外で食事をするスペースやインナーガレージなど、叶えたい暮らしのイメージがたくさんあったので、できるだけご希望に添えるよう、何度もプランを練って検討を重ねました。できる限り理想をカタチにしたいとスタッフ全員で取り組みましたが、ご希望の中には、実現できないことも…。その時は正直に理由をお伝えし、M様の意思を尊重しながら進めていきました。結果的にご満足いただける住まいが完成して、本当に良かったと思います。ご入居後も家づくりに携わったスタッフと共にM様のご自宅でバーベキューをしたり、イベントの際はご協力いただいたり。完成=ゴールではなく、暮らし始めてからもお付き合いが続く信頼関係を築けたことが、とても嬉しいですね。
| 商品名 | - |
| 部材・設備 | - |
| 商品名 | - |
| 部材・設備 | - |
| 延床面積 | 152.52m2 (46.1坪) |
| 敷地面積 | 164.43m2 (49.7坪) |
| 工法 | 木造軸組 |
| 本体価格 | 3,000万円~3,499万円 |
| 竣工年月 | 2018年3月 |
| 店舗名 | 本社 |
| 住所 | 熊本県熊本市南区近見8-9-85 |
| 問い合わせ | |
| ホームページ | この会社のホームページへ |
※営業時間内の対応となります。
※お問い合わせの際は「SUUMO(スーモ)を見て」とお伝え下さい。
熊本県熊本市南区近見8-9-85
定休日:火曜・水曜・夏季休暇・年末年始休暇
一見普通の2階建てだが、実は、1階、中2階、2階、2つのロフトと5層構造になっているM邸。元気いっぱい子どもが家にいても楽しめる、アイデア満載&遊び心にあふれた住まいが完成した
6人掛けのテーブルセットを置ける広々としたオープンバルコニー。「空を見ながら、ゆっくり食事をしたり、バーベキューをしたいと思い描いていた夢が叶いました」とMさんも大満足・夫が仕事で使うシーカヤックは屋外にも立てかけて収納可能。シーカヤックの長さや幅を考慮して、屋外の壁に固定用の器具を装備している
夫が仕事で使うシーカヤックは屋外にも立てかけて収納可能。シーカヤックの長さや幅を考慮して、屋外の壁に固定用の器具を装備している・広々としたLDKからロフトや中2階へ。「子どもがぐるぐる回って楽しめる家にしたい」という希望通り、ジャングルジムのようなワクワク感のある空間に仕上がっている
広々としたLDKからロフトや中2階へ。「子どもがぐるぐる回って楽しめる家にしたい」という希望通り、ジャングルジムのようなワクワク感のある空間に仕上がっている
リビングからダイニング、キッチンと伸びやかな団らん空間が広がる。床には素足に心地よい桧の無垢材を採用。ロフトを設けるためキッチンのみ天井を下げているが、2面の開口部や出窓で明るさや開放感は十分感じられる
左右から行き来できるアイランド型キッチンで、家事動線がスムーズ。同社が得意な造作家具を採用して、前面・背面・サイドと適材適所に収納を確保しており、使い勝手のよさを実感している
キッチンの上部は独立したロフトになっており、収納や秘密基地など、使い方は自由自在。ロフトへの梯子を上ることも、子どもにとっては遊び感覚で楽しめる
窓から明るい光がはいるロフトスペース。あたたかみのある木の床や淡いブルーのクロスがナチュラルな雰囲気を演出する
造作カウンターや扉付の収納、出窓の下部収納など、機能的な収納を多数設けたキッチン。ダストボックス置き場も設けているので、余計なものがはみ出すことなく、整理整頓のしやすい仕様となっている
キッチン上部には好みの照明を取り付けられるスライド式のレールを設置。窓辺のコーディネートやライティングなど、家族好みの空間演出を楽しめる
シーカヤックガレージとつながる仕事部屋。行き来が楽で、作業をしながら必要なメモをとったり、資料を確認したり、仕事の効率も高まりそう
壁や天井にもシーカヤックを格納できるガレージ。ガレージ全体を立体的に有効活用する工夫で、余計なスペースを取ることなく、必要な広さを確保できる
入口が大きく、窓も2ヵ所に設けているので、搬入や作業がしやすいシーカヤックガレージ。シャッターを閉めれば、台風などの際にも大切な機材をしっかり守れる
窓辺の明るい空間に設けた中2階のスキップフロア。カウンターや手洗い場、トイレを設けているので、この場所だけで勉強や仕事、趣味の時間に没頭できる
中2階のスキップフロアには、PCデスクや学習デスク、家事スペースなど多目的に活用できるカウンターを造作。壁にはコンセントも設置されている
中2階にも洗面スペースを設けているので、2階から1階の洗面所まで下りなくても、手洗いやうがいができる。水はねなどに考慮して、手洗いボウルは大きめのものを採用
リビング前のオープンバルコニー。ワイドな窓からたっぷりの光と風を採りこみ、室内も爽やかな空気で満たされる
この日は家づくりに携わった新産住拓のスタッフとバルコニーで食事。開放感たっぷりの空間に、箸が進み、会話も弾む。オーナーと同社との関係は、家が完成した後も厚い信頼で結ばれているようだ
外構に添えた植物に興味を持つお子様。子どもの知的好奇心を刺激する住まいが、健やかな成長を見守り続けていくのだろう
木製のルーバーが家族のプライバシーを守り、デザイン性も高めてくれる外観。建物左側にはシーカヤックガレージがあり、屋外や屋内から直接シーカヤックを出し入れできる仕様となっている