タイル貼りのテラスを囲うようにリビングとダイニングを配置したY邸は、2面の開口部から光を採り込むことで、明るく開放的な室内に。将来的に子育てをすることを想定し、キッチンからリビングやダイニングが見渡せるようにしたほか、LDKとつながるタタミコーナーやダイニングの一角にスタディコーナーを配置している。共働きのYさん夫妻は、毎日の家事の負担を軽減するアイデアも間取りに反映。そのひとつが洗濯動線だ。ランドリールーム~洗面所~ウォークインクロゼットを一直線に配置す… 続きを読む
タイル貼りのテラスを囲うようにリビングとダイニングを配置したY邸は、2面の開口部から光を採り込むことで、明るく開放的な室内に。将来的に子育てをすることを想定し、キッチンからリビングやダイニングが見渡せるようにしたほか、LDKとつながるタタミコーナーやダイニングの一角にスタディコーナーを配置している。共働きのYさん夫妻は、毎日の家事の負担を軽減するアイデアも間取りに反映。そのひとつが洗濯動線だ。ランドリールーム~洗面所~ウォークインクロゼットを一直線に配置することで、洗ってからしまうまでの作業を一つのエリアで完結できるようになっている。「洗濯はとてもラクになりました。この洗濯動線を採用して本当に良かったです」と妻・Yさん。そのほかにも、「生活空間になるべくモノがでないようにしたい」という想いから、シューズクロークやキッチン脇の2ヶ所のパントリー、2階のウォークインクロゼットなど、収納を充実させて片付けやすい環境をカタチに。また、デザインにもこだわり、外壁タイルを室内にも採り入れてアクセントにしたり、間接照明を使ったりと、高級感のあるモダンな空間を演出した。「新居での暮らしは、快適そのもの。リビングでくつろぐ時間も好きですが、テラスでお酒を飲んだり、食事をしたりする時間も最高です。これからガーデニングにも挑戦したいですね」と話すように、Yさん夫妻は毎日の暮らしを心から楽しんでいる。
オープンなつくりのLDKを中心にした間取りと広々としたテラスが特徴的な1階。玄関ホールやリビングとダイニングは、窓からテラスの眺めを採り込み、視覚的にも開放感を味わえるほか、リビングとダイニングは窓を開ければテラスとつなげて使うこともできる。脱衣所とは独立させたランドリールームや、ランドリールームと… 続きを読む
オープンなつくりのLDKを中心にした間取りと広々としたテラスが特徴的な1階。玄関ホールやリビングとダイニングは、窓からテラスの眺めを採り込み、視覚的にも開放感を味わえるほか、リビングとダイニングは窓を開ければテラスとつなげて使うこともできる。脱衣所とは独立させたランドリールームや、ランドリールームと直線上に配置したウォークインクロゼットなど、洗濯動線もこだわりポイント。さらに、LDKを通り抜けてドアを隔てた先に、プライベートスペースとなる2階につながる階段を配置しているのも見どころだ
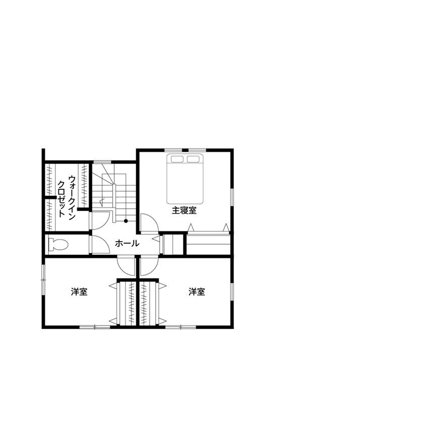
2階には主寝室をはじめ、将来家族が増えても対応できるようにと洋室を含めて計3部屋を用意。それぞれの部屋にクロゼットを設けたほか、ホールからつながる場所にウォークインクロゼットも設置した。1階のウォークインクロゼットには日常的に着る服をしまい、2階のウォークインクロゼットには季節外の服をしまうなど、用… 続きを読む
2階には主寝室をはじめ、将来家族が増えても対応できるようにと洋室を含めて計3部屋を用意。それぞれの部屋にクロゼットを設けたほか、ホールからつながる場所にウォークインクロゼットも設置した。1階のウォークインクロゼットには日常的に着る服をしまい、2階のウォークインクロゼットには季節外の服をしまうなど、用途によって使い分けることができて便利
「テラスでお酒を飲んだり、食事をしたりするのが夢でした」と話す夫・Yさんと「ガーデニングに興味があったので、庭のある戸建てが夢でした」という妻・Yさんは、マイホームを建てようと決意した。住宅展示場の見学と並行して、インターネットで住まいづくりについて情報収集した結果、見た目の美しさや優れたメンテナンス性から「外壁はタイルが良い」という結論に。「クレバリーホームさんは外壁タイルがオプションではなく、標準仕様だったのが魅力でした」。さらに、モデルハウスの見学を… 続きを読む
「テラスでお酒を飲んだり、食事をしたりするのが夢でした」と話す夫・Yさんと「ガーデニングに興味があったので、庭のある戸建てが夢でした」という妻・Yさんは、マイホームを建てようと決意した。住宅展示場の見学と並行して、インターネットで住まいづくりについて情報収集した結果、見た目の美しさや優れたメンテナンス性から「外壁はタイルが良い」という結論に。「クレバリーホームさんは外壁タイルがオプションではなく、標準仕様だったのが魅力でした」。さらに、モデルハウスの見学を通してスタッフの高い対応力を実感したことも、依頼の決め手につながったという。「担当営業の方が、しっかりと私たちの要望を聞いてくれ、その丁寧な対応がとても素晴らしいと感じました。後日、それらを踏まえて提案してもらった外観パースにも一目惚れしました」とYさん。「完成した家も、お洒落に仕上がり、家での時間をとても楽しんでいます。帰宅時にタイル貼りのマイホームを見るたび誇らしく思います」と、同社との家づくりに対して高い満足度を実感している。
「タイルの家」で検索してご来場いただいたY様ご夫妻。休日の過ごし方や毎日の家事など、新居での暮らしのイメージをしっかりと持たれていたので、一つひとつこだわりながらカタチにしていきました。私たちが目指している、ご家族の夢や希望を詰め込んだ「ひとクラス上の住まい」の通り、注文住宅ならではのこだわりが光る一邸になったと思います。
「タイルの家」で検索してご来場いただいたY様ご夫妻。休日の過ごし方や毎日の家事など、新居での暮らしのイメージをしっかりと持たれていたので、一つひとつこだわりながらカタチにしていきました。私たちが目指している、ご家族の夢や希望を詰め込んだ「ひとクラス上の住まい」の通り、注文住宅ならではのこだわりが光る一邸になったと思います。
| 商品名 | CXシリーズ |
| 部材・設備 | - |
| 商品名 | CXシリーズ |
| 部材・設備 | - |
| 延床面積 | 123.79m2 (37.4坪) |
| 敷地面積 | 215.15m2 (65.0坪) |
| 工法 | 木造軸組(プレミアム・ハイブリッド構法) |
| 本体価格 | 3,000万円~3,499万円 |
| 竣工年月 | 2023年6月 |
同社からの最初の提案で一目惚れしたという、ボックスを組み合わせたようなシルエットの外観。黒をベースに白と木目のタイルを貼り分けたほか、窓の形や配置にもこだわって表情豊かなデザインに
外観を個性的にした分、内観はモノトーンで統一。キッチンの背面にあしらった白い外壁タイルがさりげなくも上質に空間を引き立てる
テラスに面した開口部から陽射しがたっぷり注ぎ、明るいリビングを実現。窓を開け放てばテラスとつながり、さらに開放感を味わえる
Yさんの憧れをカタチにしたテラスは、リビングからもダイニングからも出入りできるようにした。休日はアウトドアリビングとして使い、ここで夫妻そろってお酒や食事を楽しんでいる
キッチンとダイニングテーブルを横並びに配置して、配膳や片付けがしやすい間取りに。折り下げ天井でつなげることで、ダイニングとキッチンの視覚的なつながりもつくりだしている
ダイニングの一角にカウンターを設置。テレワーク時の書斎スペースとして活用するほか、将来お子さまが生まれた時はスタディコーナーとして使うことを想定しているそう
リビングに隣接するタタミコーナーは、間接照明付きの折り下げ天井や縁なしのタタミを採り入れ、シックな和モダンテイストに仕上げた。食後にゴロリと横になったり、ゲストルームとして活用したりしている
階段下のスペースを活用した、キッチン横のパントリー。食品のストック用と使用頻度が低い調理家電など、用途によって使い分けられるように、横並びで2ヶ所に配置したのが特徴
キッチンの背面には飾り棚をあしらい、見せる収納を意識。花を飾ったり、お気に入りの食器や小物を置いたりと、キッチンをより心躍る空間に彩ってくれる
ランドリールームとつながる洗面所。夫婦が同時に使うこともできるよう、洗面化粧台のカウンターを延長し、ゆとりをもたせた設計に。メイクやお風呂上りのスキンケアスペースとしても重宝しているそう
ランドリールームは妻・Yさんの要望から実現。物干しバーやカウンターも設けて、洗う、干す、たたむが一ヶ所で済むように設計した。写真右手の扉は脱衣所につながっている
ランドリールームから直線でつながるウォークインクロゼット。ランドリールームに干して乾いた洗濯物をここにそのまましまうことができるので、洗濯動線がスムーズ
帰宅時に最初に目に入る玄関正面に外壁タイルをあしらって、お洒落なアクセントウォールに。間接照明と組み合わせることでタイルの陰影が浮かび上がり、高級感を演出している
玄関正面の壁には地窓を配置し、そこからタイル貼りのテラスが垣間見えるように設計。明るさを確保するだけでなく、視線が抜けることで、圧迫感や閉塞感のない空間をつくり出した
2WAY動線の玄関。メイン玄関と動線を分けた家族用玄関にシューズクロークを配置した。アーチ型の壁がゆるやかに空間をゾーニングしている
シューズクロークには、家族の靴をはじめ、アウトドアグッズなどさまざまなモノを収納。ハンガーパイプも用意してアウターなども掛けられるようにした
トイレもモノトーンで統一し、グレーのアクセントクロスと間接照明を組み合わせている。無駄を削ぎ落したシンプルなデザインがお洒落
2階の主寝室は、黒の折り下げ天井を採用し、ホテルライクに仕上げた。あえて照明も抑えることで、落ち着いてくつろげる雰囲気に。天井まで高さのあるクロゼットも用意