「人の目が気にならない場所に暮らしたい」と同社に土地探しから依頼したHさん。購入したのは道路から距離を置くことができる旗竿地。隣にも同社施工の注文住宅が建ち、どんな家が建てられるのかやご家族の暮らしぶりを知れたことも安心材料になったそう。「植栽豊かな庭を眺めながら生活したい」というHさんの希望を元に建築家が設計したのは、テラスを介して室内と外が大胆につながる間取り。建物を敷地の奥に後退させ、前面に広々としたロックガーデンをつくってテラスとつなげることで、リ… 続きを読む
「人の目が気にならない場所に暮らしたい」と同社に土地探しから依頼したHさん。購入したのは道路から距離を置くことができる旗竿地。隣にも同社施工の注文住宅が建ち、どんな家が建てられるのかやご家族の暮らしぶりを知れたことも安心材料になったそう。「植栽豊かな庭を眺めながら生活したい」というHさんの希望を元に建築家が設計したのは、テラスを介して室内と外が大胆につながる間取り。建物を敷地の奥に後退させ、前面に広々としたロックガーデンをつくってテラスとつなげることで、リビングの開口をオープンにしていても人の目を気にせずくつろげる家が完成した。「みんなが集まれる場所が沢山ある家にしたいという想いがあり、色々な場所に家族の居場所があるというイメージでプランを考えました。家で過ごす時間が長くなった時期だったこともあり、『外』を感じられる家づくりは大人にも子どもにも大切なんじゃないかと思ったんです。リビングにつながるテラスの軒は1.8mあるのですが、もっと長くしたいと伝えると建築家の先生が『これ以上長くすると日射取得率が下がってしまうのでこのくらいで十分ですよ』と教えて下さったんです。実際に生活してみて先生が仰っていた通りだと実感しましたね」と、プロのアドバイスのおかげで住み心地にも満足しているそうだ。
テラスをコの字型に囲い、室内と外の緩やかなつながりを大切にした間取り。アイランドキッチンを中心にリビングとダイニングをゾーニングし、家の中に沢山の居場所をつくりたいというHさんの想いを形にした。将来、1階だけで平屋スタイルの暮らしができるよう、主寝室は1階に設けた。
テラスをコの字型に囲い、室内と外の緩やかなつながりを大切にした間取り。アイランドキッチンを中心にリビングとダイニングをゾーニングし、家の中に沢山の居場所をつくりたいというHさんの想いを形にした。将来、1階だけで平屋スタイルの暮らしができるよう、主寝室は1階に設けた。
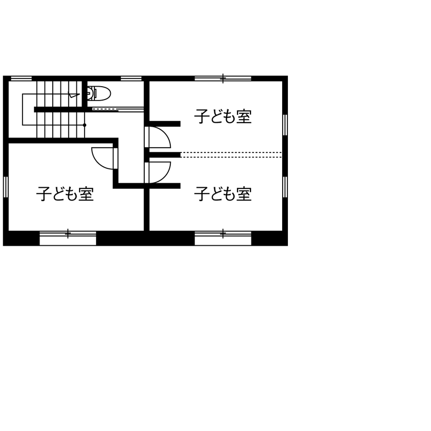
2階には子ども室をシンプルにレイアウト。3人のお子さんそれぞれに個室を用意するため、広い方のお部屋に仕切り壁を設置し、二部屋に分割できるようあらかじめ設計してある。お子さんが小さいうちは広いワンルームとして使えるフレキシブルさも◎
2階には子ども室をシンプルにレイアウト。3人のお子さんそれぞれに個室を用意するため、広い方のお部屋に仕切り壁を設置し、二部屋に分割できるようあらかじめ設計してある。お子さんが小さいうちは広いワンルームとして使えるフレキシブルさも◎
モデルハウスで惚れ込んだ世界観を踏襲した、上質で美しい空間。「シンプルだからこそ家具などインテリアにこだわれる… 続きを読む
モデルハウスで惚れ込んだ世界観を踏襲した、上質で美しい空間。「シンプルだからこそ家具などインテリアにこだわれるので、ああしようこうしようと日々考えながら過ごしています」と暮らしながら家を育てていくのを楽しんでいるそう
TVではなく庭に向かってソファをレイアウトしたのも、「庭を眺めながら暮らしたい」というHさんのこだわり。特別な… 続きを読む
TVではなく庭に向かってソファをレイアウトしたのも、「庭を眺めながら暮らしたい」というHさんのこだわり。特別なことをしなくとも、ソファに腰掛けて外の景色を眺めて過ごす日常が、何よりも豊かで贅沢な時間になる家だ
3人目の子どもが生まれるとわかり、周囲を気にせずのびのびと暮らせる家がほしいと家づくりを考え始めたHさん。ストークホームとの出会いは、当時公開されていたまちかどモデルハウス。玄関とシームレスにつながるタイルリビング、アイアン×木のスタイリッシュならせん階段、ロングベンチを設計した開放的な窓辺など、建築家のデザインによるシンプルで洗練された世界観が心に深く刺さったという。「家のデザインも間取りもライフスタイルも、こだわりが色々とあったのですが、ストークホーム… 続きを読む
3人目の子どもが生まれるとわかり、周囲を気にせずのびのびと暮らせる家がほしいと家づくりを考え始めたHさん。ストークホームとの出会いは、当時公開されていたまちかどモデルハウス。玄関とシームレスにつながるタイルリビング、アイアン×木のスタイリッシュならせん階段、ロングベンチを設計した開放的な窓辺など、建築家のデザインによるシンプルで洗練された世界観が心に深く刺さったという。「家のデザインも間取りもライフスタイルも、こだわりが色々とあったのですが、ストークホームさんなら自分の要望をすべて叶えてくれそうだと期待が持てたんです。家づくりに対する想いが人一倍強いこともあり悩むことも沢山ありましたが、おかげで楽しく前向きに打合せをすることができました」。叶えたいイメージが自分の中にハッキリあったからこそ、お金の面で心配が大きかったというHさんだが、都度見積もりを取ってくれたり、予算内に収まる代替案を提案してくれたりと、担当営業だった小倉さんのサポートがとても心強かったそう。「希望と予算を合わせていくのはとても大変な作業でしたが、スピーディーで親身な対応のおかげで不安がなくなり、こだわりに妥協せずコスト面でも希望通りの家づくりができました」。
どんな家に暮らしたいかのイメージが明確で、間取りから使いたい素材までご要望を色々とお聞かせくださったH様。理想を形にするためご自身でも深く勉強されていて、私たちもその熱意に動かされるとともに学ばせていただくことが沢山ありました。営業の私がもっとも意識していたのは、予算をオーバーしないための細かな調整。やりたいことがハッキリしている分、決まった予算の中でどうやりくりするかが最大の課題だったため、こまめに見積りを取りながら比較検討し、採用する建材や素材を吟味し… 続きを読む
どんな家に暮らしたいかのイメージが明確で、間取りから使いたい素材までご要望を色々とお聞かせくださったH様。理想を形にするためご自身でも深く勉強されていて、私たちもその熱意に動かされるとともに学ばせていただくことが沢山ありました。営業の私がもっとも意識していたのは、予算をオーバーしないための細かな調整。やりたいことがハッキリしている分、決まった予算の中でどうやりくりするかが最大の課題だったため、こまめに見積りを取りながら比較検討し、採用する建材や素材を吟味しました。たとえば、通常は屋根材として使われるガルバリウム鋼板を外壁材に選んだのもその工夫の一つです。レッドシダー材をアクセントにすることも絶対のご希望だったことから、外観にかかるコストを全体で調整するため、デザインは妥協せずコストを抑えられる方法を探してご提案。シンプルですっきりと美しく仕上がる『タテヒラ』というガルバリウム鋼板をおすすめしたところ、「これなら格好よく仕上がりそう」とご納得いただくことができて安心しました。建築家と協働し、間取りも何度もご提案するなどプランも練りに練った家づくりでしたが、スタッフ一同「H様の想いに何とか応えたい」という気持ちで取り組ませていただき、とてもいい経験をさせてもらったことに感謝しています。
| 商品名 | - |
| 部材・設備 | - |
| 商品名 | - |
| 部材・設備 | - |
| 延床面積 | 114.69m2 (34.6坪) |
| 敷地面積 | 393.38m2 (118.9坪) |
| 工法 | 木造軸組 |
| 本体価格 | 2,500万円~2,999万円 |
| 竣工年月 | 2022年5月 |
| 店舗名 | 六条Lab. |
| 住所 | 岐阜県岐阜市六条福寿町3-3 |
| 問い合わせ | |
| ホームページ | この会社のホームページへ |
※営業時間内の対応となります。
※お問い合わせの際は「SUUMO(スーモ)を見て」とお伝え下さい。
岐阜県岐阜市六条福寿町3-3
定休日:水曜日
道路から奥まった旗竿地の前面に庭を設け、建物を後退させることでプライベート性を高めたお住まい。庭&テラスとひと続きのリビングもカーテン不要で、人の目を気にせずくつろげる。植栽が育つことで風景が変化していくのも楽しみ
家の中に沢山の居場所をつくりたいというHさんの希望を元に、L字型のレイアウトを活かしながら、リビング・キッチン・ダイニングをゾーニング。庭やテラスにいる家族と互いに気配を感じ合える緩やかなつながりもポイントだ
屋外であり、室内の一部のようでもある曖昧さが心地いいテラスは、家と外と人をつなぐ「中間領域」。リビングに居る時も自然を身近に感じられて心穏やかに過ごせる。BBQを楽しむアウトドアリビングやお子さんのプール遊びにもテラスが大活躍
リビングとテラスの一体感を強調するため、フロア面の段差をなくしてシームレスにし、軒天と天井が連続して見えるよう設計。深く出した軒は長さ1.8m。夏は直射日光を遮り、冬は適量の日光を取り入れられるベストな長さを建築家が提案した
モデルハウスで惚れ込んだ世界観を踏襲した、上質で美しい空間。「シンプルだからこそ家具などインテリアにこだわれるので、ああしようこうしようと日々考えながら過ごしています」と暮らしながら家を育てていくのを楽しんでいるそう
外観にも沢山のこだわりがあったHさん。理想を叶えつつ予算はオーバーしないよう、屋根用のガルバリウム鋼板を外壁に使用することを同社が提案。アクセントのレッドシダー材は、コストと照らし合わせながら張り分ける面積を十分に吟味した
3人のお子さんが並んで靴を履けるよう考えられた広い土間の玄関スペース。上がり框が浮いて見えるデザインが抜け感をつくり、空間をスタイリッシュに演出する。玄関収納は壁付けのクロゼットスタイルとし、インテリアの一部として空間に調和させた
デザインコンクリート『モールテックス』で仕上げたアイランドキッチン。ラフな雰囲気がシンプルで格好いいデザインが好きなHさんの好みにぴったり。モールテックスで周囲を囲うため、キッチン本体は標準仕様の物を選んでコストを抑えた
ダイニングは開口を抑えて外に対して閉じることで、おこもり感のある落ち着いた雰囲気に。窓をコーナーに寄せることで空間の意匠性も高められた。全体の建築コストを調整するためにも、窓の大きさにメリハリをつけることが有効な手段だったそう
TVではなく庭に向かってソファをレイアウトしたのも、「庭を眺めながら暮らしたい」というHさんのこだわり。特別なことをしなくとも、ソファに腰掛けて外の景色を眺めて過ごす日常が、何よりも豊かで贅沢な時間になる家だ
陽が落ちた後、外から家がどう見えるのかにもこだわった家づくり。特に重視したのが照明計画。リビングのダウンライトを一般的な物よりも小さいサイズにすることで、陰影が美しく引き立つ洗練された空間を目指した
独特の赤みが美しいレッドシダー材とブラックのガルバリウム&建具のコントラストが映えるエントランス。正面に見えるのは外部収納の入口で、玄関への出入りには家の中が丸見えにならないクランク動線を採用している
自然光に包まれる陽だまりのような昼と、間接照明が彩るドラマティックな夜。異なる雰囲気を楽しめる表情豊かなお住まい。天井との間に余白が生まれないハイドアやハイサッシによって見た目がすっきりし、お部屋が広く見える効果も
ダイニングは掃き出し窓の代わりに腰窓を採用。Hさんがこだわって選んだ岐阜県産の和紙を使ったペンダント照明がちらりと覗き、アートな眺めを生み出している。腰窓は外の景色を印象的に切り取るピクチャーウインドウにもなる
理想の家の条件の一つだったモールテックス仕上げのキッチンもHさんが心躍る空間。理想のライフスタイルが明確にあったHさんはどんな生活をしたいかのイメージを落とし込んだ手描きの図面を用意するほど、家づくりへの強い思い入れを持っていた
壁掛けTVの背面を可動棚付きの収納とし、空間を有効活用するアイデアもさすがの建築家デザイン。写真や絵画を飾れるようリビング内にピクチャーレールを設置するなど、暮らしを楽しむ工夫もあちこちに散りばめられている
いずれは平屋スタイルの暮らしに移行することを想定し、主寝室を1階にレイアウト。プライバシーを守りつつ採光性を高められるよう、天井近くに横長のスリット窓を設置している。1階を暮らしの中心とし、2階は子ども室のみのコンパクトな造りとした
洗面は、造作の洗面台とサンワカンパニーの三面鏡を組み合わせたオリジナルデザイン。空間の統一性を意識し、キッチンのモールテックスと同様の質感をアクセントに取り入れている。窓から自然光が差し込み、朝の光も気持ちがいい
モルタル仕上げの土間玄関はまるで一つのお部屋のようにゆとりのある空間。家に入って最初に身を置くこの広々とした玄関がそのまま家全体の印象につながり、訪れたゲストも「この先にどんな空間が広がっているんだろう」と好奇心を刺激される
リビングを通らず玄関から主寝室にそのまま移動できるスマートな動線。LDKや水回りから独立した配置にすることで、落ち着いた睡眠環境を整えた。動線上には納戸のように使える多目的な収納スペースも設けてある