Space Labo 永冨

Space Labo 永冨

間取り図を見るだけで、豊かな毎日を想像できる。狭小地でも、愛着を育む家をつくる
お気に入りに追加する
愛知県名古屋市  Uさん
【愛知県×1000万円台×狭小】間口約4.5mの狭小地。開放的に暮らす工夫を凝らしたシンプルモダンの3階建て
Space Labo 永冨 【愛知県×1000万円台×狭小】間口約4.5mの狭小地。開放的に暮らす工夫を凝らしたシンプルモダンの3階建ての建築実例画像1
  • 本体価格
    1,500万円1,999万円
    44.5万円59.2万円/坪
  • 延床面積
    111.64m2 (33.7坪)
    敷地面積
    68.54m2 (20.7坪)
    家族構成
    夫婦
  • 竣工年月
    2010年8月
    工法
    木造軸組
この会社をもっと知りたくなったら
無料でお届け!まずはカタログ請求

施主Uさんのこだわり

「自由度は一番。社長を始めスタッフ皆さんが限界までイメージに近づけてくれました」

決め手は『自由度の高いプラン』だったと語るUさん。間口約4.5m、約20坪の敷地面積、さらに住宅密集地の中でも、最大限空間を活かしたプランを提案してくれたのが永冨だった。さまざまな制約があっても、Uさんの要望をしっかりと組み込んでくれたことが大きかったという。永冨社長曰く「既存の概念にとらわれてはいけない。間取りや広さに合わせて生活するのではなくどう暮らしたいのか、本来の住まいの在り方を根本から考え直すことが一番大事」だと。常に施主の視点で理想を追求しなが… 続きを読む

決め手は『自由度の高いプラン』だったと語るUさん。間口約4.5m、約20坪の敷地面積、さらに住宅密集地の中でも、最大限空間を活かしたプランを提案してくれたのが永冨だった。さまざまな制約があっても、Uさんの要望をしっかりと組み込んでくれたことが大きかったという。永冨社長曰く「既存の概念にとらわれてはいけない。間取りや広さに合わせて生活するのではなくどう暮らしたいのか、本来の住まいの在り方を根本から考え直すことが一番大事」だと。常に施主の視点で理想を追求しながら、予算内で家づくりをプロデュースしていくプロセスが、他とは違うことも新鮮だったようだ。狭小地でも開放的に暮らすため、リビングの天井高を2.6mに設定。食卓を囲むダイニングの壁面は、自然光を招くように透過性のあるポリカネード板を採用している。スケルトン階段で抜け感を出し、光と風の通り道ができるようにプランニング。「要望を優先すると予算オーバーになりがち。でも永冨さんは予算内でアイデアをどんどん出してくれて、間口が狭くても自由度の高い家づくりが叶いました。好みに合わせた造作家具や収納で、狭くても生活感を出さない工夫も随所にあってよかったですね」とUさん。狭小地とは思えない、明るさあふれる住まいが実現している。

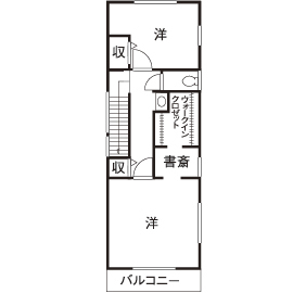
間取り図(3LDK)

1階
Space Labo 永冨 【愛知県×1000万円台×狭小】間口約4.5mの狭小地。開放的に暮らす工夫を凝らしたシンプルモダンの3階建ての間取り図(3LDK)1階
2階
Space Labo 永冨 【愛知県×1000万円台×狭小】間口約4.5mの狭小地。開放的に暮らす工夫を凝らしたシンプルモダンの3階建ての間取り図(3LDK)2階
3階
Space Labo 永冨 【愛知県×1000万円台×狭小】間口約4.5mの狭小地。開放的に暮らす工夫を凝らしたシンプルモダンの3階建ての間取り図(3LDK)3階
この会社をもっと知りたくなったら
無料でお届け!まずはカタログ請求

内外観ギャラリー

この会社をもっと知りたくなったら
無料でお届け!まずはカタログ請求

この会社の他の建築実例を見る

この建築実例が気になった方へおすすめ

この建築実例の詳細情報

この建築実例を建てた店舗情報

住所 愛知県名古屋市西区大野木4丁目26番地 Space Laboビル 4F
問い合わせ
052-502-3800
  • ※営業時間内の対応となります。

  • ※お問い合わせの際は「SUUMO(スーモ)を見て」とお伝え下さい。

ホームページ この会社のホームページへ

Space Labo 永冨のコンテンツ一覧

お問い合わせ

カタログをもらう
総合カタログ
Space Labo 永冨のカタログ(ゼロから、あなたと“創る” 「Space Labo Concept FILE」)
ゼロから、あなたと“創る” 「Space Labo Concept FILE」
問合コード:1322080001
お問い合わせ先
052-502-3800
  • ※営業時間内の対応となります。

  • ※お問い合わせの際は「SUUMO(スーモ)を見て」とお伝え下さい。

  • 愛知県名古屋市西区大野木4丁目26番地 Space Laboビル 4F

この会社のホームページへ

この会社が気になったら

カタログをもらう
総合カタログ
Space Labo 永冨のカタログ(ゼロから、あなたと“創る” 「Space Labo Concept FILE」)
ゼロから、あなたと“創る” 「Space Labo Concept FILE」
問合コード:1322080001

関連キーワード

この建築実例のその他の特徴
ページトップへ戻る