サンジョーホーム

サンジョーホーム

一宮近郊で土地探しから一緒に。理想にとことん応える家づくり
お気に入りに追加する
愛知県一宮市  Kさん
【愛知県一宮市/間取り図】オシャレなデザイン&住み心地の両立!素材を活かしたリゾートライクの2階建て実例
サンジョーホーム 【愛知県一宮市/間取り図】オシャレなデザイン&住み心地の両立!素材を活かしたリゾートライクの2階建て実例の建築実例画像1
  • 本体価格
    2,000万円2,499万円
    46.8万円58.4万円/坪
  • 延床面積
    141.53m2 (42.8坪)
    敷地面積
    173.11m2 (52.3坪)
    家族構成
    夫婦+子供1人
  • 竣工年月
    2017年7月
    工法
    木造軸組
この会社をもっと知りたくなったら
無料でお届け!まずはカタログ請求

施主Kさんのこだわり

「全ての部屋に妥協したくない」住み心地とデザイン性も両立!

ご主人はデザイン性、奥様は住み心地とそれぞれの住まいの要望が分かれていたKさん邸。子どもが産まれて部屋が手狭になり、自分たちの理想の暮らしを考え始めたときサンジョーホームと出会ったそう。希望していた土地に出会えてから、担当のコンシェルジュが夫婦ふたりの希望を一つずつ叶えていった。特にKさんがこだわったのは外観とリビングダイニング。見た目も居住性も妥協せず打合せをみっちり行ったそうだ。コンシェルジュもタイルなどの素材一つ一つのサンプルを取り寄せて説明してくれ… 続きを読む

ご主人はデザイン性、奥様は住み心地とそれぞれの住まいの要望が分かれていたKさん邸。子どもが産まれて部屋が手狭になり、自分たちの理想の暮らしを考え始めたときサンジョーホームと出会ったそう。希望していた土地に出会えてから、担当のコンシェルジュが夫婦ふたりの希望を一つずつ叶えていった。特にKさんがこだわったのは外観とリビングダイニング。見た目も居住性も妥協せず打合せをみっちり行ったそうだ。コンシェルジュもタイルなどの素材一つ一つのサンプルを取り寄せて説明してくれるなど、終始参考になるアドバイスを貰える親身な対応だったとか。Kさんと同社コンシェルジュの尽力の末、Kさん自身も納得のリゾート感あふれる住まいが実現した

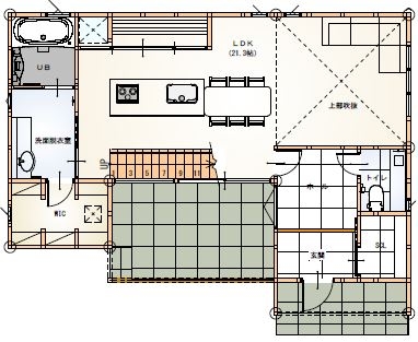
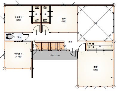
間取り図(4LDK)

1階
サンジョーホーム 【愛知県一宮市/間取り図】オシャレなデザイン&住み心地の両立!素材を活かしたリゾートライクの2階建て実例の間取り図(4LDK)1階
2階
サンジョーホーム 【愛知県一宮市/間取り図】オシャレなデザイン&住み心地の両立!素材を活かしたリゾートライクの2階建て実例の間取り図(4LDK)2階
この会社をもっと知りたくなったら
無料でお届け!まずはカタログ請求

内外観ギャラリー

この会社をもっと知りたくなったら
無料でお届け!まずはカタログ請求

この会社の他の建築実例を見る

この建築実例が気になった方へおすすめ

  • この建築実例のカタログをもらう

    サンジョーホームのカタログ画像
    総合カタログ
    どこまでも真摯な家創り~サンジョーホーム総合カタログ
    すべてにおいて「理想以上」を叶えるための、技術や素材、実例を紹介しております
  • この建築実例を検討時に見学したモデルハウス

    サンジョーホームのモデルハウス画像1
    サンジョーホームのモデルハウス画像2
    • 延床面積
      122.19m236.9坪)
    • 所在地
      愛知県一宮市三条字新1-2
    • 営業時間
      9:00~18:00(定休日:年末年始のお休みはお問い合わせください)
    • 建築家
    • 高性能
    • 家事ラク
    • 子育て

この建築実例の詳細情報

この建築実例を建てた店舗情報

店舗名 ショールーム
住所 愛知県一宮市三条字賀37-1
問い合わせ
0586-62-9988
  • ※営業時間内の対応となります。

  • ※お問い合わせの際は「SUUMO(スーモ)を見て」とお伝え下さい。

ホームページ この会社のホームページへ

サンジョーホームのコンテンツ一覧

お問い合わせ

カタログをもらう
総合カタログ
サンジョーホームのカタログ(どこまでも真摯な家創り~サンジョーホーム総合カタログ)
どこまでも真摯な家創り~サンジョーホーム総合カタログ
問合コード:0583090001
お問い合わせ先
0586-62-9988
  • ※営業時間内の対応となります。

  • ※お問い合わせの際は「SUUMO(スーモ)を見て」とお伝え下さい。

ショールーム
  • 愛知県一宮市三条字賀37-1

  • 定休日:-

この会社のホームページへ

この会社が気になったら

カタログをもらう
総合カタログ
サンジョーホームのカタログ(どこまでも真摯な家創り~サンジョーホーム総合カタログ)
どこまでも真摯な家創り~サンジョーホーム総合カタログ
問合コード:0583090001

関連キーワード

この建築実例のその他の特徴
ページトップへ戻る