アルファホーム

アルファホーム

キッチンと暮らす
お気に入りに追加する
愛知県高浜市  Mさん
【愛知県高浜市|オーダーキッチン】気がつけば、3人と3匹がキッチンに集まる、にぎやかな毎日
アルファホーム 【愛知県高浜市|オーダーキッチン】気がつけば、3人と3匹がキッチンに集まる、にぎやかな毎日の建築実例画像1
  • 本体価格
    -
  • 延床面積
    106.42m2 (32.1坪)
    敷地面積
    162.17m2 (49.0坪)
    家族構成
    -
  • 竣工年月
    2023年12月
    工法
    木造軸組
この会社をもっと知りたくなったら
無料でお届け!まずはカタログ請求

施主Mさんのこだわり

「生まれたばかりの子どもも、寒がりの猫たちも、みんな心地よい冬を過ごしています」

生まれたばかりのお子様との3人家族。プラス、猫が3匹。そんな3人と3匹が、楽しく快適に共生できる家づくりを目指していたMさん。Mさんに焦りはなかった。どうせ建てるならじっくりと、その分満足度の高い家を建てたいと考えていたのだ。出会ったのは「アルファホーム刈谷」。年間施工棟数を20棟に限定して、丁寧な家づくりを行っている住宅会社である。まだ20代と若いMさんは、外観や内装などのデザインにも深いこだわりを持っていた。その要望を丹念に聞き出し、トータルなバランス… 続きを読む

生まれたばかりのお子様との3人家族。プラス、猫が3匹。そんな3人と3匹が、楽しく快適に共生できる家づくりを目指していたMさん。Mさんに焦りはなかった。どうせ建てるならじっくりと、その分満足度の高い家を建てたいと考えていたのだ。出会ったのは「アルファホーム刈谷」。年間施工棟数を20棟に限定して、丁寧な家づくりを行っている住宅会社である。まだ20代と若いMさんは、外観や内装などのデザインにも深いこだわりを持っていた。その要望を丹念に聞き出し、トータルなバランスをとりながら、一つひとつカタチにしていく…設計とコーディネーター(ともに女性で、ネコ好き)との相性も良かったようだ。まず考え始めたのはキッチンのこと。オーダーキッチンの色はグレー。木調のデザインクロスが張られた天井には、間接照明も仕組まれている。ダイニングの壁には猫たちのためのキャットウォークも、しっかりと造作された。キッチンの隣りに、大容量の収納を提案してくれたことも嬉しかったそう。手間をかけずに、キッチンまわりがスッキリと片付くと、住みはじめてから改めて、その便利さを実感している。人にも猫にも快適な、住宅性能も体感。断熱効果の高い樹脂サッシを通して射し込んでくる、冬の日差しは暖かい。「2月でも、エアコンを入れたことがありません」とMさんは、笑いながら語ってくれた。

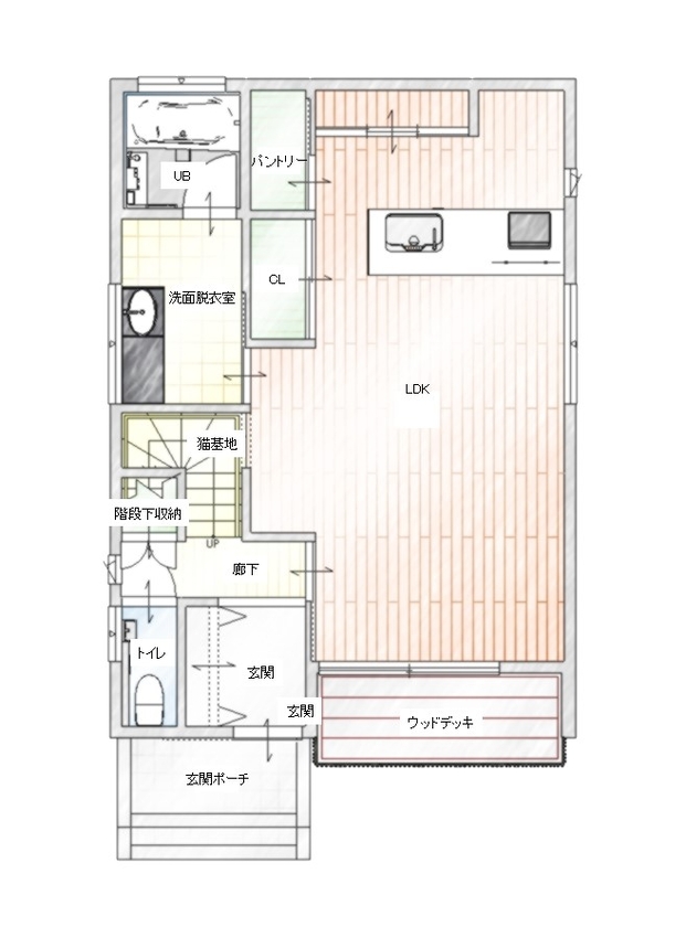
間取り図(4LDK)

1階
アルファホーム 【愛知県高浜市|オーダーキッチン】気がつけば、3人と3匹がキッチンに集まる、にぎやかな毎日の間取り図(4LDK)1階
2階
アルファホーム 【愛知県高浜市|オーダーキッチン】気がつけば、3人と3匹がキッチンに集まる、にぎやかな毎日の間取り図(4LDK)2階
この会社をもっと知りたくなったら
無料でお届け!まずはカタログ請求

内外観ギャラリー

この会社をもっと知りたくなったら
無料でお届け!まずはカタログ請求

この会社の他の建築実例を見る

この建築実例が気になった方へおすすめ

この建築実例の詳細情報

この建築実例を建てた店舗情報

店舗名 本社ショールーム
住所 愛知県刈谷市野田町馬池3-1 原田商事ビル1F
問い合わせ
0120-952-699
  • ※営業時間内の対応となります。

  • ※お問い合わせの際は「SUUMO(スーモ)を見て」とお伝え下さい。

アルファホームのコンテンツ一覧

お問い合わせ

カタログをもらう
施工実例集
アルファホームのカタログ(SELECTION HOUSE)
SELECTION HOUSE
問合コード:1907800001
お問い合わせ先
0120-952-699
  • ※営業時間内の対応となります。

  • ※お問い合わせの際は「SUUMO(スーモ)を見て」とお伝え下さい。

本社ショールーム
  • 愛知県刈谷市野田町馬池3-1 原田商事ビル1F

  • 定休日:毎週水曜日、GW、お盆、年末年始

この会社が気になったら

カタログをもらう
施工実例集
アルファホームのカタログ(SELECTION HOUSE)
SELECTION HOUSE
問合コード:1907800001

関連キーワード

この建築実例のその他の特徴
ベーシック  |  洋風モダン  |  洋風  |  おしゃれ  |  開放感  |  落ち着き
ページトップへ戻る