綿半林業

綿半林業

「サイエンスホーム」「cotton1/2」伝統的な真壁工法の木の家を現代の性能に進化
お気に入りに追加する
岐阜県  Hさん
【2050万円/37坪/和風】家族や仲間が集う和風旅館みたいなひのきの家
綿半林業 【2050万円/37坪/和風】家族や仲間が集う和風旅館みたいなひのきの家の建築実例画像1
  • 本体価格
    2,050万円
    55.6万円/坪
  • 延床面積
    122.00m2 (36.9坪)
    敷地面積
    411.53m2 (124.4坪)
    家族構成
    夫婦+子ども1人
  • 竣工年月
    2022年6月
    工法
    木造軸組(真壁づくり)
この会社をもっと知りたくなったら
無料でお届け!まずはカタログ請求

施主Hさんのこだわり

老舗旅館の写真を見ながらイメージを共有して希望を叶えた満足の家づくり

古民家風の旅館みたいな家をイメージして家づくりに臨んだHさん。外観はスタイリッシュさも取り入れつつ、内装は老舗旅館の写真を参考に、理想のイメージを固めていきました。暖簾をくぐった先に広がる大スペースは、和風旅館のロビーのよう。ゆとりのソファに一枚板のダイニング、随所にあしらった木格子など、和の情緒あふれる空間です。お酒を並べたカウンター収納のあるキッチンの前に、床の間が雅な畳コーナーを配置。「旅館の食事処をイメージした小上がりで、友人と酒宴をしたい」と笑顔… 続きを読む

古民家風の旅館みたいな家をイメージして家づくりに臨んだHさん。外観はスタイリッシュさも取り入れつつ、内装は老舗旅館の写真を参考に、理想のイメージを固めていきました。暖簾をくぐった先に広がる大スペースは、和風旅館のロビーのよう。ゆとりのソファに一枚板のダイニング、随所にあしらった木格子など、和の情緒あふれる空間です。お酒を並べたカウンター収納のあるキッチンの前に、床の間が雅な畳コーナーを配置。「旅館の食事処をイメージした小上がりで、友人と酒宴をしたい」と笑顔のHさん。炉ばた焼きで盛り上がれるよう、囲炉裏テーブルを置きました。他にもHさんのワークスペースとして、子どもの勉強コーナーとしてなど、用途が多彩な畳コーナーは、「調理しながら勉強する子どもが確認できるのもいいですね」と奥さん。障子を開くとウッドデッキがあり、BBQも楽しめます。キッチン背面という家事ラク動線の洗面、浴室もゆとりのサイズ感。2階は主寝室や子ども部屋など家族のプライベート空間とし、1階は仲間がいつでも集える空間になりました。「“いい家だね”と褒められることが多く、嬉しい」というHさん。「打ち合わせでは私たちの希望をたくさん聞き出してくれたのが良かったです」。奥さんも「住んでみると快適でおしゃれ。毎日の幸せ度があがりました」。

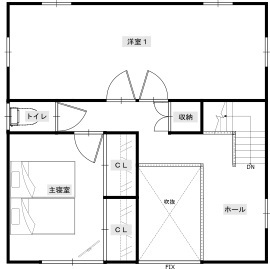
間取り図(3LDK)

1階
綿半林業 【2050万円/37坪/和風】家族や仲間が集う和風旅館みたいなひのきの家の間取り図(3LDK)1階
2階
綿半林業 【2050万円/37坪/和風】家族や仲間が集う和風旅館みたいなひのきの家の間取り図(3LDK)2階
この会社をもっと知りたくなったら
無料でお届け!まずはカタログ請求

内外観ギャラリー

この会社をもっと知りたくなったら
無料でお届け!まずはカタログ請求

この会社の他の建築実例を見る

この建築実例が気になった方へおすすめ

この建築実例の詳細情報

この建築実例を建てた店舗情報

店舗名 お客様係
住所 静岡県浜松市中央区萩丘3-1-10
問い合わせ
0120-025-152
  • ※営業時間内の対応となります。

  • ※お問い合わせの際は「SUUMO(スーモ)を見て」とお伝え下さい。

ホームページ この会社のホームページへ

綿半林業のコンテンツ一覧

お問い合わせ

カタログをもらう
カタログ一覧
※1社で請求できるカタログは3冊までです。

この会社が気になったら

カタログをもらう

関連キーワード

この建築実例のその他の特徴
ページトップへ戻る