【2000万円台/30.2坪/間取り図有】人が集まる開放的な土間リビング。確かな性能で大空間でも1年中快適に
-
本体価格
2,000万円~2,499万円
(66.2万円~82.8万円/坪)
-
-
施主Fさんのこだわり
「夫婦ともに阪神淡路大震災を経験したため、耐震性は外せない条件でした。また、間仕切りを極力減らした大空間や吹き抜け、大窓を希望しましたが、開放感と引き換えに寒さや暑さ、光熱費が心配だったため断熱性も重視。その点、アキュラホームさんは性能面で安心できたため、依頼しました」と依頼の理由を語るFさん。そんなFさんが目指したのは、縁側や土間で人と人がつながるような昔の日本家屋の要素を備え、それでいてシンプルなデザインの住まい。ポイントは玄関ドアを開けると目の前にコ…
続きを読む
「夫婦ともに阪神淡路大震災を経験したため、耐震性は外せない条件でした。また、間仕切りを極力減らした大空間や吹き抜け、大窓を希望しましたが、開放感と引き換えに寒さや暑さ、光熱費が心配だったため断熱性も重視。その点、アキュラホームさんは性能面で安心できたため、依頼しました」と依頼の理由を語るFさん。そんなFさんが目指したのは、縁側や土間で人と人がつながるような昔の日本家屋の要素を備え、それでいてシンプルなデザインの住まい。ポイントは玄関ドアを開けると目の前にコンクリートモルタルの土間が広がり、頭上の吹き抜けからは自然光がたっぷり降り注ぐリビングだ。土間リビングにしたことで、カフェのような空間を楽しんだり、お子さんのベビーカー置き場としたり、多目的に使うことができる遊び空間を実現している。パティシエールである夫人は、将来的にこの場所でショップを開いたり、お菓子教室を開くことも考えているそう。「真冬の朝はガスファンヒーターを使いますが、家が暖まってきたら1階のエアコン1台で十分。結露も見たことがありません。風通しがよく、夏も快適です。理想の土間を採用し、雨の日も家の中でのびのびと遊べる暮らしが気に入っています。この確かな性能があるからこそ、自由なデザインを叶えることができました」とFさん。
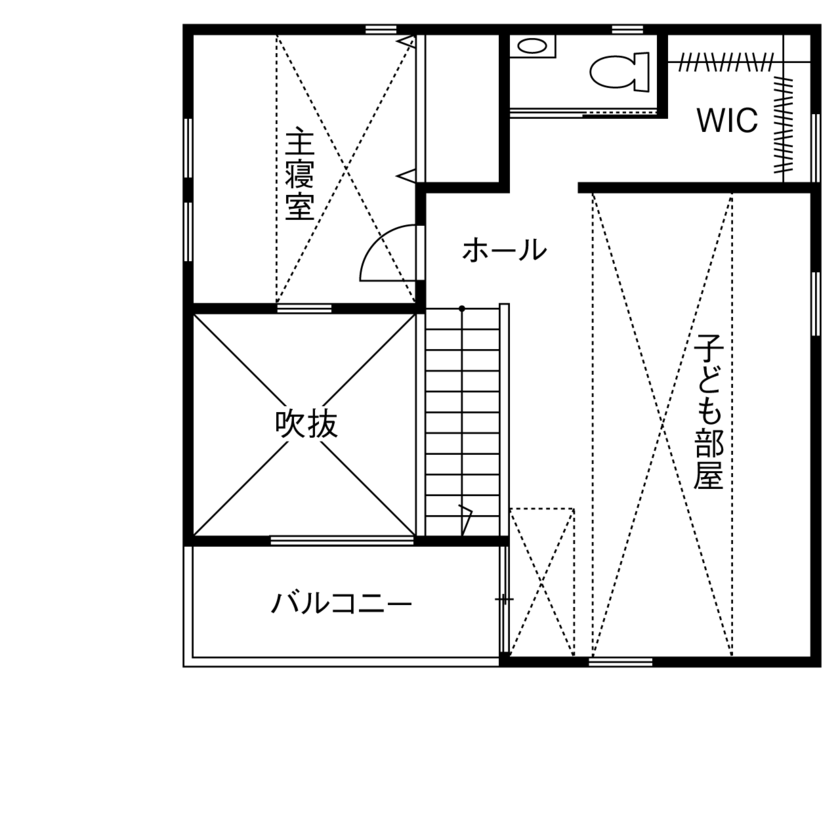
間取り図(3LDK)
内外観ギャラリー
-
土間リビングの中心に設けたスケルトン階段と吹き抜け。土間スペースが家の外と中を、吹き抜けが上下階を緩やかにつな…
続きを読む
土間リビングの中心に設けたスケルトン階段と吹き抜け。土間スペースが家の外と中を、吹き抜けが上下階を緩やかにつなぐ。家のどこにいても家族の気配が感じられる住まいが実現
-
2階ホールと子ども部屋はあえて仕切らず、お子さんがのびのび遊べるキッズスペースとして活用。防火基準に合うよう、…
続きを読む
2階ホールと子ども部屋はあえて仕切らず、お子さんがのびのび遊べるキッズスペースとして活用。防火基準に合うよう、木を薄くスライスしたシートを柱と梁に貼り付けた。こうした「ひと手間」が統一感ある仕上がりにつながっている
-
リビングを土間仕上げにすることで、お子さんの雨の日の遊び場になったり、室内ガーデニングを楽しんだり、過ごし方の…
続きを読む
リビングを土間仕上げにすることで、お子さんの雨の日の遊び場になったり、室内ガーデニングを楽しんだり、過ごし方の幅が広がったそう
-
ナチュラルテイストの家具で統一されたやさしい雰囲気のリビング。暮らしはじめて1年ほど過ぎ、無垢パイン材の床も一…
続きを読む
ナチュラルテイストの家具で統一されたやさしい雰囲気のリビング。暮らしはじめて1年ほど過ぎ、無垢パイン材の床も一層なめらかな足触りに。家族と一緒に家も成長していく
-
どこにいても家族の声が聞こえる開放的な吹き抜けが広がるリビング。抜けのあるスケルトン階段も取り入れることで、明…
続きを読む
どこにいても家族の声が聞こえる開放的な吹き抜けが広がるリビング。抜けのあるスケルトン階段も取り入れることで、明るい陽光が上からたっぷり降り注ぐ
-
家族の団らんを育む、たっぷり12畳の土間リビング。「カフェみたいにくつろげる空間が理想でした」と夫人
家族の団らんを育む、たっぷり12畳の土間リビング。「カフェみたいにくつろげる空間が理想でした」と夫人
-
洗面化粧台は同社の造作だ。横長の室内窓から吹き抜け先の大窓まで視界が抜けていく。空を見ながら身支度するのがFさ…
続きを読む
洗面化粧台は同社の造作だ。横長の室内窓から吹き抜け先の大窓まで視界が抜けていく。空を見ながら身支度するのがFさんの日常
-
土間リビングに隣接する和室。客間にもぴったりだ
土間リビングに隣接する和室。客間にもぴったりだ
-
白でまとめたシンプルな外観デザイン。家に入るまでの道のりが楽しくなるような緩やかなカーブを描くアプローチもポイ…
続きを読む
白でまとめたシンプルな外観デザイン。家に入るまでの道のりが楽しくなるような緩やかなカーブを描くアプローチもポイント
この会社の他の建築実例を見る
-
-
-
【無料相談】家づくりの不安を解消!はじめての家づくり相談会
-
キャンペーン情報
-
設計・資金相談会
-
新商品情報
-
モデルハウス見学会
-
土地相談会
この建築実例の詳細情報
|
商品名
|
-
|
|
部材・設備
|
-
|
|
延床面積
|
99.88m2
(30.2坪)
|
|
敷地面積
|
208.52m2
(63.0坪)
|
|
工法
|
木造軸組
|
|
本体価格
|
2,000万円~2,499万円
|
|
竣工年月
|
2017年2月
|
アキュラホーム(AQ Group)のコンテンツ一覧