"20251206220106:H:0" "20251206220106:H:0" "20251206220106:H:0"
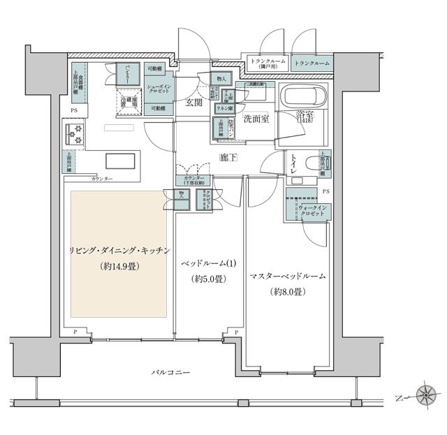
リビオ三田レジデンス (間取り図 B)

リビオ三田レジデンス (間取り図 B)

価格未定
1LDK~3LDK | 40.12m2~118.87m2 | 都営三田線「三田」歩5分
SUUMO(スーモ)新築マンションのリビオ三田レジデンスの間取り(B)詳細情報です。
B
  • 所在地 東京都港区芝5丁目2番93(地番)
  • 交通 都営三田線「三田」歩5分
間取りの概要/特徴
価格

未定

間取り
  • 2LDK +WIC+SIC
専有面積
  • 65.34m2
バルコニーまたは
テラス面積
  • 8.12m2
その他
  • サービスバルコニー面積:1.36m2、トランクルーム面積:0.89m2
特徴
キッチン
  • ディスポーザー
  • 浄水器or活水器
設備・構造
  • 光ファイバー対応
  • 床暖房

WIC=ウォークインクロゼット
SIC=シューズインクロゼット
MOA(R)=モアトリエR

【この物件広告についての注釈】

※価格は物件の代金総額を表示しています。消費税が課税される場合は税込み価格を表示しており、10000円未満を切り上げている場合があります。

※住戸別の価格(帯)表記については、そのタイプに含まれるすべての住戸の情報を掲載していない場合があります。住戸タイプと各住戸の価格帯表記について、単位(1000万円・100万円・10万円)が異なる場合があります。

※「モデルルーム」とは、間取りや仕様・設備などを知ることができる施設全般を指し、それらの一部のみ展示している「サンプルルーム」や「ギャラリー」、「インフォメーションセンター」なども含みます。

※完成予想図はいずれも外構、植栽、外観等実際のものとは多少異なることがあります。

※CG合成の画像の場合、実際とは多少異なる場合があります。

※完成後1年以上を経過した未入居物件が掲載される場合があります。ご了承ください。

※掲載の省エネ性能ラベル内の物件・住棟・号室名称については最新のものに変更されている場合があります。

※概要のエネルギー消費性能、断熱性能、目安光熱費については、表示している省エネ性能ラベルによってデータの内容が異なります。販売戸数が複数の住棟ラベル、または住戸ラベルの場合は、原則建築確認が下りている物件全体の最小~最大を、販売戸数1戸の住戸ラベルの場合はその住戸のデータを表示しています。

リビオ三田レジデンス 物件概要

所在地
東京都港区芝5丁目2番93(地番)
地図を見る
交通 都営三田線「三田」歩5分 総戸数 50戸(広告募集対象外住戸4戸を含む)
間取り 1LDK~3LDK 専有面積 40.12m2~118.87m2
価格
未定
引渡可能時期 2027年7月上旬予定
販売スケジュール 2026年3月中旬より販売開始予定

情報更新日:2025/12/3

お問い合わせ先

日鉄興和不動産 赤坂サロン

0120-660-092

お問合せの際は『SUUMO(スーモ)を見て』とお伝えいただくとスムーズです。

営業時間:10:00~17:30

定休日:火・水・木曜日(祝日除く)

【67732748】リビオ三田レジデンス
他の物件も見てみる!

あなたにオススメの物件

PR

条件を変更して物件を探す

ページトップへ戻る
簡単!約2分で完了
以前にもチェックした物件です 簡単!約2分で完了 まずは気軽に資料請求をしてみよう!