"20251205213725:H:0" "20251205213725:H:0" "20251205213725:H:0"
クレヴィア和光 (取材レポート)

クレヴィア和光 (取材レポート)

7090万円~7990万円  (先着順)
SUUMO(スーモ)新築マンションのクレヴィア和光の取材レポート情報です。

新しい家族の舞台にふさわしい街に、全50邸のレジデンスが誕生!

1
【Location】和光市の暮らしの魅力をデータから紐解く
都心に近接しながら、利便性と住み心地のバランスが心地よく整う和光市とは?
  • クレヴィア和光の取材レポート画像
    交通路線図
    • クレヴィア和光の取材レポート画像
      2020年実施 国勢調査(和光市)※総務省データより抜粋
    • クレヴィア和光の取材レポート画像
      出典:和光市ホームページ/都市計画より
堅固な地盤に建つ立地であること

<クレヴィア和光>は、紀元前から形成される武蔵野台地の一角の固い地盤の標高約32mの地に誕生しました。※高低差概念図/出典:国土地理院ホームぺージ電子国土Web

【アクセス利便性】
東武東上線、東京メトロ有楽町線・副都心線の3路線が利用可能な和光市駅。
東京メトロ2路線は始発駅となっており、通勤ラッシュの時間帯も座って快適に移動することが可能。直通約15分「池袋」をはじめ、都心の主要エリアがスムーズにつながっていきます。

【増え続ける人口と世帯、選ばれる和光市】
2020年実施の国勢調査では、人口が83,989人、世帯数が39,889世帯となった和光市。人口は、ここ20年で約119%、世帯数別では約133%の成長(国勢調査/2010年~2020年の成長率)を遂げており、和光市が選ばれている姿が見てとれます。

【駅直結の高層複合施設が2029年に竣工予定】※1
駅の北口では、和光市のスーパーシティ構想とも連動した先進的なまちづくりが進行中。 住宅や商業、公共空間が融合する複合ビルの整備に加え、歩行者広場や駅前公園などが新設される予定です。

【武蔵野台地に建つ立地】
<クレヴィア和光>は、紀元前から形成される武蔵野台地の一角の固い地盤の標高約32mの地に誕生。堅固で安定した地盤に佇むレジデンスです。

充実の徒歩10分圏を中心に、暮らしを満たすモノ・コトが間近に揃う舞台。
  • クレヴィア和光の取材レポート画像
    徒歩10分圏概念図
    • クレヴィア和光の取材レポート画像
      the market Place 和光(約550m/徒歩7分)
    • クレヴィア和光の取材レポート画像
      イトーヨーカドー 和光店(約550m/徒歩7分)
駅直結の『EQUiA PREMIE 和光』も便利!

厳選された食材やスイーツ、雑貨やカフェなどに出逢える駅直結の商業施設。日々のお買い物から休日のちょっとしたひと息まで、多彩な店舗が充実。
(約840m/徒歩11分)

<クレヴィア和光>であなたが手にするもの。それは、毎日のお買い物や日常のルーティンを住まいの徒歩10分圏で完結するライフスタイルです。
スーパーやコンビニ、学校や公園、公共施設や病院(※2)。そのすべてを間近にするロケーションが、家族の未来を優しく満たしてくれます。

『the market Place 和光』は、生鮮食品や日用品が揃うスーパーマーケットのヤオコーを中心に、無印良品をはじめとした多彩なテナントが集積。日々のお買い物からシミュレーションゴルフまで、多彩なニーズに応える複合施設です。
また、食品、衣料品、生活雑貨など多彩な品揃えが魅力の大型店『イトーヨーカドー 和光店』は、買い物の途中で立ち寄れるフードコートやサービスも充実しており、日常の幅広いお買い物に便利な商業施設が身近に寄り添います。
さらに近隣には、『ウエルシア和光丸山台店』(約130m/徒歩2分)、『まいばすけっと 和光市駅南店』(約660m/徒歩9分)、『西友和光市駅前店』(約780m/徒歩10分)など、さまざまな用途別にお買い物環境が整うロケーションです。

2
【Interview】「和光市で暮らし、働き、輝くヒト」にインタビューしました
夫の転勤先からリターンで和光市に移住したワーキングママ
  • クレヴィア和光の取材レポート画像
    時短アドバイザー 佐藤 智実さん「和光樹林公園」にて(約1,390m/徒歩18分)
    • クレヴィア和光の取材レポート画像
      ツーテンジャック[カフェ]にて(約580m/徒歩8分)
    • クレヴィア和光の取材レポート画像
      和光農産物直売センター(ふれあい畑)[農産物直売所]にて(約1,190m/徒歩15分)
佐藤さんご家族

娘さんも「ここに来ると癒される!」と言う、家族みんなの憩いの場「和光樹林公園」
(約1,390m/徒歩18分)※2025年6月取材

時短アドバイザーの佐藤智実さんは、娘二人と夫の四人家族。夫の転勤に伴い、金沢で暮らした後、2020年、和光市に移住した。

和光市を選んだポイントの一つは「交通アクセスの良さ」。「夫の通勤を考え、電車は急行停車、始発駅が必須条件でした。多路線乗り入れで都内や横浜、川越など、どこに行くにも便利。車も高速道路のI.C.(※3)も近いので選択肢(自由度)が広がります」。
次に「生活環境」。「私たち家族の憩いの場となっているのが『和光樹林公園』です。ランニングや散歩、バーベキューを楽しみ、娘たちはスポーツで体育館をよく利用しています」。
また、東京都の県境ながら農地が残っているところも「ほっこりする」と佐藤さん。
「大型スーパーも増えましたが、農家さんの野菜が並ぶ『和光農産物直売センター』もおすすめ。スーパーで入手しづらい野菜があったり、生花もリーズナブル。
和光市は駅周辺の都市機能と緑豊かな自然環境のバランスが良く、暮らしやすい。程よいゆったり感があるからか、住んでいる方の心にも余裕があるように感じますね」。

一人でよく訪れるのは一軒家カフェ『ツーテンジャック』。「音楽を聴き、ハーブティーを飲みながら、読書や仕事の整理をしていますが、短い時間でもリラックスできます。時短術で無駄をなくし、一人の時間、夫との時間、子どもとの時間を大切にしています。和光市はゆとりが叶う、住みやすい街だと思います」。

南フランスで修行し、郷里、和光市でスイーツ店を企業
  • クレヴィア和光の取材レポート画像
    パパ ピニョル オーナー 安田 栄子さん 店内にて(約1,000m/徒歩13分)
    • クレヴィア和光の取材レポート画像
      「ワッカ」を詰め合わせた『宝石ギフト』
    • クレヴィア和光の取材レポート画像
      安田さんオリジナルのイラストが描かれた「パパ ピニョル」店内
パパ ピニョル[スイーツ]

安田さんが描かれた店内、オリジナルの焼き菓子、パッケージも含め、夢のような空間が広がります!
(約1,000m/徒歩13分)※2025年6月取材

日本初のアーモンド菓子店『パパ ピニョル』のオーナー、安田栄子さんは和光市出身。
開業のきっかけは、南仏モンペリエで修行中に出会った伝統菓子『クッサンドリヨン』。「日本ではまだ知られておらず、ストーリーも素敵なので、日本に伝えたいと思ったのです」。
店内にはオリジナルの焼き菓子「ワッカ」をはじめ、素材にこだわったアーモンドを使った焼き菓子が並び、店内やパッケージ、ロゴに自身で描いたイラストがデザインされている。「見て、さわって、香って、食べて、感じて。ワクワク、心も体もよろこぶ幸せのお菓子を作り続けたい」と話す。

和光市に出店した一番の理由は、街の成長に期待しているから。「東武東上線や東京メトロの急行停車駅で都心にも近く、便利。その一方で自然も多く残っており、農家や直売所もあって散策するのが楽しいです。また、当店も出店した『和光市民まつり』など、子どもから大人まで参加できる祭りやイベントも多くあります」。

安田さんは元々パン職人でもあり、近隣の方々のブランチに焼き立てのパンを日常的に召し上がっていただける週末限定の『GO WELL BAGEL』というベーグル専門店をスタート。地元愛に溢れた取り組みは地域の活性化にも繋がっている。
「スーパーや駅ナカ施設などが続々とオープンするなど、ここ数年でとても前向きな変化を感じています。新しくお住まいになる方たちと街を楽しみ、盛り上げていきたいです!」

3
【Planning】全邸南東・南西向き3LDK。60m2台~80m2台の多彩なバリエーション
低層住宅街を望む、ルーフバルコニーのある3LDK角住戸プラン
【Kr type】3LDK+2WIC+N(納戸)
□専有面積:80.95m2□バルコニー面積:17.22m2□ルーフバルコニー面積:27.22m2
クレヴィア和光の取材レポート画像
【Kr type】ルーフバルコニー7階相当からの眺め※2024年11月撮影
プランニング例:【Kr type】

【Kr type】は、広々としたルーフバルコニーのある3LDK角住戸プラン。低層住宅が中心の立地からは、澄み切った青空が広がる眺望をお楽しみいただけます。

角住戸ならではの開放感あふれる2面採光を実現したリビング・ダイニングには、アイランドキッチンを採用。そのアイランドキッチンを中心に、浴室・洗面室、ルーフバルコニーまでがつながる快適な家事動線を確保している住空間設計にしているところも【Kr type】の大きな特徴です。
さらに、2つのウォークインクロゼットや納戸など、機能的な収納スペースを各所に設置し、お部屋をスタイリッシュにスッキリと見せる設計としました。

【Kr type】は、プライベートな空間を確保しやすい角住戸で、豊かな眺望と共に過ごす時間を楽しみたい方に向けたプランです。



L字型の縁側風テラスで過ごす上質な日常を
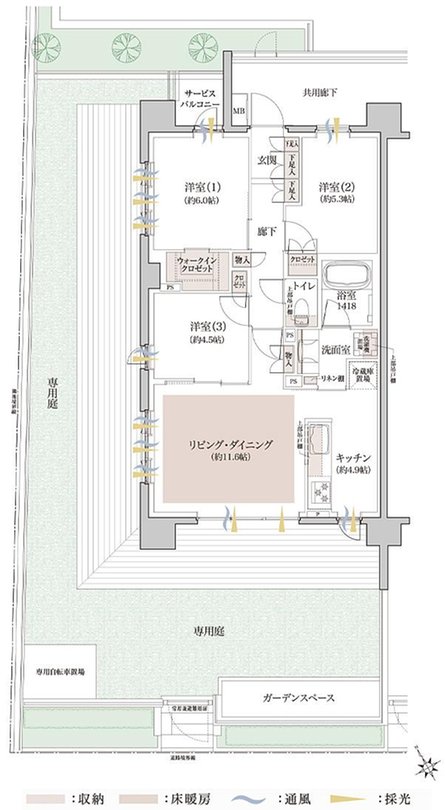
【Hg type】3LDK+ WIC
□専有面積:71.28m2□専用庭面積:96.37m2
クレヴィア和光の取材レポート画像
【Hg type】専用庭完成予想CG
プランニング例:【Hg type】

【Hg type】は、L字型の縁側風テラスとガーデニングスペースのある専用庭に囲まれた3LDKプラン。
専用庭は家庭菜園、お子さまの遊び場としても最適なスペースとして使用できます。

開放感あふれる横型のLDKは、引き戸を開放すれば洋室(3)と一体の空間となり、16.1畳ものスペースを確保。
小さなお子さまが居るファミリーであれば、洋室(3)をキッチンからもお子さまの様子を確認できるキッズルームとしても機能します。

また、キッチンを中心に、浴室・洗面室、さらにはテラスまでがつながる快適な家事動線設計とし、ウォークインクロゼットや物入れなど、機能的な収納スペースを各所に設置している点も注目のポイントです。

【Hg type】は“おうち時間”を謳歌したいファミリーにぴったりのプランと言えます。

※1:和光市駅北口地区第一種市街地再開発事業。2029年度完成予定。現在工事中。完成予定時期、内容については変更になる場合がございます。
※2:EQUiA PREMIE 和光 (約840m/徒歩11分)、the market Place 和光 (約550m/徒歩7分)、イトーヨーカドー 和光店 (約550m/徒歩7分)、西友和光市駅前店(約780m/徒歩10分)、まいばすけっと 和光市駅南店(約660m/徒歩9分)、ウエルシア和光丸山台店(約130m/徒歩2分)、ベルク 和光西大和店(約1,080m/徒歩14分)、いなげや和光新倉店(約1,110m/徒歩14分)、サミットストア シーアイハイツ和光店(約960m/徒歩12分)、ファミリーマート 和光中央店(約340m/徒歩5分)、中央ひなた保育園(約360m/徒歩5分)、あそびのてんさい和光保育園(約450m/徒歩6分)、あすの木保育園(約550m/徒歩7分)、和光エンゼル保育室(約620m/徒歩8分)、ひろさわ保育園(約880m/徒歩11分)、新倉幼稚園(約1020m/徒歩13分)、市立第三小学校(約440m/徒歩6分)、市立第二中学校(約830m/徒歩11分)、緑の公園(約270m/徒歩4分)、あさかわ公園(約450m/徒歩6分)、せせらぎ公園(約530m/徒歩7分)、中央公民館(約480m/徒歩6分)、和光市図書館(約950m/徒歩12分)、和光市役所(約1,220m/徒歩16分)、市民文化センター「サンアゼリア」(約1,010m/徒歩13分)、埼玉病院(約1,160m/徒歩15分)、和光脳神経外科・内科(約280m/徒歩4分)、和光クリニック(約720m/徒歩9分)、田中医院(約740m/徒歩10分)
※3:東京外環自動車道/和光I.C.(約890m)

【この物件広告についての注釈】

※価格は物件の代金総額を表示しています。消費税が課税される場合は税込み価格を表示しており、10000円未満を切り上げている場合があります。

※住戸別の価格(帯)表記については、そのタイプに含まれるすべての住戸の情報を掲載していない場合があります。住戸タイプと各住戸の価格帯表記について、単位(1000万円・100万円・10万円)が異なる場合があります。

※「モデルルーム」とは、間取りや仕様・設備などを知ることができる施設全般を指し、それらの一部のみ展示している「サンプルルーム」や「ギャラリー」、「インフォメーションセンター」なども含みます。

※完成予想図はいずれも外構、植栽、外観等実際のものとは多少異なることがあります。

※CG合成の画像の場合、実際とは多少異なる場合があります。

※完成後1年以上を経過した未入居物件が掲載される場合があります。ご了承ください。

※掲載の省エネ性能ラベル内の物件・住棟・号室名称については最新のものに変更されている場合があります。

※概要のエネルギー消費性能、断熱性能、目安光熱費については、表示している省エネ性能ラベルによってデータの内容が異なります。販売戸数が複数の住棟ラベル、または住戸ラベルの場合は、原則建築確認が下りている物件全体の最小~最大を、販売戸数1戸の住戸ラベルの場合はその住戸のデータを表示しています。

クレヴィア和光 物件概要 先着順

所在地
埼玉県和光市中央1-1811-1他(地番)
地図を見る
交通 東武東上線「和光市」歩11分 総戸数 50戸
間取り 3LDK 専有面積 63.2m2~70.03m2
価格
7090万円~7990万円
引渡可能時期 2027年1月下旬予定

情報更新日:2025/12/5

お問い合わせ先

ギャラリークレヴィア有楽町イトシア

0120-852-878 無料

お問合せの際は『SUUMO(スーモ)を見て』とお伝えいただくとスムーズです。

営業時間:平日11:00AM~7:00PM、土日祝10:00AM~6:00PM

定休日:水・木曜日・第2火曜日(祝日除く)【冬季休業のお知らせ】誠に勝手ながら、2025年12月24日(水)~2026年1月8日(木)まで冬季休業とさせていただきます。なお、2026年1月9日(金)より通常営業となります。

※携帯電話・PHSからもご利用いただけます。

【67733046】クレヴィア和光
他の物件も見てみる!

あなたにオススメの物件

PR

条件を変更して物件を探す

ページトップへ戻る
簡単!約2分で完了
以前にもチェックした物件です 簡単!約2分で完了 まずは気軽に資料請求をしてみよう!