"20251205214729:H:0" "20251205214729:H:0" "20251205214729:H:0"
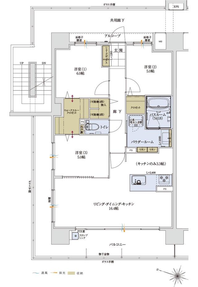
アルファステイツ野芥駅II (間取り図 A)

アルファステイツ野芥駅II (間取り図 A)

3990万円~6130万円  (第2期1次)
SUUMO(スーモ)新築マンションのアルファステイツ野芥駅IIの間取り(A)詳細情報です。
A
  • 所在地 福岡県福岡市早良区干隈3丁目295-1(地番)
  • 交通 地下鉄七隈線「野芥」歩10分
間取りの概要/特徴
価格

5410万円・5570万円(第2期1次)

間取り
  • 3LDK+ウォークスルークロゼット
専有面積
  • 75.66m2
バルコニーまたは
テラス面積
  • 22.06m2
その他
  • アルコーブ面積/3.21m2
特徴
立地・配置
  • 角部屋
設備・構造
  • 光ファイバー対応
  • 角住戸

【この物件広告についての注釈】

※価格は物件の代金総額を表示しています。消費税が課税される場合は税込み価格を表示しており、10000円未満を切り上げている場合があります。

※住戸別の価格(帯)表記については、そのタイプに含まれるすべての住戸の情報を掲載していない場合があります。住戸タイプと各住戸の価格帯表記について、単位(1000万円・100万円・10万円)が異なる場合があります。

※「モデルルーム」とは、間取りや仕様・設備などを知ることができる施設全般を指し、それらの一部のみ展示している「サンプルルーム」や「ギャラリー」、「インフォメーションセンター」なども含みます。

※完成予想図はいずれも外構、植栽、外観等実際のものとは多少異なることがあります。

※CG合成の画像の場合、実際とは多少異なる場合があります。

※完成後1年以上を経過した未入居物件が掲載される場合があります。ご了承ください。

※掲載の省エネ性能ラベル内の物件・住棟・号室名称については最新のものに変更されている場合があります。

※概要のエネルギー消費性能、断熱性能、目安光熱費については、表示している省エネ性能ラベルによってデータの内容が異なります。販売戸数が複数の住棟ラベル、または住戸ラベルの場合は、原則建築確認が下りている物件全体の最小~最大を、販売戸数1戸の住戸ラベルの場合はその住戸のデータを表示しています。

アルファステイツ野芥駅II 物件概要 第2期1次

所在地
福岡県福岡市早良区干隈3丁目295-1(地番)
地図を見る
交通 地下鉄七隈線「野芥」歩10分 総戸数 53戸(管理事務室・防災倉庫を除く)
間取り 2LDK~4LDK 専有面積 59m2~84.53m2
価格
3990万円~6130万円
引渡可能時期 2027年6月下旬予定

情報更新日:2025/12/4

お問い合わせ先

アルファステイツ野芥駅II マンションギャラリー

0120-053-538 無料

お問合せの際は『SUUMO(スーモ)を見て』とお伝えいただくとスムーズです。

営業時間:10:00~18:00

定休日:火曜日・水曜日(祝日除く)

【67734106】アルファステイツ野芥駅II
他の物件も見てみる!

あなたにオススメの物件

PR

条件を変更して物件を探す

ページトップへ戻る
簡単!約2分で完了
以前にもチェックした物件です 簡単!約2分で完了 まずは気軽に資料請求をしてみよう!