月々8万円台で始める新居生活。建築中物件限定でリビングエアコンプレゼント
※セットバック5.08m2
助任区と内町区も選択可能です。(新入学予定の児童のみ)
※徳島市HP 千松区隣接選択制
【建築中物件限定特典】
■リビングエアコンプレゼント(契約期間:2026年4月30日まで)
建築中物件ならこんなメリットも
■希望エリアの人気物件を、早めに押さえられる
■他エリアでいえとち本舗の実際の完成物件を見学できます
【物件の特徴】
■近隣非公開物件4件情報有り
■家事ラク設計で効率的な水回り動線
■天候に左右されないインナーバルコニー
■駐車4台可能な広い駐車スペース
【周辺環境の特徴】
■千松小学校・城西中学校エリア
太陽光発電システムとオール電化で、家計にも環境にも優しい暮らしを実現しませんか?食洗機やIHコンロ、浴室乾燥機など、家事を楽にする設備も標準装備しています。モデルハウスのご見学はもちろん、住宅ローンのご相談だけでも大歓迎です。未来の住まいを、ぜひ現地でご体感ください!SUUMOからはネットで簡単見学予約可能です♪
※映像に誤り・問題がある場合はこちら
飽きのこないシンプルでスタイリッシュな外観
ずっと住む家だから、暮らしやすい間取りと動線がうれしい♪
お店でさらに詳しいご説明させていただきます!来店予約でもれなくクオカード500円分プレゼント!
※写真に誤り・問題がある場合はこちら
注目の物件ピックアップ
特徴ピックアップ
購入サポート制度
サポート1
| サポート概要 | 定期点検 | ||
|---|---|---|---|
| サポートの詳細説明 | お引渡し後3カ月・2年・5年・10年の無償定期点検を実施。 主要構造や防水部分は法律に基づき10年間の保証対象。また、10年目・15年目に所定の有料メンテナンス工事(例:防蟻処理・屋根外壁塗装など)を実施いただくことで、最大20年まで延長可能。 更に床・壁・天井・階段などの仕上げや水まわり設備等は、部位ごとに最長2年間の短期保証も設けており、専門スタッフがプロの目で住まいを長期的に見守ります。 |
||
| 料金発生有無 | なし | ||
| サポートを受けられる期間 | - 定期点検:お引渡し後3カ月・2年・5年・10年の計4回 - 構造・防水保証:お引渡し日から10年間(法律に基づく) - 10年目・15年目に当社指定の有料メンテナンス工事を実施いただくことで、構造・防水保証を最長20年まで延長可能 - 内装・仕上げ・住宅設備等:部位ごとに最長2年(短期保証)※保証書に準拠 |
||
| サポートを受ける場合の注意点・制約事項 | - 点検・保証内容の詳細は保証書およびメーカー規定に準じます。 - 延長保証には当社が指定するメンテナンス工事(有料)が必要です。 - 通常使用による劣化や消耗、災害・火災・不適切使用などは保証対象外です。 - 保証延長後も、15年目に追加の防蟻処理等を実施いただく必要があります。 - 設備機器は各メーカーの保証期間・規定が優先されます。詳細は保証書をご確認ください。 |
||
サポート2
| サポート概要 | 設備保証 | ||
|---|---|---|---|
| サポートの詳細説明 | ご購入いただいた住宅の太陽光発電システムには、モジュール出力保証リニア25年保証、機器保証10年が付帯されています。発電効率・耐久性に優れた設備で、長期間にわたり快適な省エネ生活をサポートします。 また、パワーコンディショナや蓄電池についてもメーカー規定に準拠した10年間保証が設けられています。 |
||
| 料金発生有無 | なし | ||
| サポートを受けられる期間 | 保証対象・内容は各メーカーの保証書に準じます。 - 対象は通常使用に基づく故障・不具合であり、自然災害・落雷・ご使用状況による損傷は保証対象外です。 - 設備機器の出力低下等は、保証数値(例:初年度に97%以上の出力を保証。10年経過時で90%以上、25年で80%以上の出力をメーカーが保証)を下回る場合に対象となります。 - 点検や出張対応に際し、ご使用環境に起因する場合などは費用が発生することがあります。 - メーカー保証期間経過後は有償対応となります。 - 保証内容の詳細は保証書およびメーカーの規定をご確認ください |
||
| サポートを受ける場合の注意点・制約事項 | - 太陽光モジュール出力保証:お引渡し日からリニア25年保証 - 太陽光モジュール機器保証:10年間(メーカー基準に準拠) - パワーコンディショナ/蓄電池:10年または15年間(メーカー基準に準拠) |
||
サポート3
| サポート概要 | 住宅ローン事前審査一括申込 | ||
|---|---|---|---|
| サポートの詳細説明 | 「住宅ローン1DAY診断」は、あなたが「どの金融機関で、いくら借りられるか」を最短当日に診断し、住宅購入の資金計画をスムーズに進められるサービスです。 複雑な住宅ローンの審査前に、借入れ可能な金額や金融機関の選定を専門家が正確かつ迅速にサポートします。 |
||
| 料金発生有無 | なし | ||
| サポートを受けられる期間 | ・累計1000億円超の住宅ローン仲介実績を持つ専門家があなたの「資金計画」をバックアップ。 ・金融機関の審査基準とお客様の信用情報を元に、最適な金融機関と借入条件を最短当日にご提案します。 ・信用情報の取得・診断もワンストップで完結。面倒な書類集めや複数金融機関への申し込みリスクも軽減されます。 ・土日祝日を除き、平日なら最短即日で診断完了。忙しい方にも安心。 |
||
| サポートを受ける場合の注意点・制約事項 | ・累計1000億円超の住宅ローン仲介実績を持つ専門家があなたの「資金計画」をバックアップ。 ・金融機関の審査基準とお客様の信用情報を元に、最適な金融機関と借入条件を最短当日にご提案します。 ・信用情報の取得・診断もワンストップで完結。面倒な書類集めや複数金融機関への申し込みリスクも軽減されます。 ・土日祝日を除き、平日なら最短即日で診断完了。忙しい方にも安心。 |
||
イベント情報
現地案内会(事前に必ずお問い合わせください)
日程/毎週土日祝
(事前に必ずお問い合わせください)
平日のご案内も大歓迎!
お気軽にお問い合わせ下さい☆
(1)【サクサク内覧コース】
(所要時間:30分程度)
プランのご説明、その他のご質問その場でお答えします。
(2)【じっくり内覧コース】
(所要時間:60分~90分程度)
サクサク内覧コースの内容+住宅ローンのご提案等のご相談何でも承ります。
資料をご提示の上しっかりご説明させて頂き見積もお作り致します。
発売前でインターネットに掲載していない情報などもお伝え致します。
現地の雰囲気をぜひ一度ご覧くださいませ♪
ご案内させていただきます!
※毎週火曜・水曜日は定休日です。
当社ではSUUMOに掲載されている物件以外にも、お客様のご希望に沿った物件を多数の物件データよりご紹介させていただいております。
スタッフ一同、明るい笑顔と元気なあいさつでお迎えしております!
お客様の住まい探しに対する思いや不安がございましたら、お気軽にご相談ください。
いえとち本舗では…
●住まいのプロが、
住んだ後の幸せな暮らしを考えた計画を、お客様のご要望をお聞きしながらご提案させていただきます。
●メリットだけでなく、デメリットやリスクをしっかりとお伝えし、お客様が理解したのちに、購入のご判断をしていただきたいと心掛けています。
●「どのくらいの住宅ローンを組むことができるか」だけでなく「いくらまでなら無理なく返済できるか」など、専門スタッフが資金計画のシミュレーションを無料で診断いたします。
店舗は、キッズスペースもございますのでお子様連れでも安心してご来店いただけます。
https://ietochihonpo.jp/tokushima
プレゼント情報
予約制なのでお待たせすることはありません。平日(火曜・水曜以外)もご案内可能です。
住みたいエリアの土地のご相談や、住宅ローンの組み方等、お一人でもご家族皆さんでもお気軽にご相談ください。
物件詳細情報
|
物件名
|
【頭金ボーナス払い0円】】徳島市南田宮(9)【建築中物件限定!リビングエアコン特典付き】 | ||
|---|---|---|---|
|
価格
|
3398万円 [ □支払シミュレーション ] |
間取り
|
4LDK |
|
販売戸数
|
1戸 |
総戸数
|
1戸 |
|
土地面積
|
174.48m2 |
建物面積
|
103.02m2 |
|
私道負担・道路
|
道路幅:2.6m~5.9m、アスファルト舗装 |
完成時期(築年月)
|
2025年12月下旬予定 |
| 住所 |
徳島県徳島市南田宮1 [ ■周辺環境 ] |
交通 |
JR高徳線「佐古」歩16分
JR徳島線「徳島」歩21分
JR牟岐線「阿波富田」歩43分
|
| 関連リンク |
【この会社の関連サイト】
|
||
| 担当者より |
担当者
不安も多いかと思いますが、1つ1つ解決させていただきます!将来に無理のないマイホーム計画を進めていきましょう!
|
【この物件について】
駐車場4台可能!2階トイレ付き!シューズクローク有りで収納たっぷり♪
【得意エリア】
徳島市、板野郡(全域)、鳴門市、阿南市
|
|
| お問い合せ先 |
TEL:0120-964288 【通話料無料】 「SUUMO(スーモ)を見た」と問い合わせください |
免許番号:国土交通大臣(1)第010603号 取引態様:<売主> 営業時間:10:00~18:00 / 定休日:毎週火・水曜日、祝日月曜日 SUUMO(スーモ)だけではわからない物件の詳細な情報や、最新の物件情報がもらえます! こんなパンフレットが届きます |
|
区画図
|
|
全体区画図 |
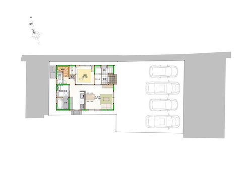
間取り図
-
- 価格
- : 3398万円
- 間取り
- : 4LDK
- 土地面積
- : 174.48m2
- 建物面積
- : 103.02m2
-
スーパーキョーエイ三ツ合橋店:徒歩9分(698m)
-
コンビニセブンイレブン徳島北田宮2丁目店:徒歩6分(447m)
-
中学校徳島県立城西中学校:徒歩28分(2200m)
-
小学校徳島市立千松小学校:徒歩19分(1519m)
-
郵便局徳島吉野本町郵便局:徒歩13分(969m)
-
ショッピングセンターファッションセンターしまむら佐古店:徒歩21分(1619m)
-
スーパーマルナカ佐古店:徒歩22分(1693m)
-
スーパーハローズ佐古店:徒歩19分(1498m)
-
コンビニローソン徳島南田宮一丁目店:徒歩6分(454m)
-
コンビニローソン徳島田宮街道店:徒歩10分(741m)
-
ドラッグストアキリン堂田宮店:徒歩8分(612m)
-
ドラッグストアくすりのレデイ田宮街道店:徒歩9分(670m)
-
ドラッグストアディスカウントドラッグコスモス北佐古店:徒歩16分(1277m)
-
ホームセンターヤマダデンキTecc LIFE SELECT徳島本店:徒歩10分(788m)
-
幼稚園・保育園青嵐認定こども園:徒歩9分(647m)
-
幼稚園・保育園すぎの子保育園:徒歩16分(1231m)
-
病院徳島健康生活協同組合徳島健生病院:徒歩17分(1342m)
-
病院社会医療法人川島会川島病院:徒歩15分(1172m)
-
郵便局徳島前川郵便局:徒歩17分(1287m)
-
郵便局徳島田宮郵便局:徒歩17分(1342m)
-
銀行徳島大正銀行助任支店:徒歩15分(1133m)
-
銀行徳島大正銀行渭北支店:徒歩15分(1135m)
-
銀行徳島信用金庫佐古支店:徒歩15分(1198m)
-
公園田宮公園:徒歩9分(684m)
-
公園佐古駅東緑地:徒歩14分(1053m)
-
公園新町樋門緑地:徒歩19分(1486m)
周辺施設
※地図の更新タイミングの関係で、物件情報が実際のものとは異なる場合や最新情報に更新されていない場合がございます。
※以下の南西諸島及び離島においては、表示される物件の位置が実際のものとは数百メートル程度ずれる場合がございます。
東京都:硫黄島・青ヶ島、沖縄県: 北大東島・南大東島・多良間島・水納島・与那国島・宮古諸島・石垣島・竹富島
見学可能な日程
日程/毎週土日祝
(事前に必ずお問い合わせください)
平日のご案内も大歓迎!
お気軽にお問い合わせ下さい☆
(1)【サクサク内覧コース】
(所要時間:30分程度)
プランのご説明、その他のご質問その場でお答えします。
(2)【じっくり内覧コース】
(所要時間:60分~90分程度)
サクサク内覧コースの内容+住宅ローンのご提案等のご相談何でも承ります。
資料をご提示の上しっかりご説明させて頂き見積もお作り致します。
発売前でインターネットに掲載していない情報などもお伝え致します。
現地の雰囲気をぜひ一度ご覧くださいませ♪
ご案内させていただきます!
※毎週火曜・水曜日は定休日です。
当社ではSUUMOに掲載されている物件以外にも、お客様のご希望に沿った物件を多数の物件データよりご紹介させていただいております。
スタッフ一同、明るい笑顔と元気なあいさつでお迎えしております!
お客様の住まい探しに対する思いや不安がございましたら、お気軽にご相談ください。
いえとち本舗では…
●住まいのプロが、
住んだ後の幸せな暮らしを考えた計画を、お客様のご要望をお聞きしながらご提案させていただきます。
●メリットだけでなく、デメリットやリスクをしっかりとお伝えし、お客様が理解したのちに、購入のご判断をしていただきたいと心掛けています。
●「どのくらいの住宅ローンを組むことができるか」だけでなく「いくらまでなら無理なく返済できるか」など、専門スタッフが資金計画のシミュレーションを無料で診断いたします。
店舗は、キッズスペースもございますのでお子様連れでも安心してご来店いただけます。
https://ietochihonpo.jp/tokushima
設備仕様
|
省エネ性能ラベル
|
太陽光発電システム
|
食洗機
|
||
|
浴室換気乾燥暖房機
|
オール電化+IHコンロ
|
浄水器内蔵ハンドシャワー水栓
|
||
構造の特徴
|
ZEH(ネットゼロエネルギーハウス)
|
耐震等級3相当
|
駆け付けサービス
|
||
|
ベタ基礎
|
マイクロガード機能付き 外壁サイディング
|
20年最長建物保証
|
||
【頭金ボーナス払い0円】】徳島市南田宮(9)【建築中物件限定!リビングエアコン特典付き】 【一戸建て】
販売スケジュール |
- | イベント情報 |
現地案内会(事前に必ずお問い合わせください) 日程/毎週土日祝 (事前に必ずお問い合わせください) 平日のご案内も大歓迎! お気軽にお問い合わせ下さい☆ (1)【サクサク内覧コース】 (所要時間:30分程度) プランのご説明、その他のご質問その場でお答えします。 (2)【じっくり内覧コース】 (所要時間:60分~90分程度) サクサク内覧コースの内容+住宅ローンのご提案等のご相談何でも承ります。 資料をご提示の上しっかりご説明させて頂き見積もお作り致します。 発売前でインターネットに掲載していない情報などもお伝え致します。 現地の雰囲気をぜひ一度ご覧くださいませ♪ ご案内させていただきます! ※毎週火曜・水曜日は定休日です。 当社ではSUUMOに掲載されている物件以外にも、お客様のご希望に沿った物件を多数の物件データよりご紹介させていただいております。 スタッフ一同、明るい笑顔と元気なあいさつでお迎えしております! お客様の住まい探しに対する思いや不安がございましたら、お気軽にご相談ください。 いえとち本舗では… ●住まいのプロが、 住んだ後の幸せな暮らしを考えた計画を、お客様のご要望をお聞きしながらご提案させていただきます。 ●メリットだけでなく、デメリットやリスクをしっかりとお伝えし、お客様が理解したのちに、購入のご判断をしていただきたいと心掛けています。 ●「どのくらいの住宅ローンを組むことができるか」だけでなく「いくらまでなら無理なく返済できるか」など、専門スタッフが資金計画のシミュレーションを無料で診断いたします。 店舗は、キッズスペースもございますのでお子様連れでも安心してご来店いただけます。 https://ietochihonpo.jp/tokushima |
|---|---|---|---|
所在地 |
徳島県徳島市南田宮1 | 交通 |
JR高徳線「佐古」歩16分 |
販売戸数 |
1戸 | 総戸数 |
1戸 |
価格 |
3398万円
[ □支払シミュレーション ] |
最多価格帯 |
- |
私道負担・道路 |
道路幅:2.6m~5.9m、アスファルト舗装 | 諸費用 |
- |
間取り |
4LDK | 建物面積 |
103.02m2 |
土地面積 |
174.48m2 | 建ぺい率・容積率 |
建ペい率:60%、容積率:200% |
完成時期(築年月) |
2025年12月下旬予定 | 引渡可能時期 |
2025年12月下旬予定 |
土地の権利形態 |
所有権 | 構造・工法 |
木造2階建(軸組工法) |
エネルギー消費性能 |
★★★★★★(削減率50%達成) | 断熱性能 |
5段階/7段階中 |
目安光熱費 |
約9.9万円/年 | 施工 |
株式会社グリーンエナジー・ライフ |
リフォーム |
- | 用途地域 |
無指定 |
地目 |
宅地 | その他制限事項 |
【建築中物件フェア注意事項】 ■2026/4/30までのご契約のお客様 ■対象の建築中建売物件を購入された方 ■契約後、お客様の都合により解約に至った場合、権利は無効。 ■本権利の他人に譲渡や金銭や他の物品との交換は不可 ■その他のキャンペーンと併用不可※太陽光発電システム7.920kW込みでの販売も可能です。 |
その他概要・特記事項 |
担当者:佐藤 聖、設備:公営水道、個別浄化槽、オール電化、建築確認番号:第408号令和7年8月8日 | ||
物件の特徴
毎月81963円(年12回・当初3年間)
価格3398万円(頭金・ボーナス払い無し)
住宅ローン金利0.75%(3年固定)40年返済(当初3年間)
- ・紹介金融機関/地方銀行
・融資限度額/1億円以内
・返済期間/40年以内
・利率/年利0.75%(3年固定)
・保証料/融資額により異なります。一括前払い方式または分割方式を選択可能
・取扱手数料/55000円(税込)
※金融機関の審査により融資の可否は異なる場合がございます。
※別途諸費用が必要です。詳細はお問合せください。
※ローンは一定要件該当者が対象です。適用される金利は融資実行時のものとなり、表記されている金利・返済額と異なる場合があります。
会社情報
| 会社概要 | <売主> |
||
|---|---|---|---|
| 問い合わせ先 |
TEL:0120-964288
【通話料無料】
「SUUMO(スーモ)を見た」と問い合わせください
|
||
情報提供日・更新日
| 情報提供日 | 2025年12月5日 | 次回更新日 | 情報提供より8日以内に更新 |
|---|---|---|---|
| 取引条件有効期限 | 2025年12月31日 | ||
32S-01_4
78137620
資料請求・お問い合わせ
- 【1】入力
- 【2】確認
- 【3】完了
- ※価格は物件の代金総額を表示しており、消費税が課税される場合は税込み価格です。 (1000円未満は切り上げ。)
- ※写真に写っている、またはパース(絵)や間取り図に描かれている家具や車などは、特にコメントがない場合、販売価格に含まれません。
- ※敷地権利が定期借地権のものは価格に権利金を含みます。
- ※建築条件付き土地価格には、建物価格は含まれません。
- ※物件情報は、原則として情報提供日の2日前に最終確認した情報です。
- ※完成予想図はいずれも外構、植栽、外観等実際のものとは多少異なることがあります。
- ※モデルルーム・モデルハウス・展示場・ショールームの画像の場合、今回販売の物件と異なる場合があります。
- ※CG合成の画像の場合、実際とは多少異なる場合があります。
- ※物件特徴:販売戸数が複数の物件は、全ての住戸に該当しない項目もあります。
- ※完成後1年以上を経過した未入居物件が掲載される場合があります。ご了承ください。
- ※新着:物件情報が「SUUMO」に掲載された日から1週間表示されます。
- ※価格更新:物件価格が変更された日から1週間表示されます。
- ※販売予定物件はすべて、販売開始するまで契約または予約の申込みはできません。
- ※購入の前には物件内容や契約条件についてご自身で十分な確認をしていただくようにお願いいたします。
- ※建築条件土地の情報内に掲載されている、建物プラン例は、土地購入者の設計プランの参考の一例であって、プランの採用可否は任意です。
- ※土地(建築条件なし)で「建物プラン例」が表記してある時、そのプラン例は特定の建築請負会社によるもので、当該建築請負会社以外で建てた場合、同様のものが同価格で建てられるとは限りません。また建築請負会社を特定するものではありません。
- ※建築条件付き土地とは、その土地に建築する建物の建築請負契約が、一定期間内に成立することを条件として売買される土地のことをいいます。建築請負契約成立に向けて設計プランを協議するため、土地購入者が自己の希望する建物の設計協議をするために必要な相当の期間の交渉期間が設定され、その期間内で希望を満たすプランが実現できたかどうかにより結論を出します。なお、この期間は概ね3ヶ月程度とされています。納得のいくプランが出来ず、建築請負契約が成立しない場合、土地売買契約は白紙に戻り、土地契約にかかった代金(土地代金、手付金など)は名目のいかんに関わらず、全て返却されます。
- ※課税対象物件の「価格」や「費用等」は消費税込みの「総額表示」で統一しています。
- ※「本体価格」とは、課税対象物件においては「消費税を除いた建物価格」と「土地価格」の合計額を指します。
- ※課税対象物件は消費税込みの総額表示のため、不動産広告の販売価格には本体価格の金額は表示されておりません。
- ※不動産売買の媒介(仲介)・代理の際に不動産会社が受領できる報酬額には各々上限が定められています。
- ※売買物件の仲介手数料の法定上限額は「本体価格」を基準に算出します。
- ※取引にかかる費用:物件の契約手続き、決済、引き渡し時にかかる費用を表示しています。不動産会社によって表記有無が異なるため、ご自身で十分な確認をしていただくようにお願いいたします。
- ※掲載の省エネ性能ラベル内の物件・住棟・号室名称については最新のものに変更されている場合があります。
























