YUTORIE富山

YUTORIE富山

【太陽光パネル6.0kW以上を標準仕様】光熱費ゼロを目指し、富山で建てるZEH住宅
お気に入りに追加する
富山県富山市  Sさん
【1537万円/35坪/ZEH住宅】20代ご夫婦が選んだ、将来を見据えたシンプルで快適な家
YUTORIE富山 【1537万円/35坪/ZEH住宅】20代ご夫婦が選んだ、将来を見据えたシンプルで快適な家の建築実例画像1
  • 本体価格
    1,537万円
    43.5万円/坪
  • 延床面積
    116.98m2 (35.3坪)
    敷地面積
    400.35m2 (121.1坪)
    家族構成
    -
  • 竣工年月
    -
    工法
    木造軸組
この会社をもっと知りたくなったら
無料でお届け!まずはカタログ請求

施主Sさんのこだわり

20代ご夫婦が建てた35坪ZEH住宅

20代ご夫婦が建てた35坪のZEH住宅です。おしゃれな外観とこだわりのキッチンが特に素敵なお家です♪黒い外壁・白い床で大人な雰囲気のお家です。

20代ご夫婦が建てた35坪のZEH住宅です。おしゃれな外観とこだわりのキッチンが特に素敵なお家です♪黒い外壁・白い床で大人な雰囲気のお家です。

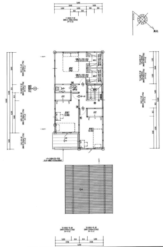
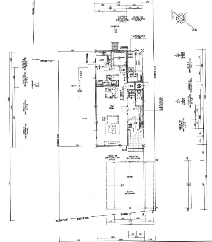
間取り図(3LDK)

1階
YUTORIE富山 【1537万円/35坪/ZEH住宅】20代ご夫婦が選んだ、将来を見据えたシンプルで快適な家の間取り図(3LDK)1階
2階
YUTORIE富山 【1537万円/35坪/ZEH住宅】20代ご夫婦が選んだ、将来を見据えたシンプルで快適な家の間取り図(3LDK)2階
この会社をもっと知りたくなったら
無料でお届け!まずはカタログ請求

内外観ギャラリー

この会社をもっと知りたくなったら
無料でお届け!まずはカタログ請求

この会社の他の建築実例を見る

この建築実例が気になった方へおすすめ

  • この建築実例のカタログをもらう

    YUTORIE富山のカタログ画像
    総合カタログ
    YUTORIE富山総合カタログ
    YUTORIE富山のこだわりや施工事例の紹介カタログです。
  • イベントに参加する

    YUTORIE富山のイベント画像
    【当日予約可!】建物本体価格978万円~、富山で「ZEH住宅」を建てるなら!太陽光パネル6.0kW以上標準搭載【家づくりまとめて相談会】
    • セミナー・教室
    • 設計・資金相談会
    • 構造見学会
    • 土地相談会
    開催日
    随時
    開催場所
    富山県富山市西中野町2丁目15-30 1階

この建築実例の詳細情報

この建築実例を建てた店舗情報

住所 富山県富山市西中野町2丁目15-30 1階
問い合わせ
0120-018-108
  • ※営業時間内の対応となります。

  • ※お問い合わせの際は「SUUMO(スーモ)を見て」とお伝え下さい。

ホームページ この会社のホームページへ

YUTORIE富山のコンテンツ一覧

お問い合わせ

カタログをもらう
総合カタログ
YUTORIE富山のカタログ(YUTORIE富山総合カタログ)
YUTORIE富山総合カタログ
問合コード:1820600001
イベントに参加する
お問い合わせ先
0120-018-108
  • ※営業時間内の対応となります。

  • ※お問い合わせの際は「SUUMO(スーモ)を見て」とお伝え下さい。

  • 富山県富山市西中野町2丁目15-30 1階

  • 定休日:水曜日

この会社のホームページへ

この会社が気になったら

カタログをもらう
総合カタログ
YUTORIE富山のカタログ(YUTORIE富山総合カタログ)
YUTORIE富山総合カタログ
問合コード:1820600001
イベントに参加する

関連キーワード

この建築実例のその他の特徴
ページトップへ戻る