マイホームタナカ

マイホームタナカ

家づくりのあらゆる面で相談できる、良きマイホームアドバイザー
お気に入りに追加する
富山県富山市  Aさん
オシャレカッコイイ店舗併用住宅
マイホームタナカ オシャレカッコイイ店舗併用住宅の建築実例画像1
  • 本体価格
    -
  • 延床面積
    255.70m2 (77.3坪)
    敷地面積
    -
    家族構成
    -
  • 竣工年月
    -
    工法
    木造軸組
この会社をもっと知りたくなったら
無料でお届け!まずはカタログ請求

施主Aさんのこだわり

オシャレなカフェ店と見間違えそうな外観の接骨院

富山市内で新築オープンした接骨院。 1Fには先進設備が揃う広々リハビリルームや施術室、 2Fのファミリースペースには無垢フローリングに オールステンレスのセミオーダーキッチンを採用した。外観はジョリパットとレッドシダーを使用し、カフェ風なイメージで仕上げた。

富山市内で新築オープンした接骨院。 1Fには先進設備が揃う広々リハビリルームや施術室、 2Fのファミリースペースには無垢フローリングに オールステンレスのセミオーダーキッチンを採用した。外観はジョリパットとレッドシダーを使用し、カフェ風なイメージで仕上げた。

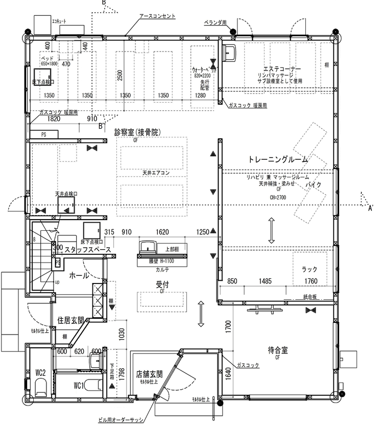
間取り図(4LDK+1階店舗)

1階(店舗)
マイホームタナカ オシャレカッコイイ店舗併用住宅の間取り図(4LDK+1階店舗)1階(店舗)
2階(居住)
マイホームタナカ オシャレカッコイイ店舗併用住宅の間取り図(4LDK+1階店舗)2階(居住)
この会社をもっと知りたくなったら
無料でお届け!まずはカタログ請求

内外観ギャラリー

この会社をもっと知りたくなったら
無料でお届け!まずはカタログ請求

この会社の他の建築実例を見る

この建築実例が気になった方へおすすめ

  • この建築実例のカタログをもらう

    マイホームタナカのカタログ画像
    施工実例集
    WORKS collection
    マイホームタナカがつくる住まいをご紹介します

この建築実例の詳細情報

この建築実例を建てた店舗情報

店舗名 富山支店
住所 富山県富山市新根塚町1-3-1
問い合わせ
076-407-1423
  • ※営業時間内の対応となります。

  • ※お問い合わせの際は「SUUMO(スーモ)を見て」とお伝え下さい。

ホームページ この会社のホームページへ

マイホームタナカのコンテンツ一覧

お問い合わせ

カタログをもらう
施工実例集
マイホームタナカのカタログ(WORKS collection)
WORKS collection
問合コード:1421650001
お問い合わせ先
076-407-1423
  • ※営業時間内の対応となります。

  • ※お問い合わせの際は「SUUMO(スーモ)を見て」とお伝え下さい。

富山支店
  • 富山県富山市新根塚町1-3-1

  • 定休日:水曜日、第4土・日曜日

この会社のホームページへ

この会社が気になったら

カタログをもらう
施工実例集
マイホームタナカのカタログ(WORKS collection)
WORKS collection
問合コード:1421650001

関連キーワード

この建築実例のその他の特徴
ページトップへ戻る