お子さんが小学校に進級する前に家を建てたいと考え、ハウスイズム建築設計事務所で理想の家を実現したMさんご夫妻。重視したのは、高い住宅性能と、日々の生活がしやすい間取りや動線。性能面では、安心&快適に暮らせるように耐震等級3の実現に加え、通常の仕様よりも気密・断熱性能を高めて省エネ&快適性を向上させた。「前の家が寒かったので、気密・断熱性能にもこだわりました」とMさん。間取りや動線では「子どもが帰宅後、そのままお風呂、夕飯という、前の家と同じリズムで暮らせる… 続きを読む
お子さんが小学校に進級する前に家を建てたいと考え、ハウスイズム建築設計事務所で理想の家を実現したMさんご夫妻。重視したのは、高い住宅性能と、日々の生活がしやすい間取りや動線。性能面では、安心&快適に暮らせるように耐震等級3の実現に加え、通常の仕様よりも気密・断熱性能を高めて省エネ&快適性を向上させた。「前の家が寒かったので、気密・断熱性能にもこだわりました」とMさん。間取りや動線では「子どもが帰宅後、そのままお風呂、夕飯という、前の家と同じリズムで暮らせるような間取りを希望しました」(夫人)と、玄関からすぐに浴室に行けるプランに。ほかにも料理がつくりやすいキッチン、照明にもこだわったリビング、洗濯家事の手間を大幅に軽減する2階のホール&ウォークインクローゼットなど、数々のこだわりを実現した。「松川さんと岡村さんは、どんな希望を伝えても必ず1回受け止めてくれるのがとても嬉しかったですね。その上で、『こんなパターンはどうですか?』などと違う案を提案してくれました。『そのアイデアはやったことがないのでやってみたいですね!』などと楽しそうにコミュニケーションをとってくれたので、私達も希望を伝えやすかったです」とMさん。友人に「よく考えられている」「住みやすそう」などと好評の家での生活を満喫中だ。
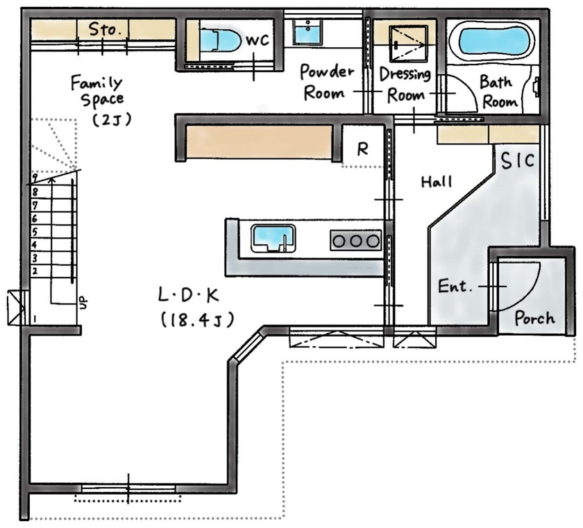
帰宅してお風呂、夕飯という以前の家でのリズムと同様に暮らせるように、玄関から浴室に行ける間取りを実現。玄関は土間を広く取り、自転車やアウトドア用品を置けるスペースに。玄関から3方向に行ける行き止まりのない便利な動線も、日々の生活をラクにするポイント。ファミリースペースには将来ピアノを設置する予定
帰宅してお風呂、夕飯という以前の家でのリズムと同様に暮らせるように、玄関から浴室に行ける間取りを実現。玄関は土間を広く取り、自転車やアウトドア用品を置けるスペースに。玄関から3方向に行ける行き止まりのない便利な動線も、日々の生活をラクにするポイント。ファミリースペースには将来ピアノを設置する予定
洗濯機や物干し用のバーを設置したホールにはキッチンよりも大きなカウンターを造り付け、服を畳んだりアイロン掛けがしやすいようにした。バーに干して乾かした服は、そのまま隣のウォークインクローゼットにしまうことができる便利な動線になっている。ほかにも納戸を設置するなど、豊富な収納を確保した。納戸は将来書斎… 続きを読む
洗濯機や物干し用のバーを設置したホールにはキッチンよりも大きなカウンターを造り付け、服を畳んだりアイロン掛けがしやすいようにした。バーに干して乾かした服は、そのまま隣のウォークインクローゼットにしまうことができる便利な動線になっている。ほかにも納戸を設置するなど、豊富な収納を確保した。納戸は将来書斎としても使えるように、使いやすい高さにカウンターを設けたほか、コンセントも設置している
ホールの隣に大容量のウォークインクローゼットを設置。乾いた洗濯物をすぐにしまうことができる。「洗濯家事がとても… 続きを読む
ホールの隣に大容量のウォークインクローゼットを設置。乾いた洗濯物をすぐにしまうことができる。「洗濯家事がとてもラクになりました」と夫人
SUUMOネットを見て興味を持った1社がハウスイズム建築設計事務所。相談に行ったところ、設計士の松川さんと岡村さんの創造力と知識の豊富さに惚れて。対応もとても丁寧で好感を持ちました。家づくりは長期間になるので、一緒に家づくりをしたいと思える人に依頼したかったのですが、お二人は人柄も良く、安心してお任せできると思いました。プランの提案をしていただく前でしたが、夫婦の間では「ハウスイズムさんにお願いしよう」という感じで、ほぼ依頼先が決まりました。
SUUMOネットを見て興味を持った1社がハウスイズム建築設計事務所。相談に行ったところ、設計士の松川さんと岡村さんの創造力と知識の豊富さに惚れて。対応もとても丁寧で好感を持ちました。家づくりは長期間になるので、一緒に家づくりをしたいと思える人に依頼したかったのですが、お二人は人柄も良く、安心してお任せできると思いました。プランの提案をしていただく前でしたが、夫婦の間では「ハウスイズムさんにお願いしよう」という感じで、ほぼ依頼先が決まりました。
以前から日々のサイクルが決まっているとのことでしたので、そのサイクルを崩さないように、また水回りへのアクセスを良くするなど、さらに暮らしやすくなるように考えて設計を行いました。また、洗濯機を設置したホールとウォークインクローゼットを隣に配置して日々の洗濯家事を最短の時間で済ませられるように、効率の良さも追求しています。デザイン面でもこだわりをお持ちだったご夫妻。さらに美しくスタイリッシュな家になるように、重心が低く見えるような外観デザインのご提案、窓枠を細… 続きを読む
以前から日々のサイクルが決まっているとのことでしたので、そのサイクルを崩さないように、また水回りへのアクセスを良くするなど、さらに暮らしやすくなるように考えて設計を行いました。また、洗濯機を設置したホールとウォークインクローゼットを隣に配置して日々の洗濯家事を最短の時間で済ませられるように、効率の良さも追求しています。デザイン面でもこだわりをお持ちだったご夫妻。さらに美しくスタイリッシュな家になるように、重心が低く見えるような外観デザインのご提案、窓枠を細く、巾木を薄くするなどしてラインが美しく見えるようにも配慮しました。スイッチの位置を低くして目に入りにくくしているのも工夫したポイントです。土地探しから長い期間お手伝いさせていただいたほか、インテリアの好み等も近かったため、ご要望をお聞きするのも、またご提案をするのも楽しかった家づくりでした。
| 商品名 | - |
| 部材・設備 | - |
| 商品名 | - |
| 部材・設備 | - |
| 延床面積 | 108.24m2 (32.7坪) |
| 敷地面積 | 127.81m2 (38.6坪) |
| 工法 | 木造軸組 |
| 本体価格 | 2,500万円~2,999万円 |
| 竣工年月 | 2023年3月 |
| 店舗名 | 横須賀スタジオ 本社 |
| 住所 | 神奈川県横須賀市安浦町2-23-5 |
| 問い合わせ | |
| ホームページ | この会社のホームページへ |
軒天の杉板が袖壁にまで回り込むスタイリッシュな塗り壁の外観。デザイン性はもちろん、日射や通風を考慮して軒の出や窓が計画されている。ウッドフェンスの内側は、外からの視線を気にせずに過ごせる家族の憩いのスペースに
鎌倉スタジオで見て触れて好感触だったオークを床に採用。ぬくもりに満ちたLDKに。Mさんの頭上の照明や間接照明、ペンダントライトなどにもこだわり、大好きな空間を実現。「斜めに配置したスリット窓の提案も良かったです」
お洒落なスケルトン階段で2階とつながる心地よいリビング。「『こうだったらいいのに』という使いにくさがない家です。暑さや寒さ、洗濯家事などのストレスがなくて、本当に暮らしやすく、家で過ごす時間が楽しいです」と夫人
ダイニングテーブルの幅にピッタリ合わせてキッチンを造作。背面の造作カウンターの奥行が55cm、引き出しが45cmのため、引き出しを手前に出して使いやすいように設置。「入居後の暮らしやすさを考慮して提案をしてくれました」と夫人。カップボード上の流木のオブジェもお洒落
三連のIHクッキングヒーターや、カップボード上の収納にルーターなどをしまうスペースをつくるなど、使いやすく美しいキッチン空間を実現。キッチン奥のファミリースペースはお嬢さんのピアノスペースにする予定だ
テレビ上部とテレビボード下に間接照明を埋め込み、柔らかな雰囲気のリビングに。「風が流れる気持ち良く過ごせる家。冬も暖かく快適に過ごせて満足しています」とMさん
キッチンよりも広いという造り付けのカウンターを設け、洗濯家事がラクにできるようにした2階のホール。カウンター手前側の穴は「アイロン掛けした服がシワになりにくいように」とMさんがアイデアを出したもの。洗濯した衣類は3本のアイアンバーに干すことができる
ホールの隣に大容量のウォークインクローゼットを設置。乾いた洗濯物をすぐにしまうことができる。「洗濯家事がとてもラクになりました」と夫人
土間を広くした、外で使う物も気軽にしまえる玄関。見切り材に使うステンレスを框に採用するなど、細部までこだわることでより美しい家に
玄関からキッチン前面、キッチン背面、脱衣室と3方向へ行ける便利な動線を実現。行き止まりのない回遊動線が日々の暮らしをストレスの少ないものにしてくれる
幅が広くて使いやすく、かつお洒落な造作洗面台。高窓から採光を確保し、清潔感のある空間に。水栓を取り付けたモールテックスの上に眼鏡などが置けるスペースをつくり、洗顔にも便利に使えるようにした。奥に見えるのがファミリースペース
ウッドフェンスの内側は、外からの視線を気にせずに過ごせるプライベートスペース。リビングとつながっているので出入りがしやすい