【湘南/逗子市/2000万円台/24坪/自然素材/間取り図有/海が見える家】高低差のある変形地でも。叶った夢。
-
本体価格
2,500万円~2,999万円
(103.3万円~123.9万円/坪)
-
-
施主Iさんのこだわり
湘南の海を見下ろす傾斜地に建つI氏邸。高低差のある変形地だが、海や街に近い閑静な住宅地であることと「面白い家ができるかも」という期待感から購入を決め、建築家に原設計を依頼した。Iさん自身もマンションや店舗のインテリアも手がけるデザイナーで、自宅も自分でデザインしたいと考えていた。敷地を活かしきったプランは「くの字型」のフォルムが特徴的で、海を望む南側はバルコニーを張り出すなど、豊かな意匠性がたっぷり詰め込まれている。インテリアは無垢床や漆喰塗りといった自然…
続きを読む
湘南の海を見下ろす傾斜地に建つI氏邸。高低差のある変形地だが、海や街に近い閑静な住宅地であることと「面白い家ができるかも」という期待感から購入を決め、建築家に原設計を依頼した。Iさん自身もマンションや店舗のインテリアも手がけるデザイナーで、自宅も自分でデザインしたいと考えていた。敷地を活かしきったプランは「くの字型」のフォルムが特徴的で、海を望む南側はバルコニーを張り出すなど、豊かな意匠性がたっぷり詰め込まれている。インテリアは無垢床や漆喰塗りといった自然素材を多用。素材の質感が楽しめるシンプル&ナチュラルな空間にセンスの良さがキラリと光る。そうしたこだわりの住まいをカタチにしたのがサンキホームだ。同社は構造面からアプローチし、基礎はRC、建物は木造という混構造を提案。建築中は2週間に一度、現場立ち会いの時間をつくり、進捗状況の確認やコンセント・スイッチ位置などの詳細を打ち合わせて細かな要望に対応している。完成した家の住み心地については「薪ストーブを炊いても結露がなく、風が通り抜けるので夏も快適。満足度は120%」と、提案力や対応力、仕上がりに納得のご様子だ。※写真:西谷徹哉(GLAD)、設計:勝原嘉仁(アトリエ コ・フォルモ 一級建築士事務所)、インテリアデザイン:石倉信良(アウラ・プラス)
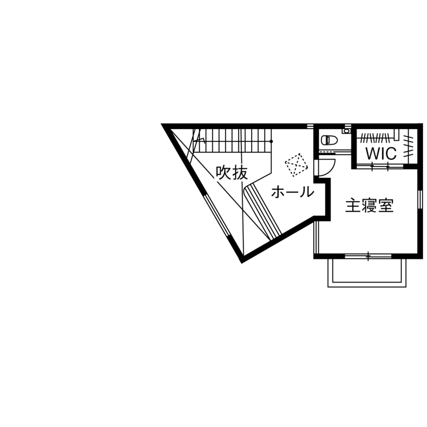
間取り図(2LDK)
内外観ギャラリー
-
湘南の海を望む坂道の途中。高低差のある敷地を最大限に活かすため、RC造+木造の混構造を採用。駐車スペースや自転…
続きを読む
湘南の海を望む坂道の途中。高低差のある敷地を最大限に活かすため、RC造+木造の混構造を採用。駐車スペースや自転車置き場も確保した
-
家具もナチュラルな木製で揃え、窓枠や薪ストーブなどの黒が白×木目を基調とした空間を程よく引き締めている。ダイニ…
続きを読む
家具もナチュラルな木製で揃え、窓枠や薪ストーブなどの黒が白×木目を基調とした空間を程よく引き締めている。ダイニングのペンダントライトは170cmの高さを指定して取り付けてもらった
-
床は床暖房に対応できるタモ材。シンプルなデザインにこだわった階段の踏み板もタモ。現しの梁を支える柱は磨き丸太に…
続きを読む
床は床暖房に対応できるタモ材。シンプルなデザインにこだわった階段の踏み板もタモ。現しの梁を支える柱は磨き丸太に。接するキッチン立ち上がりの角をアールにしたのは大工さんの提案だそう
-
リビングとバルコニーは大開口でつながり、窓を開けると見事な眺望と心地よい風が楽しめる。「風の通り道が考えられた…
続きを読む
リビングとバルコニーは大開口でつながり、窓を開けると見事な眺望と心地よい風が楽しめる。「風の通り道が考えられた窓のおかげでとても気持ちいいですね」
-
バルコニーに面したリビングは明るく開放的。勾配天井の伸びやかな空間にDKや階段を配し、一体感を演出している。同…
続きを読む
バルコニーに面したリビングは明るく開放的。勾配天井の伸びやかな空間にDKや階段を配し、一体感を演出している。同社のアドバイスで取り付けたシーリングファンが夏も冬も大活躍しているそう
-
省スペースながらも機能面が充実したII型キッチンを採用。コンセントやスイッチ、コントロールパネルの位置は施工中…
続きを読む
省スペースながらも機能面が充実したII型キッチンを採用。コンセントやスイッチ、コントロールパネルの位置は施工中の現場で打ち合わせて決めたそう
-
セラミックトップのキッチンは夫人のお気に入り。立ち上がりや背面にオリーブグリーンのタイルをあしらい、落ち着いた…
続きを読む
セラミックトップのキッチンは夫人のお気に入り。立ち上がりや背面にオリーブグリーンのタイルをあしらい、落ち着いた雰囲気の中にセンスが光っている
-
リビングはバルコニー越しに広がる景色を望む絶好のスポット。ソファで寛ぐひとときが仕事の疲れを癒やしてくれる。都…
続きを読む
リビングはバルコニー越しに広がる景色を望む絶好のスポット。ソファで寛ぐひとときが仕事の疲れを癒やしてくれる。都心のマンションでは得られなかった湘南の家の醍醐味を満喫
-
薪ストーブの下はタイル敷き、壁面は大谷石を採用した。ほのかなグリーンがナチュラルな雰囲気にとてもよく似合う。ほ…
続きを読む
薪ストーブの下はタイル敷き、壁面は大谷石を採用した。ほのかなグリーンがナチュラルな雰囲気にとてもよく似合う。ほんわりとした暖かさが吹き抜けから2階まで届く
-
「くの字型」の間取りを象徴するアングル。玄関ホールからLDKはつながりを意識しながらも回り込むような動線になっ…
続きを読む
「くの字型」の間取りを象徴するアングル。玄関ホールからLDKはつながりを意識しながらも回り込むような動線になっている
この会社の他の建築実例を見る
この建築実例の詳細情報
|
商品名
|
-
|
|
部材・設備
|
-
|
|
延床面積
|
80.08m2
(24.2坪)
|
|
敷地面積
|
107.65m2
(32.5坪)
|
|
工法
|
木造軸組
|
|
本体価格
|
2,500万円~2,999万円
|
|
竣工年月
|
-
|
この建築実例を建てた店舗情報
|
店舗名
|
【辻堂東海岸店】
|
|
住所
|
神奈川県藤沢市辻堂東海岸4-3-24-1
|
|
問い合わせ
|
|
|
ホームページ
|
この会社のホームページへ
|
『湘南で家を建てるなら。』 サンキホームのコンテンツ一覧