SAMATA

SAMATA

平屋、ガレージ、スキップフロア、店舗併用・・・多彩な設計力であなたの想いを叶える
お気に入りに追加する
群馬県高崎市  Nさん
【2782万円/31.93坪/間取り図あり】白とグレーを基調に、アクセントクロスが映える家
SAMATA 【2782万円/31.93坪/間取り図あり】白とグレーを基調に、アクセントクロスが映える家の建築実例画像1
  • 本体価格
    2,782万円
    87.2万円/坪
  • 延床面積
    105.57m2 (31.9坪)
    敷地面積
    173.28m2 (52.4坪)
    家族構成
    -
  • 竣工年月
    2025年5月
    工法
    木造軸組
この会社をもっと知りたくなったら
無料でお届け!まずはカタログ請求

施主Nさんのこだわり

シンプルでありながらアクセントクロスの魅力が引き立つ、白とグレーの家

外観はオシャレなツートンカラーで仕上げ、シンプルながらも目を引く印象に。LDKには、暮らしに奥行きをもたらすアートのようなグレークロスを取り入れ、上質な空間を演出しています。キッチンは、グレーのトーンで統一された収納力抜群のデザインで、機能性と美しさを両立。空間の随所には、個性が光るアクセントクロスを施し、インテリアの楽しさをプラスしています。また、階段下には空間を無駄なく活用した収納スペースを確保。トイレはクロスだけでなく、収納にもこだわった使いやすい空… 続きを読む

外観はオシャレなツートンカラーで仕上げ、シンプルながらも目を引く印象に。LDKには、暮らしに奥行きをもたらすアートのようなグレークロスを取り入れ、上質な空間を演出しています。キッチンは、グレーのトーンで統一された収納力抜群のデザインで、機能性と美しさを両立。空間の随所には、個性が光るアクセントクロスを施し、インテリアの楽しさをプラスしています。また、階段下には空間を無駄なく活用した収納スペースを確保。トイレはクロスだけでなく、収納にもこだわった使いやすい空間に仕上げました。手洗いスペースには、あえて見せる配管をアクセントに取り入れたオシャレなデザインを採用。ドアは落ち着きと洗練を兼ね備えたグレーを選び、空間全体に統一感と品の良さを添えています。白とグレーを基調にしたシンプルで洗練された空間に、ちょっとした遊び心と実用性を加えた、ご家族様のこだわりがたくさん詰まった素敵なお家となりました。

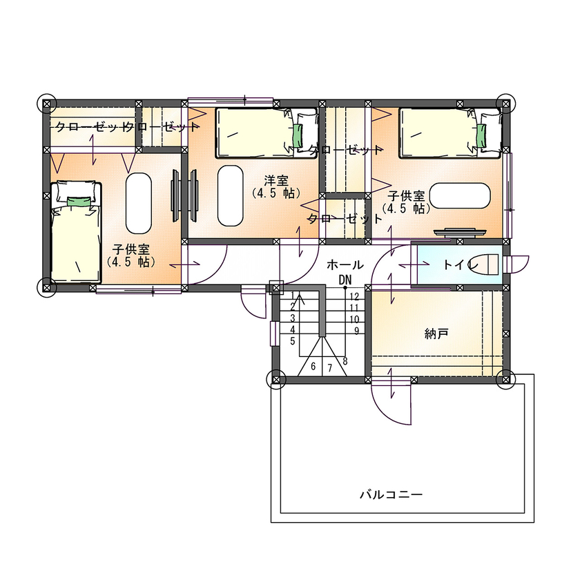
間取り図(4LDK)

1階
SAMATA 【2782万円/31.93坪/間取り図あり】白とグレーを基調に、アクセントクロスが映える家の間取り図(4LDK)1階
2階
SAMATA 【2782万円/31.93坪/間取り図あり】白とグレーを基調に、アクセントクロスが映える家の間取り図(4LDK)2階
この会社をもっと知りたくなったら
無料でお届け!まずはカタログ請求

内外観ギャラリー

この会社をもっと知りたくなったら
無料でお届け!まずはカタログ請求

この会社の他の建築実例を見る

この建築実例が気になった方へおすすめ

この建築実例の詳細情報

この建築実例を建てた店舗情報

住所 群馬県高崎市下豊岡町1539-3
問い合わせ
027-386-8000
  • ※営業時間内の対応となります。

  • ※お問い合わせの際は「SUUMO(スーモ)を見て」とお伝え下さい。

ホームページ この会社のホームページへ

SAMATAのコンテンツ一覧

お問い合わせ

カタログをもらう
総合カタログ
SAMATAのカタログ(SAMATA CONCEPT HOUSE )
SAMATA CONCEPT HOUSE
問合コード:1594380001
お問い合わせ先
027-386-8000
  • ※営業時間内の対応となります。

  • ※お問い合わせの際は「SUUMO(スーモ)を見て」とお伝え下さい。

  • 群馬県高崎市下豊岡町1539-3

  • 定休日:年末年始、GW、お盆等(お問合せ下さい)

この会社のホームページへ

この会社が気になったら

カタログをもらう
総合カタログ
SAMATAのカタログ(SAMATA CONCEPT HOUSE )
SAMATA CONCEPT HOUSE
問合コード:1594380001

関連キーワード

この建築実例のその他の特徴
ページトップへ戻る