SAMATA

SAMATA

平屋、ガレージ、スキップフロア、店舗併用・・・多彩な設計力であなたの想いを叶える
お気に入りに追加する
群馬県前橋市  Iさん
【2530万円/37.07坪/間取り図あり】家事動線を考えた間取りで猫と一緒に暮らしを楽しむ
SAMATA 【2530万円/37.07坪/間取り図あり】家事動線を考えた間取りで猫と一緒に暮らしを楽しむの建築実例画像1
  • 本体価格
    2,530万円
    68.3万円/坪
  • 延床面積
    122.55m2 (37.0坪)
    敷地面積
    264.87m2 (80.1坪)
    家族構成
    夫婦+子ども1人
  • 竣工年月
    2022年9月
    工法
    木造軸組
この会社をもっと知りたくなったら
無料でお届け!まずはカタログ請求

施主Iさんのこだわり

暮らしを楽しむアイランドキッチンのある家

外観は高級感やモダンさを感じさせるブラックに、ホワイトがさし色になっています。玄関は収納力抜群のウォークスルータイプ。お家型のニッチがかわいらしいです。LDKは空間がスッキリしスタイリッシュに見えるハイドアを使用。水回り、家事動線を考えた間取りです。アイランドキッチンは部屋中を見渡せ、家事をしながら家族とコミュニケーションがとりやすいのが魅力。収納力も抜群です。洗面所からランドリールームと脱衣所へ行ける間取り。洋室はカラークロスがアクセント。ネイビーのクロ… 続きを読む

外観は高級感やモダンさを感じさせるブラックに、ホワイトがさし色になっています。玄関は収納力抜群のウォークスルータイプ。お家型のニッチがかわいらしいです。LDKは空間がスッキリしスタイリッシュに見えるハイドアを使用。水回り、家事動線を考えた間取りです。アイランドキッチンは部屋中を見渡せ、家事をしながら家族とコミュニケーションがとりやすいのが魅力。収納力も抜群です。洗面所からランドリールームと脱衣所へ行ける間取り。洋室はカラークロスがアクセント。ネイビーのクロスに丸窓が素敵なお部屋は愛猫の為のお部屋。日当たりの良い丸い窓は猫ちゃんが日向ぼっこする姿が目に浮かびます。ご家族のこだわりが詰まった、愛猫と一緒に暮らしを楽しむ素敵なお家になりました。

間取り図(4LDK)

1階
SAMATA 【2530万円/37.07坪/間取り図あり】家事動線を考えた間取りで猫と一緒に暮らしを楽しむの間取り図(4LDK)1階
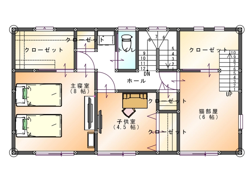
2階
SAMATA 【2530万円/37.07坪/間取り図あり】家事動線を考えた間取りで猫と一緒に暮らしを楽しむの間取り図(4LDK)2階
この会社をもっと知りたくなったら
無料でお届け!まずはカタログ請求

内外観ギャラリー

この会社をもっと知りたくなったら
無料でお届け!まずはカタログ請求

この会社の他の建築実例を見る

この建築実例が気になった方へおすすめ

この建築実例の詳細情報

この建築実例を建てた店舗情報

住所 群馬県高崎市下豊岡町1539-3
問い合わせ
027-386-8000
  • ※営業時間内の対応となります。

  • ※お問い合わせの際は「SUUMO(スーモ)を見て」とお伝え下さい。

ホームページ この会社のホームページへ

SAMATAのコンテンツ一覧

お問い合わせ

カタログをもらう
総合カタログ
SAMATAのカタログ(SAMATA CONCEPT HOUSE )
SAMATA CONCEPT HOUSE
問合コード:1594380001
お問い合わせ先
027-386-8000
  • ※営業時間内の対応となります。

  • ※お問い合わせの際は「SUUMO(スーモ)を見て」とお伝え下さい。

  • 群馬県高崎市下豊岡町1539-3

  • 定休日:年末年始、GW、お盆等(お問合せ下さい)

この会社のホームページへ

この会社が気になったら

カタログをもらう
総合カタログ
SAMATAのカタログ(SAMATA CONCEPT HOUSE )
SAMATA CONCEPT HOUSE
問合コード:1594380001

関連キーワード

この建築実例のその他の特徴
ページトップへ戻る