SAMATA

SAMATA

平屋、ガレージ、スキップフロア、店舗併用・・・多彩な設計力であなたの想いを叶える
お気に入りに追加する
群馬県安中市  Kさん
【4000万円/52.3坪/間取り図あり】洗練された外観に遊び心満載のガレージハウス
SAMATA 【4000万円/52.3坪/間取り図あり】洗練された外観に遊び心満載のガレージハウスの建築実例画像1
  • 本体価格
    4,000万円
    76.5万円/坪
  • 延床面積
    172.93m2 (52.3坪)
    敷地面積
    330.72m2 (100.0坪)
    家族構成
    ご夫婦+子ども1人
  • 竣工年月
    -
    工法
    木造軸組
この会社をもっと知りたくなったら
無料でお届け!まずはカタログ請求

施主Kさんのこだわり

愛車がインテリアの一部になる“ショー・ガレージ”

塗り壁とガルバリウム鋼板のコントラストが素敵な外観です。玄関は高級感あふれるタイルで統一され、広々とした贅沢な空間が広がります。人気のただいま手洗いはダブルボールです。リビングからはガレージの愛車を眺められる設計になっており、愛車がインテリアの一部になる“ショー・ガレージ”が特徴です。さらに白を基調としたLDKにグレーのアイランドキッチがアクセントとなり空間を彩ります。テレビ裏収納にすることで、高級感を損なわず機能性にもこだわった空間となっています。また、… 続きを読む

塗り壁とガルバリウム鋼板のコントラストが素敵な外観です。玄関は高級感あふれるタイルで統一され、広々とした贅沢な空間が広がります。人気のただいま手洗いはダブルボールです。リビングからはガレージの愛車を眺められる設計になっており、愛車がインテリアの一部になる“ショー・ガレージ”が特徴です。さらに白を基調としたLDKにグレーのアイランドキッチがアクセントとなり空間を彩ります。テレビ裏収納にすることで、高級感を損なわず機能性にもこだわった空間となっています。また、テレビ裏収納にはホワイトボードの壁紙を使用し、メモをしたり用紙を貼り付けたり、お子様がお絵描きを楽しんだりと素敵なスペースになっています。室内はサンゴの塗壁を使用しています。サンゴの塗壁の効果である、消臭効果や調湿効果は、ランドリーや洗面脱衣所などの水回りで特に嬉しい効果です。子ども部屋もタイルが美しい高級感あふれる空間で、お子様の成長に合せて二部屋に出来る仕様です。ご家族のこだわりが詰まった、スタイリッシュで美しいデザインとハイスペックを兼ね備えた素敵なお家になりました。

間取り図(3LDK)

1階
SAMATA 【4000万円/52.3坪/間取り図あり】洗練された外観に遊び心満載のガレージハウスの間取り図(3LDK)1階
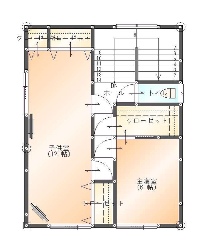
2階
SAMATA 【4000万円/52.3坪/間取り図あり】洗練された外観に遊び心満載のガレージハウスの間取り図(3LDK)2階
この会社をもっと知りたくなったら
無料でお届け!まずはカタログ請求

内外観ギャラリー

この会社をもっと知りたくなったら
無料でお届け!まずはカタログ請求

この会社の他の建築実例を見る

この建築実例が気になった方へおすすめ

この建築実例の詳細情報

この建築実例を建てた店舗情報

住所 群馬県高崎市下豊岡町1539-3
問い合わせ
027-386-8000
  • ※営業時間内の対応となります。

  • ※お問い合わせの際は「SUUMO(スーモ)を見て」とお伝え下さい。

ホームページ この会社のホームページへ

SAMATAのコンテンツ一覧

お問い合わせ

カタログをもらう
総合カタログ
SAMATAのカタログ(SAMATA CONCEPT HOUSE )
SAMATA CONCEPT HOUSE
問合コード:1594380001
お問い合わせ先
027-386-8000
  • ※営業時間内の対応となります。

  • ※お問い合わせの際は「SUUMO(スーモ)を見て」とお伝え下さい。

  • 群馬県高崎市下豊岡町1539-3

  • 定休日:年末年始、GW、お盆等(お問合せ下さい)

この会社のホームページへ

この会社が気になったら

カタログをもらう
総合カタログ
SAMATAのカタログ(SAMATA CONCEPT HOUSE )
SAMATA CONCEPT HOUSE
問合コード:1594380001

関連キーワード

この建築実例のその他の特徴
ページトップへ戻る