QLASHISA 高草木工務店

QLASHISA 高草木工務店

設計士とつくる ちょっとオシャレな 木の家
お気に入りに追加する
【間取り図有|無垢材|平屋】陽だまりに包まれて家族との時間を満喫 本棚階段のある遊びゴコロ溢れる家
QLASHISA 高草木工務店 【間取り図有|無垢材|平屋】陽だまりに包まれて家族との時間を満喫 本棚階段のある遊びゴコロ溢れる家の建築実例画像1
  • 本体価格
    -
  • 延床面積
    100.20m2 (30.3坪)
    敷地面積
    227.76m2 (68.8坪)
    家族構成
    夫婦+子ども2人
  • 竣工年月
    -
    工法
    木造軸組
この会社をもっと知りたくなったら
無料でお届け!まずはカタログ請求

施主Mさんのこだわり

玄関からリビングにつながる設計や、家事ラク間取りと暮らし心地を追求

【当実例は、関係する別会社の施工実績のため、一部建築可能な仕様や価格、対応が異なる場合があります】ガルバリウムにシャープな片流れ屋根が目を引くMさん邸は、計算された窓配置により冬はたっぷりと陽光が注ぎ、夏は陽光を入りにくくして一年中過ごしやすい住空間を実現。優しい無垢床の肌触りも相まって家族みんなが寛げる場所となっている。室内に入ると玄関からすぐにリビングへとつながる開放的な間取りもポイント。玄関土間は、Mさんの趣味であるロードバイクをディスプレイしたり、… 続きを読む

【当実例は、関係する別会社の施工実績のため、一部建築可能な仕様や価格、対応が異なる場合があります】ガルバリウムにシャープな片流れ屋根が目を引くMさん邸は、計算された窓配置により冬はたっぷりと陽光が注ぎ、夏は陽光を入りにくくして一年中過ごしやすい住空間を実現。優しい無垢床の肌触りも相まって家族みんなが寛げる場所となっている。室内に入ると玄関からすぐにリビングへとつながる開放的な間取りもポイント。玄関土間は、Mさんの趣味であるロードバイクをディスプレイしたり、お子さんの自転車を収納したりとゆとりのある空間を確保した。さらに、夫人がキッチンに立っていてもお子さんの帰宅が分かるという嬉しい点も。いつでも家族の顔が見える空間となっている。お子さんの部屋からロフトにつながる階段は本棚になっており、遊びゴコロのある設計が嬉しい。また、キッチンの裏側に水回りを集約したり、洗面脱衣室の隣にクロゼットを配置したりと、住まい手に配慮した家事ラク動線で、毎日の家事を簡潔にできるのも嬉しい。毎日を楽しく過ごせる工夫が満載の住まいが完成。この住まいで、家族との時間を育んでいく。

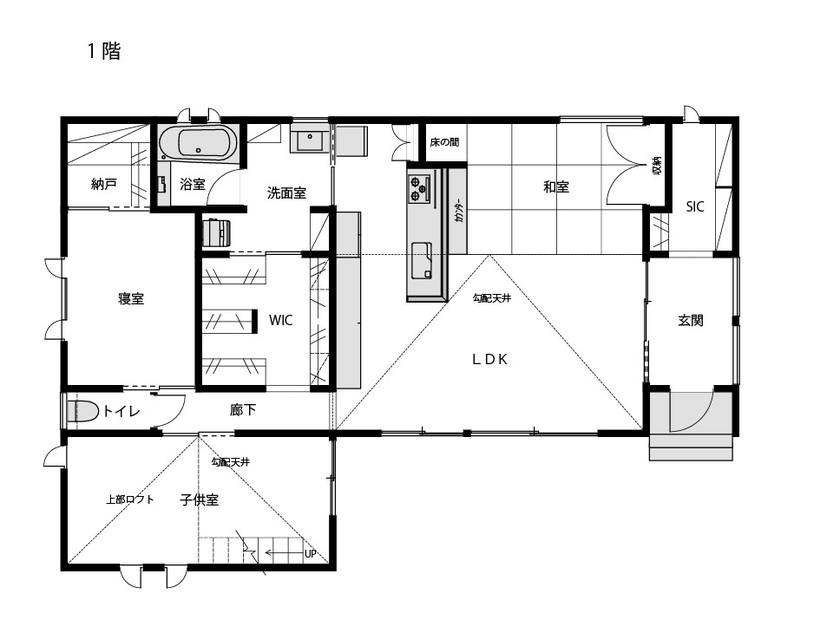
間取り図(2LDK)

1階
QLASHISA 高草木工務店 【間取り図有|無垢材|平屋】陽だまりに包まれて家族との時間を満喫 本棚階段のある遊びゴコロ溢れる家の間取り図(2LDK)1階
この会社をもっと知りたくなったら
無料でお届け!まずはカタログ請求

内外観ギャラリー

この会社をもっと知りたくなったら
無料でお届け!まずはカタログ請求

この会社の他の建築実例を見る

この建築実例が気になった方へおすすめ

  • この建築実例のカタログをもらう

    QLASHISA 高草木工務店のカタログ画像
    施工実例集
    QLASHISA施工実例集
    「QLASHISA」の施工実例を集めました

この建築実例の詳細情報

この建築実例を建てた店舗情報

住所 群馬県桐生市広沢町1丁目2584
問い合わせ
0277-54-0417
  • ※営業時間内の対応となります。

  • ※お問い合わせの際は「SUUMO(スーモ)を見て」とお伝え下さい。

ホームページ この会社のホームページへ

QLASHISA 高草木工務店のコンテンツ一覧

お問い合わせ

カタログをもらう
施工実例集
QLASHISA 高草木工務店のカタログ(QLASHISA施工実例集)
QLASHISA施工実例集
問合コード:1580120001
お問い合わせ先
0277-54-0417
  • ※営業時間内の対応となります。

  • ※お問い合わせの際は「SUUMO(スーモ)を見て」とお伝え下さい。

  • 群馬県桐生市広沢町1丁目2584

  • 定休日:水曜日・祝日

この会社のホームページへ

この会社が気になったら

カタログをもらう
施工実例集
QLASHISA 高草木工務店のカタログ(QLASHISA施工実例集)
QLASHISA施工実例集
問合コード:1580120001

関連キーワード

この建築実例のその他の特徴
ページトップへ戻る