【狭小地/3階建て/間取り図/ガレージ】21坪でも3階LDK+高天井+ルーフバルコニーで、仲間と集う開放感を実現
-
本体価格
2,500万円~2,999万円
(61.6万円~73.9万円/坪)
-
-
施主Aさんのこだわり
愛犬の散歩をしている時に偶然こちらの土地を見かけ、家づくりをスタートされたAさんご家族。21.9坪で間口が狭い土地だが、一歩玄関を入ると狭さをまったく感じない奥行きのある空間が広がる。1階には水まわりとAさんの書斎、2階にはご夫婦の寝室と子ども部屋、3階にはLDKをプランニング。「主人がどうしてもルーフバルコニーでビールが飲みたいと言っていて、飲み物をすぐに取りに行けるように3階にLDKを配置しました」とご夫人。今では頻繁に草野球仲間が集まってホームパーテ…
続きを読む
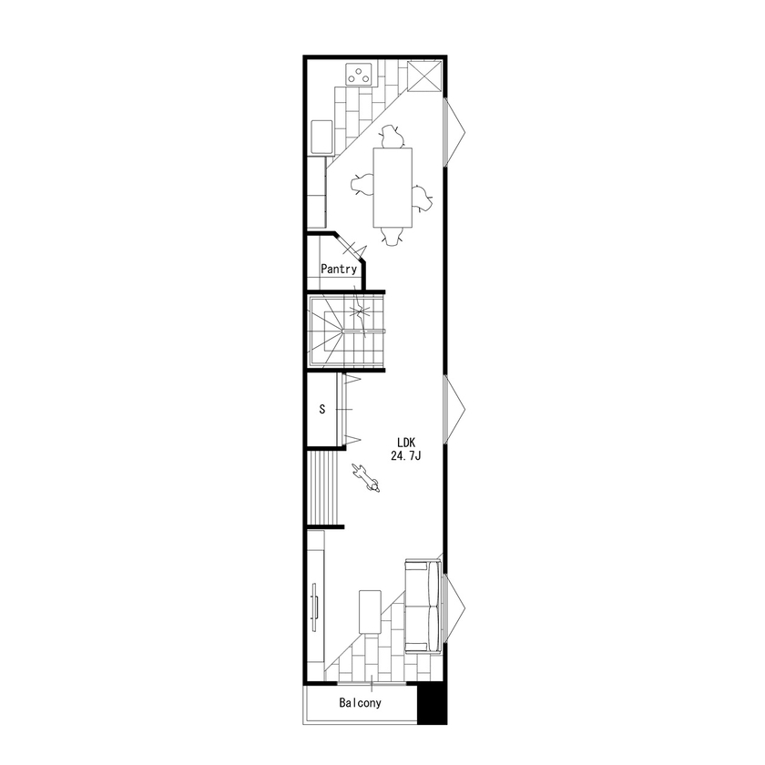
愛犬の散歩をしている時に偶然こちらの土地を見かけ、家づくりをスタートされたAさんご家族。21.9坪で間口が狭い土地だが、一歩玄関を入ると狭さをまったく感じない奥行きのある空間が広がる。1階には水まわりとAさんの書斎、2階にはご夫婦の寝室と子ども部屋、3階にはLDKをプランニング。「主人がどうしてもルーフバルコニーでビールが飲みたいと言っていて、飲み物をすぐに取りに行けるように3階にLDKを配置しました」とご夫人。今では頻繁に草野球仲間が集まってホームパーティーを楽しまれているそう。このようにご夫人が考えた居室配置をベースに建築士の碓井氏が設計を、建具や色味のバランスはインテリアコーディネーターの岩沖氏が担当した。ご家族が集まるLDKは天井高を2700mmまで上げることで開放感を高め、空間をより広く感じられるよう工夫が施されている。リビングの一角には以前の住まいで使用していた愛犬のハウスのサイズに合わせて造作した専用スペースを設け、その上部は飾り棚とした。また、キッチンは空間を有効活用するためにL字キッチンを採用。家全体を通して白を基調としているが、キッチンにはダークグレーを取り入れて重厚感のある空間とした。「窓の位置や冷蔵庫置き場の幅、照明や人感センサーの配置まで碓井さんと岩沖さんが色々と提案してくれて、本当にお任せして良かったです。すべてイメージ通りの家になりました!」と、大満足のご様子だ。
間取り図(2LDK+書斎)
内外観ギャラリー
-
バルコニーとガレージの位置を合わせることで整然とした印象に仕上げたファサード。建物左側には引き戸の外収納があり…
続きを読む
バルコニーとガレージの位置を合わせることで整然とした印象に仕上げたファサード。建物左側には引き戸の外収納があり、アウトドア用品やゴルフバッグなどをしまっているという
-
以前のお住まいで使用していた愛犬のハウスをそのまま使えるよう、リビングの一角に専用スペースをプランニング。ハウ…
続きを読む
以前のお住まいで使用していた愛犬のハウスをそのまま使えるよう、リビングの一角に専用スペースをプランニング。ハウスの上部には飾り棚を設け、お花やアートを飾って楽しまれている
-
ご夫人こだわりのキッチンは、リビングと雰囲気を変えて黒を取り入れたシックな空間に。細長い土地で空間を有効に使う…
続きを読む
ご夫人こだわりのキッチンは、リビングと雰囲気を変えて黒を取り入れたシックな空間に。細長い土地で空間を有効に使うべく、対面ではなくL字キッチンを採用した。セラミック製なので熱い鍋の直置きもできるという。「冷蔵庫を2つ置きたい」というご要望に合わせて、建築士の碓井氏がコンロとの間の壁の厚みを細かく計算しながら設計したそう
-
「ウォーターサーバーを置くスペースの確保」「キッチンの収納スペース」「スムーズな動線」の3つを叶えたのがこの斜…
続きを読む
「ウォーターサーバーを置くスペースの確保」「キッチンの収納スペース」「スムーズな動線」の3つを叶えたのがこの斜めに配置されたパントリー。食材のストックやワインセラーなどたっぷりと収納できる大容量が嬉しい
-
階段だけ茶色にしたいというご夫人のご要望に対し、「重い印象にならないように踏み板を茶色、蹴込み板は白にすること…
続きを読む
階段だけ茶色にしたいというご夫人のご要望に対し、「重い印象にならないように踏み板を茶色、蹴込み板は白にすることを提案しました」とインテリアコーディネーターの岩沖氏。階段周りの人感センサーの配置なども非常にこだわっている
-
「どうしてもルーフバルコニーでビールを飲みたい!」というAさんのご要望により誕生した広いアウトドア空間。飲み物…
続きを読む
「どうしてもルーフバルコニーでビールを飲みたい!」というAさんのご要望により誕生した広いアウトドア空間。飲み物などをスムーズに取りに行けるようにLDKを3階に配置したという。今ではご友人が集まってみんなでお酒を飲んだり、愛犬が遊ぶスペースとして家族全員で活用しているご様子
-
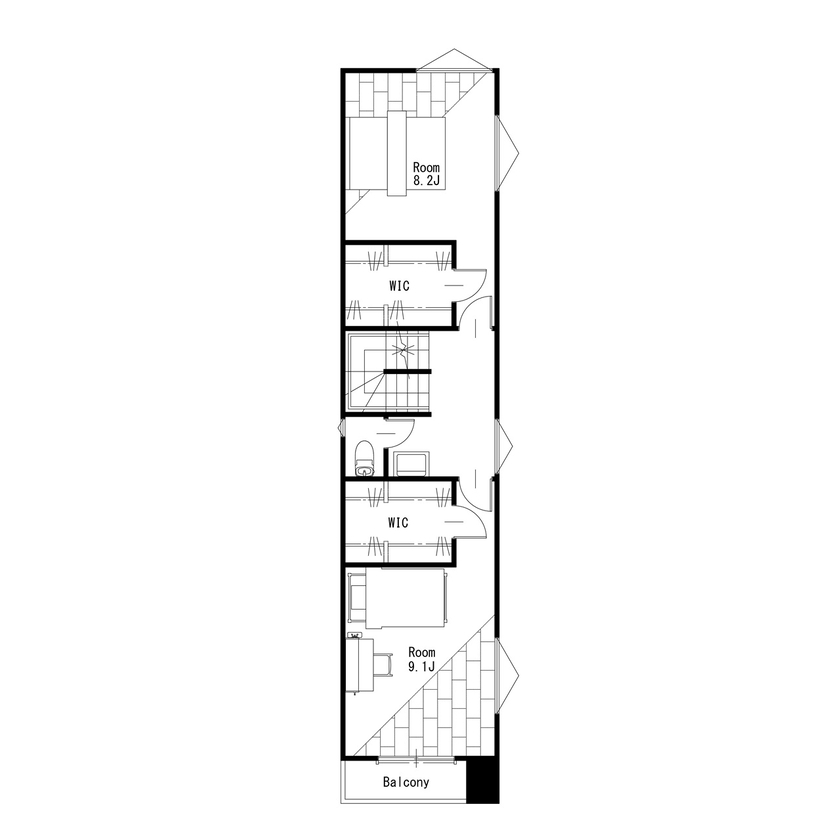
寝室と子ども部屋がある2階のホールには洗面台とトイレを配置。フロートタイプの洗面台にすることで抜け感のある空間…
続きを読む
寝室と子ども部屋がある2階のホールには洗面台とトイレを配置。フロートタイプの洗面台にすることで抜け感のある空間を演出した。タオル掛けやトイレットペーパーホルダーなどはインテリアコーディネーターが空間に合うものを選んで提案したという
-
Aさんの仕事部屋である書斎は1階にプランニング。LDKと離れているため、作業に集中することができるプライベート…
続きを読む
Aさんの仕事部屋である書斎は1階にプランニング。LDKと離れているため、作業に集中することができるプライベートな空間となっている
-
白で統一することで間口の狭さを感じさせない広々とした玄関ホール。突き当たりには水まわりを配置した。床は鏡面仕上…
続きを読む
白で統一することで間口の狭さを感じさせない広々とした玄関ホール。突き当たりには水まわりを配置した。床は鏡面仕上げの木質フローリングを採用しており、タイルのような高級感のある質感ながらも冷たさを感じにくいという。愛犬のために滑りにくく消臭機能のあるコーティングを施した
-
21坪台の狭小地とは思えないほど開放感と奥行きのあるリビングの秘訣は、2700mmの天井高とハイサッシ。天井高…
続きを読む
21坪台の狭小地とは思えないほど開放感と奥行きのあるリビングの秘訣は、2700mmの天井高とハイサッシ。天井高を上げることで圧迫感が取り除かれ、空間を広く感じることができる
この建築実例の担当者
平面的になりがちな狭小地3階建てですが、壁に厚みを持たせ、外壁のカラーを統一することで重厚感のある佇まいを演出しています。屋上を道路側まで広げる事によりスクエアな外観となるよう整えたのもポイントです。
この会社の他の建築実例を見る
この建築実例の詳細情報
|
商品名
|
-
|
|
部材・設備
|
-
|
|
延床面積
|
134.22m2
(40.6坪)
|
|
敷地面積
|
72.58m2
(21.9坪)
|
|
工法
|
2×4、2×6
|
|
本体価格
|
2,500万円~2,999万円
|
|
竣工年月
|
2023年1月
|
この建築実例を建てた店舗情報
|
店舗名
|
横浜本店
|
|
住所
|
神奈川県横浜市神奈川区泉町17-1 第一泉ビル5F
|
|
問い合わせ
|
|
|
ホームページ
|
この会社のホームページへ
|
MD studio. 建築士とつくる家のコンテンツ一覧