大成住宅

大成住宅

鶴ヶ島、川越、志木に3店舗。土地探しからアフターまでトータルサポート
お気に入りに追加する
埼玉県坂戸市  Iさん
【可変型2(3)LDK/書斎/ランドリースペース/敷地44.6坪/間取り図有】家事効率UP!家族との時間を増やす家
大成住宅 【可変型2(3)LDK/書斎/ランドリースペース/敷地44.6坪/間取り図有】家事効率UP!家族との時間を増やす家の建築実例画像1
  • 本体価格
    2,000万円
    57.9万円/坪
  • 延床面積
    114.27m2 (34.5坪)
    敷地面積
    147.54m2 (44.6坪)
    家族構成
    2人暮らし(夫婦)
  • 竣工年月
    2023年12月
    工法
    木造軸組
この会社をもっと知りたくなったら
無料でお届け!まずはカタログ請求

施主Iさんのこだわり

家事時間を短縮する水廻り集中設計

もともと注文住宅に興味があり、建物をこだわりたいという気持ちがとても強かった。また、希望の価格と生活の利便性がちょうど良い土地を取り扱っていたことが決め手で大成住宅で家をづくりをスタート。見た目をより良くするために外壁材もグレードの高い物をチョイス。ウッド×グレー“理想の色と質感”でホテルライクな空間づくりと、家事効率の良い水廻り集中設計を意識して建築士とともに間取りや内装を決めた。ご主人のこだわりは、お家シアターを楽しむためにリビングのクロスを一部プロジ… 続きを読む

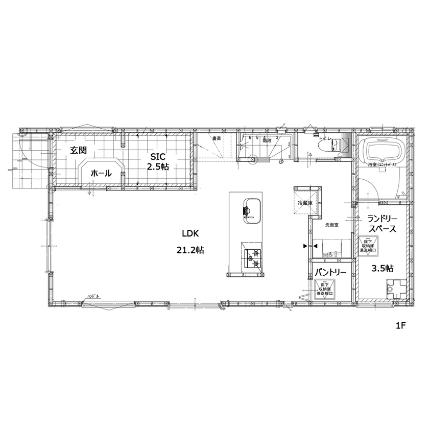
もともと注文住宅に興味があり、建物をこだわりたいという気持ちがとても強かった。また、希望の価格と生活の利便性がちょうど良い土地を取り扱っていたことが決め手で大成住宅で家をづくりをスタート。見た目をより良くするために外壁材もグレードの高い物をチョイス。ウッド×グレー“理想の色と質感”でホテルライクな空間づくりと、家事効率の良い水廻り集中設計を意識して建築士とともに間取りや内装を決めた。ご主人のこだわりは、お家シアターを楽しむためにリビングのクロスを一部プロジェクター用にし、キッチン横には作業ができるように書斎スペースをつくった事。奥様のこだわりは折り下げ天井がお洒落なオープンキッチンと、洗濯作業の“洗う→干す→しまう”が一ヶ所で完結できる3.5帖の広いランドリースペース。2階12.5帖洋室は子供の成長の合わせて将来間仕切りができるようフレキシブルルームに。また、シューズインクロークやパントリー、ファミリークローゼットなど大型収納を豊富に設けたことで、生活も空間もゆったりと過ごせる住まいに仕上がった。

間取り図(2LDK+SIC+WIC+書斎)

1階
大成住宅 【可変型2(3)LDK/書斎/ランドリースペース/敷地44.6坪/間取り図有】家事効率UP!家族との時間を増やす家の間取り図(2LDK+SIC+WIC+書斎)1階
2階
大成住宅 【可変型2(3)LDK/書斎/ランドリースペース/敷地44.6坪/間取り図有】家事効率UP!家族との時間を増やす家の間取り図(2LDK+SIC+WIC+書斎)2階
この会社をもっと知りたくなったら
無料でお届け!まずはカタログ請求

内外観ギャラリー

この会社をもっと知りたくなったら
無料でお届け!まずはカタログ請求

この会社の他の建築実例を見る

この建築実例が気になった方へおすすめ

  • この建築実例のカタログをもらう

    大成住宅のカタログ画像
    施工実例集
    \大成住宅の注文住宅/COCOYUNO(ココユノ)の仕様書と施工事例集
    自由設計「COCOYUNO」の仕様書と施工事例で、自分らしい家づくりのヒントが見つかる
  • イベントに参加する

    大成住宅のイベント画像
    ★SUUMOにて来場予約受付中★【志木・朝霞・和光市エリア】「家づくり」無料相談会受付中!土地探し・資金・ローンについてもお気軽にご相談ください!
    • 設計・資金相談会
    • 新商品情報
    • モデルハウス見学会
    • 土地相談会
    開催日
    火曜日・水曜日を除き、事前予約で随時受付中
    開催場所
    埼玉県新座市東北二丁目24-14 Brillia 志木 Garden 1階

この建築実例の詳細情報

この建築実例を建てた店舗情報

店舗名 川越ハウジングギャラリー
住所 埼玉県川越市広栄町10‐6
問い合わせ
0800-777-1117
  • ※営業時間内の対応となります。

  • ※お問い合わせの際は「SUUMO(スーモ)を見て」とお伝え下さい。

ホームページ この会社のホームページへ

大成住宅のコンテンツ一覧

お問い合わせ

カタログをもらう
施工実例集
大成住宅のカタログ(\大成住宅の注文住宅/COCOYUNO(ココユノ)の仕様書と施工事例集)
\大成住宅の注文住宅/COCOYUNO(ココユノ)の仕様書と施工事例集
問合コード:0798270001
お問い合わせ先
0800-777-1117
  • ※営業時間内の対応となります。

  • ※お問い合わせの際は「SUUMO(スーモ)を見て」とお伝え下さい。

川越ハウジングギャラリー
  • 埼玉県川越市広栄町10‐6

  • 定休日:毎週火曜日・水曜日

この会社のホームページへ

この会社が気になったら

カタログをもらう
施工実例集
大成住宅のカタログ(\大成住宅の注文住宅/COCOYUNO(ココユノ)の仕様書と施工事例集)
\大成住宅の注文住宅/COCOYUNO(ココユノ)の仕様書と施工事例集
問合コード:0798270001

関連キーワード

この建築実例のその他の特徴
ページトップへ戻る