大成住宅

大成住宅

鶴ヶ島、川越、志木に3店舗。土地探しからアフターまでトータルサポート
お気に入りに追加する
埼玉県鶴ヶ島市  Yさん
【SLDK/SIC/WIC/書斎/ランドリースペース/間取り図有】家事楽アイディアが詰まった北欧モダンな家
大成住宅 【SLDK/SIC/WIC/書斎/ランドリースペース/間取り図有】家事楽アイディアが詰まった北欧モダンな家の建築実例画像1
  • 本体価格
    2,200万円
    68.1万円/坪
  • 延床面積
    106.82m2 (32.3坪)
    敷地面積
    -
    家族構成
    夫婦+子ども2人
  • 竣工年月
    -
    工法
    木造軸組
この会社をもっと知りたくなったら
無料でお届け!まずはカタログ請求

施主Yさんのこだわり

グレー×アイボリー×木目 柔らかい雰囲気の北欧モダンな家

実家の近くで家を建てたいという思いから、土地情報に詳しい地域密着企業である大成住宅で家を建てることを決断。外観はモダンテイストのクールな印象に。内装はベースのクロスカラーをグレーにし、建具をアイボリーにすることで柔らかく優しい印象に仕上げた。リビングの勾配天井は木目天井になっていて、こだわったポイントの1つ。奥様が一番こだわったのは、水廻り集中設計の家事動線に優れた間取り!バルコニー横にランドリースペースを設けることで、面倒なお洗濯が楽々に。また、ランドリ… 続きを読む

実家の近くで家を建てたいという思いから、土地情報に詳しい地域密着企業である大成住宅で家を建てることを決断。外観はモダンテイストのクールな印象に。内装はベースのクロスカラーをグレーにし、建具をアイボリーにすることで柔らかく優しい印象に仕上げた。リビングの勾配天井は木目天井になっていて、こだわったポイントの1つ。奥様が一番こだわったのは、水廻り集中設計の家事動線に優れた間取り!バルコニー横にランドリースペースを設けることで、面倒なお洗濯が楽々に。また、ランドリースペース内には室内物干しがあり、雨の日の洗濯物も安心。バルコニーはリビングからの出入りも可能で、奥行きのある広いバルコニーにすることにより、家族でBBQをして過ごしたいという希望を実現。プライベート空間が保てるようにバルコニーの壁をわざと高くしている。ご主人が一番こだわったのは、主寝室にある書斎スペースでカウンターと絶妙な高さの窓がポイント。お部屋に間仕切りを設置することで、落ち着いて作業ができる空間にした。家族との時間を楽しむ空間、日々の家事を行う空間、お仕事をする空間、それぞれの空間を上手くカタチにした素敵な家が完成した。

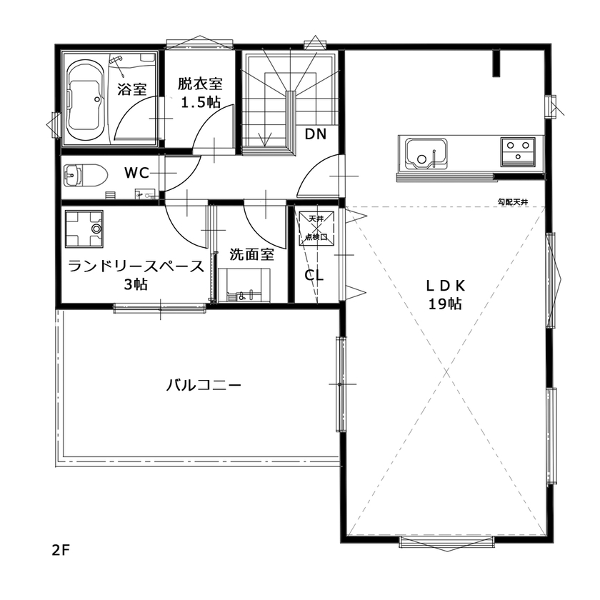
間取り図(2SLDK+SIC+WIC+書斎)

1階
大成住宅 【SLDK/SIC/WIC/書斎/ランドリースペース/間取り図有】家事楽アイディアが詰まった北欧モダンな家の間取り図(2SLDK+SIC+WIC+書斎)1階
2階
大成住宅 【SLDK/SIC/WIC/書斎/ランドリースペース/間取り図有】家事楽アイディアが詰まった北欧モダンな家の間取り図(2SLDK+SIC+WIC+書斎)2階
この会社をもっと知りたくなったら
無料でお届け!まずはカタログ請求

内外観ギャラリー

この会社をもっと知りたくなったら
無料でお届け!まずはカタログ請求

この会社の他の建築実例を見る

この建築実例が気になった方へおすすめ

  • この建築実例のカタログをもらう

    大成住宅のカタログ画像
    施工実例集
    \大成住宅の注文住宅/COCOYUNO(ココユノ)の仕様書と施工事例集
    自由設計「COCOYUNO」の仕様書と施工事例で、自分らしい家づくりのヒントが見つかる
  • イベントに参加する

    大成住宅のイベント画像
    ★SUUMOにて来場予約受付中★【志木・朝霞・和光市エリア】「家づくり」無料相談会受付中!土地探し・資金・ローンについてもお気軽にご相談ください!
    • 設計・資金相談会
    • 新商品情報
    • モデルハウス見学会
    • 土地相談会
    開催日
    火曜日・水曜日を除き、事前予約で随時受付中
    開催場所
    埼玉県新座市東北二丁目24-14 Brillia 志木 Garden 1階

この建築実例の詳細情報

この建築実例を建てた店舗情報

店舗名 川越ハウジングギャラリー
住所 埼玉県川越市広栄町10‐6
問い合わせ
0800-777-1117
  • ※営業時間内の対応となります。

  • ※お問い合わせの際は「SUUMO(スーモ)を見て」とお伝え下さい。

ホームページ この会社のホームページへ

大成住宅のコンテンツ一覧

お問い合わせ

カタログをもらう
施工実例集
大成住宅のカタログ(\大成住宅の注文住宅/COCOYUNO(ココユノ)の仕様書と施工事例集)
\大成住宅の注文住宅/COCOYUNO(ココユノ)の仕様書と施工事例集
問合コード:0798270001
お問い合わせ先
0800-777-1117
  • ※営業時間内の対応となります。

  • ※お問い合わせの際は「SUUMO(スーモ)を見て」とお伝え下さい。

川越ハウジングギャラリー
  • 埼玉県川越市広栄町10‐6

  • 定休日:毎週火曜日・水曜日

この会社のホームページへ

この会社が気になったら

カタログをもらう
施工実例集
大成住宅のカタログ(\大成住宅の注文住宅/COCOYUNO(ココユノ)の仕様書と施工事例集)
\大成住宅の注文住宅/COCOYUNO(ココユノ)の仕様書と施工事例集
問合コード:0798270001

関連キーワード

この建築実例のその他の特徴
ページトップへ戻る