大成住宅

大成住宅

鶴ヶ島、川越、志木に3店舗。土地探しからアフターまでトータルサポート
お気に入りに追加する
埼玉県鶴ヶ島市  Bさん
【3LDK+S/畳コーナー付き/全館空調/間取り図有】セカンドライフを楽しむ土間キッチンのある家
大成住宅 【3LDK+S/畳コーナー付き/全館空調/間取り図有】セカンドライフを楽しむ土間キッチンのある家の建築実例画像1
  • 本体価格
    4,200万円
    84.3万円/坪
  • 延床面積
    164.79m2 (49.8坪)
    敷地面積
    -
    家族構成
    2人暮らし(夫婦)
  • 竣工年月
    2023年1月
    工法
    木造軸組
この会社をもっと知りたくなったら
無料でお届け!まずはカタログ請求

施主Bさんのこだわり

存在感のある化粧梁が魅力の広いリビングと土間キッチンのある家

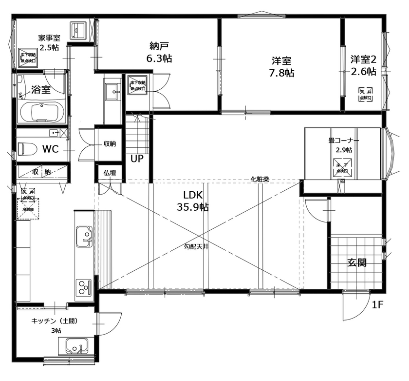
土地選びから、設計施工まで一貫体制で行う安心感と、しっかりと間取りプランのヒアリングをしてくれ、大成住宅さんであれば自分たちの希望をカタチにしてくれると思ったのが選んだ決め手だったというB様邸。普段は夫婦2人暮らしだが、孫が遊びに来た時に思い切り遊べるようにとリビングを35帖にした。この広いリビングは開放的な勾配天井になっていて、そこに張られた化粧梁が一番こだわったポイント。子供の遊び場や寛ぎの場として活用できる畳コーナーを希望通りに造ることができた。注文… 続きを読む

土地選びから、設計施工まで一貫体制で行う安心感と、しっかりと間取りプランのヒアリングをしてくれ、大成住宅さんであれば自分たちの希望をカタチにしてくれると思ったのが選んだ決め手だったというB様邸。普段は夫婦2人暮らしだが、孫が遊びに来た時に思い切り遊べるようにとリビングを35帖にした。この広いリビングは開放的な勾配天井になっていて、そこに張られた化粧梁が一番こだわったポイント。子供の遊び場や寛ぎの場として活用できる畳コーナーを希望通りに造ることができた。注文住宅だからこそ叶えられた釣りが趣味のご主人が室内のキッチンを汚さず魚をさばけるよう設けた専用の土間キッチンに、とても満足している。また、1階は水廻り・リビング・洋室・納戸が繋がっている回遊動線になっている為、生活しやすく家事も捗る。趣味を楽しむ家づくりの提案してくれた営業さんや可能な形で「こうしたい!」を実現してくださった設計士さんのおかげで理想の住まいになりましたと笑顔で語ってくれた。

間取り図(3LDK+S+土間キッチン)

1階
大成住宅 【3LDK+S/畳コーナー付き/全館空調/間取り図有】セカンドライフを楽しむ土間キッチンのある家の間取り図(3LDK+S+土間キッチン)1階
2階
大成住宅 【3LDK+S/畳コーナー付き/全館空調/間取り図有】セカンドライフを楽しむ土間キッチンのある家の間取り図(3LDK+S+土間キッチン)2階
この会社をもっと知りたくなったら
無料でお届け!まずはカタログ請求

内外観ギャラリー

この会社をもっと知りたくなったら
無料でお届け!まずはカタログ請求

この会社の他の建築実例を見る

この建築実例が気になった方へおすすめ

  • この建築実例のカタログをもらう

    大成住宅のカタログ画像
    施工実例集
    \大成住宅の注文住宅/COCOYUNO(ココユノ)の仕様書と施工事例集
    自由設計「COCOYUNO」の仕様書と施工事例で、自分らしい家づくりのヒントが見つかる
  • イベントに参加する

    大成住宅のイベント画像
    ★SUUMOにて来場予約受付中★【志木・朝霞・和光市エリア】「家づくり」無料相談会受付中!土地探し・資金・ローンについてもお気軽にご相談ください!
    • 設計・資金相談会
    • 新商品情報
    • モデルハウス見学会
    • 土地相談会
    開催日
    火曜日・水曜日を除き、事前予約で随時受付中
    開催場所
    埼玉県新座市東北二丁目24-14 Brillia 志木 Garden 1階

この建築実例の詳細情報

この建築実例を建てた店舗情報

店舗名 川越ハウジングギャラリー
住所 埼玉県川越市広栄町10‐6
問い合わせ
0800-777-1117
  • ※営業時間内の対応となります。

  • ※お問い合わせの際は「SUUMO(スーモ)を見て」とお伝え下さい。

ホームページ この会社のホームページへ

大成住宅のコンテンツ一覧

お問い合わせ

カタログをもらう
施工実例集
大成住宅のカタログ(\大成住宅の注文住宅/COCOYUNO(ココユノ)の仕様書と施工事例集)
\大成住宅の注文住宅/COCOYUNO(ココユノ)の仕様書と施工事例集
問合コード:0798270001
お問い合わせ先
0800-777-1117
  • ※営業時間内の対応となります。

  • ※お問い合わせの際は「SUUMO(スーモ)を見て」とお伝え下さい。

川越ハウジングギャラリー
  • 埼玉県川越市広栄町10‐6

  • 定休日:毎週火曜日・水曜日

この会社のホームページへ

この会社が気になったら

カタログをもらう
施工実例集
大成住宅のカタログ(\大成住宅の注文住宅/COCOYUNO(ココユノ)の仕様書と施工事例集)
\大成住宅の注文住宅/COCOYUNO(ココユノ)の仕様書と施工事例集
問合コード:0798270001

関連キーワード

この建築実例のその他の特徴
ページトップへ戻る