ジェネシス

ジェネシス

土地探しから家づくりまでワンストップ対応。リラックスデザイン×高気密・高断熱の家
お気に入りに追加する
東京都世田谷区  Aさん
【UA値0.55/2000万円台/31.4坪】狭小地で設計の工夫が光る。北欧スタイルで統一された心地よいZEH仕様住宅
ジェネシス 【UA値0.55/2000万円台/31.4坪】狭小地で設計の工夫が光る。北欧スタイルで統一された心地よいZEH仕様住宅の建築実例画像1
  • 本体価格
    2,968万円
    94.5万円/坪
  • 延床面積
    103.88m2 (31.4坪)
    敷地面積
    -
    家族構成
    -
  • 竣工年月
    -
    工法
    木造軸組
この会社をもっと知りたくなったら
無料でお届け!まずはカタログ請求

施主Aさんのこだわり

リビングとダイニングからつながるインナーテラスは、庭代わりのプライベート空間

都市部の住宅地に立つAさんの家。狭小の敷地をめいっぱい使い、設計の工夫によって、開放感あふれる住まいとなっている。1階は約20畳のLDKと水回り。吹抜けのリビングは2階へ続くスケルトン階段があり、視界の広がりが感じられる。庭の代わりに設けたインナーテラスは、リビングとダイニングの2方向からつながる。通りに面して壁があるので、プライバシーを守りながらBBQやティータイムなどが楽しめ、家族みんなのお気に入りだ。また、キッチンからパントリー、洗面室と続く回遊動線… 続きを読む

都市部の住宅地に立つAさんの家。狭小の敷地をめいっぱい使い、設計の工夫によって、開放感あふれる住まいとなっている。1階は約20畳のLDKと水回り。吹抜けのリビングは2階へ続くスケルトン階段があり、視界の広がりが感じられる。庭の代わりに設けたインナーテラスは、リビングとダイニングの2方向からつながる。通りに面して壁があるので、プライバシーを守りながらBBQやティータイムなどが楽しめ、家族みんなのお気に入りだ。また、キッチンからパントリー、洗面室と続く回遊動線や各部屋に設けられた豊富な収納で、暮らしやすさも考えられている。内装はナチュラルな北欧スカンジナビアスタイルで、家具はすべて「MOMO Natural」でコーディネート。UA値0.55と性能にもとことんこだわり、高気密・高断熱で、地震に強いスーパーウォール工法を採用。さらに、太陽光発電パネル搭載のオール電化で、エネルギーゼロを目指すZEH仕様住宅となっている。仕切りのない開放的な間取りも、高い断熱性・気密性で、家の隅々まで快適。都市部でプライバシーを守りつつ、のびのび暮らせる心地よい住まいが完成した。

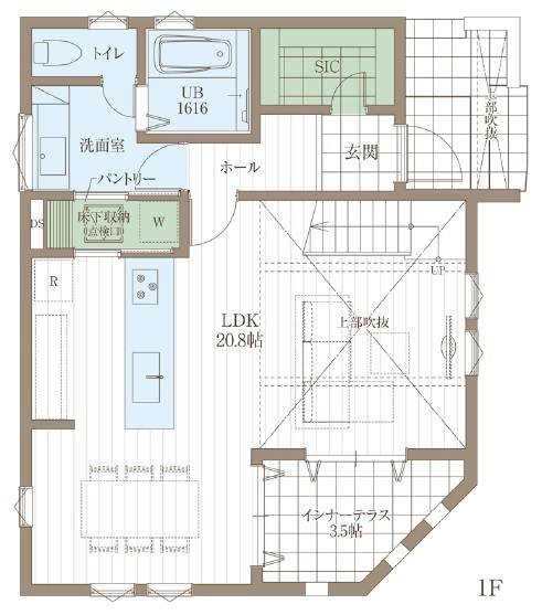
間取り図(3LDK)

1階
ジェネシス 【UA値0.55/2000万円台/31.4坪】狭小地で設計の工夫が光る。北欧スタイルで統一された心地よいZEH仕様住宅の間取り図(3LDK)1階
2階
ジェネシス 【UA値0.55/2000万円台/31.4坪】狭小地で設計の工夫が光る。北欧スタイルで統一された心地よいZEH仕様住宅の間取り図(3LDK)2階
この会社をもっと知りたくなったら
無料でお届け!まずはカタログ請求

内外観ギャラリー

この会社をもっと知りたくなったら
無料でお届け!まずはカタログ請求

この建築実例の担当者

ジェネシスの担当者画像
店長・宅地建物取引士
森邦生
得意分野
土地探しからの家づくり

この会社の他の建築実例を見る

この建築実例が気になった方へおすすめ

  • この建築実例のカタログをもらう

    ジェネシスのカタログ画像
    総合カタログ
    ここちいい家(ジェネシス会社案内)
    会社案内とこだわりの事例紹介、見学会などのイベント案内をセットで送付します。

この建築実例の詳細情報

この建築実例を建てた店舗情報

住所 東京都武蔵野市吉祥寺本町3-9-14
問い合わせ
0422-21-1835
  • ※営業時間内の対応となります。

  • ※お問い合わせの際は「SUUMO(スーモ)を見て」とお伝え下さい。

ホームページ この会社のホームページへ

ジェネシスのコンテンツ一覧

お問い合わせ

カタログをもらう
総合カタログ
ジェネシスのカタログ(ここちいい家(ジェネシス会社案内))
ここちいい家(ジェネシス会社案内)
問合コード:1238060001
お問い合わせ先
0422-21-1835
  • ※営業時間内の対応となります。

  • ※お問い合わせの際は「SUUMO(スーモ)を見て」とお伝え下さい。

  • 東京都武蔵野市吉祥寺本町3-9-14

  • 定休日:毎週水曜

この会社のホームページへ

この会社が気になったら

カタログをもらう
総合カタログ
ジェネシスのカタログ(ここちいい家(ジェネシス会社案内))
ここちいい家(ジェネシス会社案内)
問合コード:1238060001

関連キーワード

この建築実例のその他の特徴
ページトップへ戻る