イシンホーム三郷 松井産業

イシンホーム三郷 松井産業

三郷で昭和34年設立。デザインも性能もよくばる、予算に合わせた納得の家づくり
お気に入りに追加する
埼玉県  Iさん
【1000万円台/30坪台/太陽光発電/南欧風デザイン】こだわりのナチュラルモダンの家は、機能性も抜群!
イシンホーム三郷 松井産業 【1000万円台/30坪台/太陽光発電/南欧風デザイン】こだわりのナチュラルモダンの家は、機能性も抜群!の建築実例画像1
  • 本体価格
    1,400万円
    38.2万円/坪
  • 延床面積
    121.30m2 (36.6坪)
    敷地面積
    108.60m2 (32.8坪)
    家族構成
    父+夫婦+子ども1人
  • 竣工年月
    2019年6月
    工法
    木造軸組
この会社をもっと知りたくなったら
無料でお届け!まずはカタログ請求

施主Iさんのこだわり

デザインと機能性が両立。高い断熱性を備えた住空間は、収納の工夫でスッキリ!

白枠の窓が規則的に並び、淡いベージュの装いを施した外観。南欧風のナチュラルモダンな佇まいを見せるI邸は、デザインはもちろん、収納や家事動線など、家族の暮らしやすさを徹底的に考えた住空間が広がっている。まず、リビングは白を基調に、淡い色合いの床材を採用したモダンデザインで統一。随所にお気に入りの小物を飾ることができる造作棚を設けて、暮らしを楽しく彩る。対面式キッチンは背面に収納を集約することで、カウンターの上には吊戸棚を設けず開放的に。陽射しあふれるリビング… 続きを読む

白枠の窓が規則的に並び、淡いベージュの装いを施した外観。南欧風のナチュラルモダンな佇まいを見せるI邸は、デザインはもちろん、収納や家事動線など、家族の暮らしやすさを徹底的に考えた住空間が広がっている。まず、リビングは白を基調に、淡い色合いの床材を採用したモダンデザインで統一。随所にお気に入りの小物を飾ることができる造作棚を設けて、暮らしを楽しく彩る。対面式キッチンは背面に収納を集約することで、カウンターの上には吊戸棚を設けず開放的に。陽射しあふれるリビングを眺めながら、楽しく料理ができる設計だ。また、小屋裏には大容量の収納スペースを確保。「たくさんの本や季節の家電もしまえるので家の中がスッキリ片付きます」とIさん。小屋裏やロフト付き間取り、ローファーは、窓を設けて、通風・採光にも配慮することで、子どもの遊び場や書斎など、使い方は幅広い。そのほか、玄関のシューズクロークなど、適材適所に収納を計画し、キレイな状態をキープできる。高い断熱性能を誇る住まいは、「1階で暖房を少しつけただけで、家全体が暖かくなります。水まわりまで暖かいのはうれしいですね」。さらに、太陽光発電も搭載し、家計にも環境にもやさしい、30坪 予算1500万円で居心地の良い我が家が完成した。(同社スタッフの住まいです)

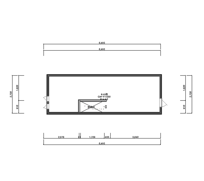
間取り図(5LDK)

1階
イシンホーム三郷 松井産業 【1000万円台/30坪台/太陽光発電/南欧風デザイン】こだわりのナチュラルモダンの家は、機能性も抜群!の間取り図(5LDK)1階
2階
イシンホーム三郷 松井産業 【1000万円台/30坪台/太陽光発電/南欧風デザイン】こだわりのナチュラルモダンの家は、機能性も抜群!の間取り図(5LDK)2階
小屋裏
イシンホーム三郷 松井産業 【1000万円台/30坪台/太陽光発電/南欧風デザイン】こだわりのナチュラルモダンの家は、機能性も抜群!の間取り図(5LDK)小屋裏
この会社をもっと知りたくなったら
無料でお届け!まずはカタログ請求

内外観ギャラリー

この会社をもっと知りたくなったら
無料でお届け!まずはカタログ請求

この会社の他の建築実例を見る

この建築実例が気になった方へおすすめ

この建築実例の詳細情報

この建築実例を建てた店舗情報

店舗名 本店
住所 埼玉県三郷市彦成1-1
問い合わせ
048-957-3211
  • ※営業時間内の対応となります。

  • ※お問い合わせの際は「SUUMO(スーモ)を見て」とお伝え下さい。

ホームページ この会社のホームページへ

イシンホーム三郷 松井産業のコンテンツ一覧

お問い合わせ

カタログをもらう
総合カタログ
イシンホーム三郷 松井産業のカタログ(HEIG自由設計 ゼロエネ6点セット 作品と実例辞典)
HEIG自由設計 ゼロエネ6点セット 作品と実例辞典
問合コード:0016370002
お問い合わせ先
048-957-3211
  • ※営業時間内の対応となります。

  • ※お問い合わせの際は「SUUMO(スーモ)を見て」とお伝え下さい。

本店
  • 埼玉県三郷市彦成1-1

  • 定休日:水曜日

この会社のホームページへ

この会社が気になったら

カタログをもらう
総合カタログ
イシンホーム三郷 松井産業のカタログ(HEIG自由設計 ゼロエネ6点セット 作品と実例辞典)
HEIG自由設計 ゼロエネ6点セット 作品と実例辞典
問合コード:0016370002

関連キーワード

この建築実例のその他の特徴
ページトップへ戻る