野村工務店

野村工務店

自然との調和 家族の笑顔にあふれ、お子様が住み続けたいと思える住まいを提供したい
お気に入りに追加する
平屋風の風格ある外観と、ワンフロア完結の間取り。プライベート感のある大空間LDK
  • 本体価格
    2,371万円
    75.5万円/坪
  • 延床面積
    103.87m2 (31.4坪)
    敷地面積
    187.03m2 (56.5坪)
    家族構成
    -
    竣工年月
    2022年4月
    工法
    2×4、2×6
  • 特徴
    耐震・免震・制震  |  2階建て  |  収納充実  |  家事がラク  |  シンプルモダン  |  こだわりの外観デザイン  |  通風・採光  |  …
この会社をもっと知りたくなったら
無料でお届け!まずはカタログ請求

施主のこだわり

道路に向けて屋根に勾配を付け、空が広く感じられる開放的な設計に

大きな窓や広い空間で開放的な暮らしがしたいという願いと、外部から見られることなくプライベートを大切にしたいという願いが両立できる設計が特長。LDKは勾配天井の吹抜けを通して2階まで一体に。南面の道路側からはゲートガレージが目隠しとなり、大開口でつながるアウトリビングデッキにはフェンスも設置。周囲の視線を気にせず窓やカーテンを開けてくつろいで過ごすことができる。床から天井の高さまで設けた南向きの開口部は、自然光をたっぷりと取り込み、LDKや2階ホールまで明る… 続きを読む

大きな窓や広い空間で開放的な暮らしがしたいという願いと、外部から見られることなくプライベートを大切にしたいという願いが両立できる設計が特長。LDKは勾配天井の吹抜けを通して2階まで一体に。南面の道路側からはゲートガレージが目隠しとなり、大開口でつながるアウトリビングデッキにはフェンスも設置。周囲の視線を気にせず窓やカーテンを開けてくつろいで過ごすことができる。床から天井の高さまで設けた南向きの開口部は、自然光をたっぷりと取り込み、LDKや2階ホールまで明るく照らす。また、上下階に連なる窓を同時に開けば、高低差により風の流れが生まれ、換気もしやすい。玄関からキッチン、洗面室、脱衣室まで一直線の動線は家事がしやすく、1階に寝室を設けているので将来的にワンフロアで生活を完結することも。色味を抑えたインテリアもスタイリッシュに仕上がっている。

間取り図(3LDK+デッキ)

1階
野村工務店 平屋風の風格ある外観と、ワンフロア完結の間取り。プライベート感のある大空間LDKの間取り図(3LDK+デッキ)1階

玄関とLDKは上部を吹抜けに。勾配天井の開放的な空間が広がる。どの角度から見ても美しいスケルトン階段はインテリアのアクセントにも。フラットにつながるアウトリビングはウッドフェンスを設け、外部からの視線を気にすることなく過ごせる。オープンな空間設計は移動もしやすい。1階にはLDKと水まわり、そして主寝… 続きを読む

玄関とLDKは上部を吹抜けに。勾配天井の開放的な空間が広がる。どの角度から見ても美しいスケルトン階段はインテリアのアクセントにも。フラットにつながるアウトリビングはウッドフェンスを設け、外部からの視線を気にすることなく過ごせる。オープンな空間設計は移動もしやすい。1階にはLDKと水まわり、そして主寝室も設け、将来的には1階だけで基本的な生活が完結する。

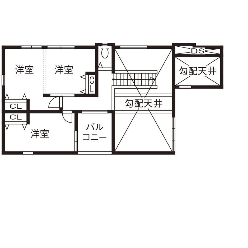
2階
野村工務店 平屋風の風格ある外観と、ワンフロア完結の間取り。プライベート感のある大空間LDKの間取り図(3LDK+デッキ)2階

吹抜けに面した2階廊下はとても明るい空間。奥まってつくられたバルコニーは風雨を避けやすく、道路側からも洗濯物が見えにくい。窓・扉・クローゼットの配置を考慮し、将来、間仕切りを加えれば2室に分けられる洋室も用意した。

吹抜けに面した2階廊下はとても明るい空間。奥まってつくられたバルコニーは風雨を避けやすく、道路側からも洗濯物が見えにくい。窓・扉・クローゼットの配置を考慮し、将来、間仕切りを加えれば2室に分けられる洋室も用意した。

この会社をもっと知りたくなったら
無料でお届け!まずはカタログ請求

内外観ギャラリー

この会社をもっと知りたくなったら
無料でお届け!まずはカタログ請求

この建築実例の担当者より

高天井の大空間が贅沢な開放感を味わえます

平屋風の外観は、風格を大切にデザインしました。住まいを印象付ける石貼りのゲートガレージによって、外部からの視線をゆるやかに遮ります。中はプライベート感を大切にした大空間が広がり、「隠す」と「魅せる」を両立させました。LDKとフラットにつながるアウトリビングデッキは、太陽の下でくつろぎのひと時を過ごしていただけます。上下階に広がる南面の窓からの光、窓の高低差が促す風通しなど、光と風の動線も考慮しています。1階のリビング奥に主寝室を設け、将来的にワンフロアで暮… 続きを読む

平屋風の外観は、風格を大切にデザインしました。住まいを印象付ける石貼りのゲートガレージによって、外部からの視線をゆるやかに遮ります。中はプライベート感を大切にした大空間が広がり、「隠す」と「魅せる」を両立させました。LDKとフラットにつながるアウトリビングデッキは、太陽の下でくつろぎのひと時を過ごしていただけます。上下階に広がる南面の窓からの光、窓の高低差が促す風通しなど、光と風の動線も考慮しています。1階のリビング奥に主寝室を設け、将来的にワンフロアで暮らしが完結することも想定しました。今も将来も、快適に暮らしていただけると嬉しいです。

企画設計部
八木 崇

この会社の他の建築実例を見る

この建築実例が気になった方へおすすめ

  • この建築実例のカタログをもらう

    野村工務店のカタログ画像
    プラン集
    NOMURAの注文住宅
    多彩な内観・外観・外構デザイン、こだわりの間取りを施工事例からご紹介。
  • モデルハウスを見学する

    野村工務店のモデルハウス画像1
    野村工務店のモデルハウス画像2
    • 延床面積
      101.20m230.6坪)
    • 所在地
      大阪府交野市森北2-12-19
    • 営業時間
      9:00~17:00(定休日以外は当日予約OK)(定休日:火水定休。問合せは年末年始・お盆除く無休)
    • ナチュラル
    • 高性能
    • 趣味
    • 外と繋がる
  • イベントに参加する

    野村工務店のイベント画像
    交野市星田で開催!【完全個別家づくり相談会】土地がある方もない方も\自社分譲地も紹介可!各モデルハウスでの実施も可/!※完全予約制 
    • 設計・資金相談会
    • モデルハウス見学会
    • 土地相談会
    開催日
    随時開催 火水定休。問合せは年末年始・お盆除く無休(定休日以外は当日予約OK)
    開催場所
    大阪府交野市星田6丁目1-20ー1フラット星田 2F
    参加特典
    SUUMOを見て、ご来場いただいた方にギフトカード5000円相当分プレゼントのチャンス!(毎月先着450名)

この建築実例の詳細情報

この建築実例を建てた店舗情報

住所 大阪府交野市星田6丁目1番20-1号 フラット星田2F
問い合わせ
0120-62-5588
  • ※営業時間内の対応となります。

  • ※お問い合わせの際は「SUUMO(スーモ)を見て」とお伝え下さい。

ホームページ この会社のホームページへ

野村工務店のコンテンツ一覧

お問い合わせ

カタログをもらう
プラン集
野村工務店のカタログ(NOMURAの注文住宅)
NOMURAの注文住宅
問合コード:0652900003
お問い合わせ先
0120-62-5588
  • ※営業時間内の対応となります。

  • ※お問い合わせの際は「SUUMO(スーモ)を見て」とお伝え下さい。

  • 大阪府交野市星田6丁目1番20-1号 フラット星田2F

  • 定休日:夏季・冬季休暇

この会社のホームページへ

この会社が気になったら

カタログをもらう
プラン集
野村工務店のカタログ(NOMURAの注文住宅)
NOMURAの注文住宅
問合コード:0652900003

関連キーワード

ページトップへ戻る