クオリティハウス/新潟材協

クオリティハウス/新潟材協

住宅資材のプロだからこそ叶う、上質な家づくり。憧れを、オーダーメイドでカタチに
お気に入りに追加する
新潟県  Yさん
木の温もりを感じる、北欧ナチュラルな家
クオリティハウス/新潟材協 木の温もりを感じる、北欧ナチュラルな家の建築実例画像1
  • 本体価格
    1,500万円1,999万円
    61.2万円81.5万円/坪
  • 延床面積
    81.14m2 (24.5坪)
    敷地面積
    88.76m2 (26.8坪)
    家族構成
    夫婦
  • 竣工年月
    2020年5月
    工法
    木造軸組
この会社をもっと知りたくなったら
無料でお届け!まずはカタログ請求

施主Yさんのこだわり

工夫した間取りとこだわりのインテリアで暮らしやすい住まい

狭小地の為、間取りに工夫をこらしたYさん邸は、生活のほとんどを2階で過ごす設計。天井と同じ高さにつけた窓などは、大きさや取付位置を考え、1階2階共に光と風がたっぷりと入る。全体を白でまとめた空間は、木の質感や淡い色合いがアクセントとなり、北欧ナチュラルなやさしい雰囲気をつくっている。ニッチや造り付の棚もポイントのひとつ。また、家で過ごす時間が楽しくなるような可愛らしいインテリアたち。約24.5坪のコンパクトでありながら敷地やライフスタイルに合った、暮らしや… 続きを読む

狭小地の為、間取りに工夫をこらしたYさん邸は、生活のほとんどを2階で過ごす設計。天井と同じ高さにつけた窓などは、大きさや取付位置を考え、1階2階共に光と風がたっぷりと入る。全体を白でまとめた空間は、木の質感や淡い色合いがアクセントとなり、北欧ナチュラルなやさしい雰囲気をつくっている。ニッチや造り付の棚もポイントのひとつ。また、家で過ごす時間が楽しくなるような可愛らしいインテリアたち。約24.5坪のコンパクトでありながら敷地やライフスタイルに合った、暮らしやすい住まいが完成した

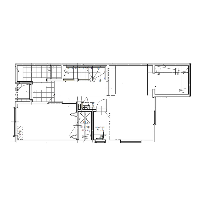
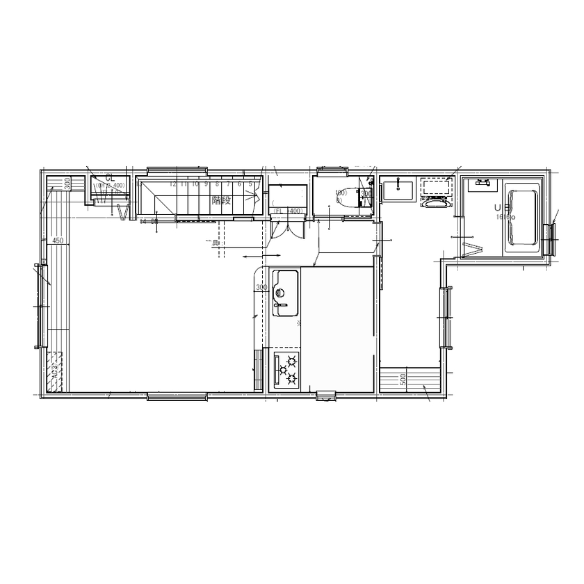
間取り図(2LDK)

1階
クオリティハウス/新潟材協 木の温もりを感じる、北欧ナチュラルな家の間取り図(2LDK)1階
2階
クオリティハウス/新潟材協 木の温もりを感じる、北欧ナチュラルな家の間取り図(2LDK)2階
この会社をもっと知りたくなったら
無料でお届け!まずはカタログ請求

内外観ギャラリー

この会社をもっと知りたくなったら
無料でお届け!まずはカタログ請求

この会社の他の建築実例を見る

この建築実例が気になった方へおすすめ

この建築実例の詳細情報

この建築実例を建てた店舗情報

住所 新潟県新潟市中央区近江2丁目11-17
問い合わせ
025-285-0084
  • ※営業時間内の対応となります。

  • ※お問い合わせの際は「SUUMO(スーモ)を見て」とお伝え下さい。

ホームページ この会社のホームページへ

クオリティハウス/新潟材協のコンテンツ一覧

お問い合わせ

カタログをもらう
総合カタログ
クオリティハウス/新潟材協のカタログ(クオリティハウス家づくりカタログ「資材のプロだから、できること。」)
クオリティハウス家づくりカタログ「資材のプロだから、できること。」
問合コード:1242090001
お問い合わせ先
025-285-0084
  • ※営業時間内の対応となります。

  • ※お問い合わせの際は「SUUMO(スーモ)を見て」とお伝え下さい。

  • 新潟県新潟市中央区近江2丁目11-17

  • 定休日:水曜日

この会社のホームページへ

この会社が気になったら

カタログをもらう
総合カタログ
クオリティハウス/新潟材協のカタログ(クオリティハウス家づくりカタログ「資材のプロだから、できること。」)
クオリティハウス家づくりカタログ「資材のプロだから、できること。」
問合コード:1242090001

関連キーワード

この建築実例のその他の特徴
ページトップへ戻る