厳しい冬を快適に、健やかに過ごせる家づくりを目指していたOさん。注目したのは『高気密高断熱住宅』として定評のあるアサヒアレックスだった。同社のモデルハウスを訪れ、住宅性能の高さを体感。こんなワンランク上の快適さに包まれて暮らす家族のイメージが膨らみ、建築依頼を即断したそうだ。そんなOさんの願いを実現するために、同社が得意とする『W断熱工法』で、高い気密性と断熱性を実現した。完成後の実測値によると、C値0.25、UA値0.29といずれも高レベル(自社調べ)。… 続きを読む
厳しい冬を快適に、健やかに過ごせる家づくりを目指していたOさん。注目したのは『高気密高断熱住宅』として定評のあるアサヒアレックスだった。同社のモデルハウスを訪れ、住宅性能の高さを体感。こんなワンランク上の快適さに包まれて暮らす家族のイメージが膨らみ、建築依頼を即断したそうだ。そんなOさんの願いを実現するために、同社が得意とする『W断熱工法』で、高い気密性と断熱性を実現した。完成後の実測値によると、C値0.25、UA値0.29といずれも高レベル(自社調べ)。これは次世代省エネ基準の北海道基準を余裕でクリアするほどの性能である。この空間を床下に設置された一台のエアコンだけで、一年中快適に保つ省エネ性能も魅力だったとOさんは語る。「この家で一冬を過ごして、アサヒアレックスさんの技術力の高さを実感しています。冬の朝、布団から出られない…といったこともなくなりました」と笑う。「建てるなら、本物の自然素材で建てたい!」という要望にも、同社は積極的な提案を行っている。外壁を飾る屋久杉の無垢材、リビングの天井に採用されたレッドシダーの格子、さらにリビングの壁面は、砂岩を主原料とした塗壁材で化粧されている。こうした素材のシンフォニーが生み出す上質な空間で、Oさん家族は静かに流れる時を楽しんでいる。
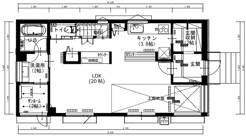
一部が吹抜けとなった20帖大のLDKの一角には、室内箱庭も設置されている。水廻りは西側に集中。洗面所に隣接したサンルームのおかげで、洗濯にかかる時間も大幅に短縮できて感謝している。玄関~玄関収納~キッチンと回遊できる動線は、お出かけや帰宅の際の動きをスムーズにしてくれる
一部が吹抜けとなった20帖大のLDKの一角には、室内箱庭も設置されている。水廻りは西側に集中。洗面所に隣接したサンルームのおかげで、洗濯にかかる時間も大幅に短縮できて感謝している。玄関~玄関収納~キッチンと回遊できる動線は、お出かけや帰宅の際の動きをスムーズにしてくれる
主寝室、洋室2と階下とは、吹抜けに設けられた室内窓でつながっている。北側に位置する主寝室も、南側に設けられた大きな窓から吹抜けを通して、自然光がたっぷりと注ぎ込む。各居室の収納力も充分に確保されている
主寝室、洋室2と階下とは、吹抜けに設けられた室内窓でつながっている。北側に位置する主寝室も、南側に設けられた大きな窓から吹抜けを通して、自然光がたっぷりと注ぎ込む。各居室の収納力も充分に確保されている
冬は、南に面した大きな開口部から射し込む太陽光が室内をやさしく温め、夏は、大きな庇が日差しを防ぐ。同社の住まい… 続きを読む
冬は、南に面した大きな開口部から射し込む太陽光が室内をやさしく温め、夏は、大きな庇が日差しを防ぐ。同社の住まいには、暮らしの中に自然のチカラを上手に取り入れる「パッシブデザイン」の設計思想が取り入れられている
LDKの一角に設けられた箱庭には、「シマトネリコ」が植えられている。遊び心にあふれた提案だ。このシンボルツリー… 続きを読む
LDKの一角に設けられた箱庭には、「シマトネリコ」が植えられている。遊び心にあふれた提案だ。このシンボルツリーが、家族の歴史とともに成長を続けていく
Oさんがアサヒアレックスの家にはじめてふれたのは、モデルハウスである。季節は年末。氷点下の屋外からドアを開け一歩足を踏み入れると、季節をひとつ通り過ぎた、まるで春のような快適な空間が広がっていた。同社のW断熱工法、トリプルガラスサッシ、そして床下エアコンを組み合わせた全館空調システムによって、一年中快適な室温で、しかも廊下や脱衣室をふくめた各部屋の温度差が極めて少ない、理想的な温熱環境が実現されていたのだ。「寒さがもっとも厳しい季節に、住宅性能を実感できた… 続きを読む
Oさんがアサヒアレックスの家にはじめてふれたのは、モデルハウスである。季節は年末。氷点下の屋外からドアを開け一歩足を踏み入れると、季節をひとつ通り過ぎた、まるで春のような快適な空間が広がっていた。同社のW断熱工法、トリプルガラスサッシ、そして床下エアコンを組み合わせた全館空調システムによって、一年中快適な室温で、しかも廊下や脱衣室をふくめた各部屋の温度差が極めて少ない、理想的な温熱環境が実現されていたのだ。「寒さがもっとも厳しい季節に、住宅性能を実感できたことが大きかったです。足元から温かいワンランク上の全館空調に包まれて、家族みんなで健やかに暮らしたいと考えたのが、同社を選んだ理由のひとつです」と語ってくれた。もうひとつOさんは、デザイン性の高さにも注目した。自然素材を模した建材も増えてきた中、同社の「木・石・土」などをはじめとした自然素材へのこだわりは深い。長年蓄積してきた設計のノウハウによって、ムダな建築コストをできるだけ省き、節約したコストは外装や内装の素材に注ぎ込まれる。こうして丁寧に建てられた空間に身を置けば、質感や空気感の違いを実感できる。住むほどに愛着が深まっていく。そんな家づくりに期待して、Oさんは同社を選んだという。
凹凸のないキューブ状の外観に片流れの屋根と、O様邸の外観はとてもシンプルです。じつはこれには3つの狙いがあります。そのひとつが、断熱性能に関すること。家の表面積は、断熱性能を左右する大きな要因です。表面の形状が複雑で面積が広いほど、室内の熱が外に逃げたり、外気の熱が室内に侵入しやすくなります。こうした意味でシンプルなO様邸は、断熱効率の高い形状なのです。ふたつ目は耐震性能です。当社では木造建築では義務化されていない構造計算を、一邸一邸実現しています。この構… 続きを読む
凹凸のないキューブ状の外観に片流れの屋根と、O様邸の外観はとてもシンプルです。じつはこれには3つの狙いがあります。そのひとつが、断熱性能に関すること。家の表面積は、断熱性能を左右する大きな要因です。表面の形状が複雑で面積が広いほど、室内の熱が外に逃げたり、外気の熱が室内に侵入しやすくなります。こうした意味でシンプルなO様邸は、断熱効率の高い形状なのです。ふたつ目は耐震性能です。当社では木造建築では義務化されていない構造計算を、一邸一邸実現しています。この構造計算上でもシンプルな形状のO邸は、地震に強いという大きなメリットを持っています。このメリットを最大限に活かして、O様邸では「耐震等級3」を実現しました。そして最後に、コストの問題。通常住宅の外観が複雑になればなるほど、構造材や内装材のコストは嵩んでいきます。その点O様邸は、必要最低限のコストで実現できる住まいなのです。O様邸に多用されている、木目の美しい無垢材をはじめとした自然素材の導入費用には、ここで節約されたコストが充てられました。こうしたメリハリのあるご提案は、わたしたちアサヒアレックスがもっとも得意とするところです。「素材にはこだわりたい、でも予算が…」というお客様は、ぜひ一度ご相談ください。
| 商品名 | - |
| 部材・設備 | - |
| 商品名 | - |
| 部材・設備 | - |
| 延床面積 | 108.46m2 (32.8坪) |
| 敷地面積 | 210.00m2 (63.5坪) |
| 工法 | 木造軸組 |
| 本体価格 | 2,950万円 |
| 竣工年月 | 2022年4月 |
| 住所 | 宮城県仙台市太白区長町南4-11-18 2F |
| 問い合わせ | |
| ホームページ | この会社のホームページへ |
※営業時間内の対応となります。
※お問い合わせの際は「SUUMO(スーモ)を見て」とお伝え下さい。
宮城県仙台市太白区長町南4-11-18 2F
定休日:火・水曜日
断熱性能、耐震性能、そしてコスト面を考慮して、キューブ型の外観に片流れの屋根というシンプルな形状を選んだO邸。道路に面した部分の壁は、油分の多い屋久杉の無垢材で化粧されている。縦格子を採用したのは、雨の後の水はけへの配慮。シンプルな外観に和モダンのテイストを取り入れた、飽きのこないデザイン性の高さはさすがだ
天井に渡された無垢材の格子によって、和テイストの落ち着いた空間に仕上がっている。天井、床ともにレッドシダーを採用。その木目は、年月とともに美しさを増していく
リビングルーム壁面のテレビ台は、砂岩を主原料とした塗壁材で造作されたもの。コンクリートのような質感が、ナチュラルな空間にアクセントを与えている。様々なマテリアルの組合せで空間を演出していく、デザイン力にも定評がある
建物南面には大きな開口が設けられた。吹抜けの上部にある2つのフィックス窓から、自然光がたっぷりと注ぎ込んでくる。駐車場も3台分、しっかりと確保されている
冬は、南に面した大きな開口部から射し込む太陽光が室内をやさしく温め、夏は、大きな庇が日差しを防ぐ。同社の住まいには、暮らしの中に自然のチカラを上手に取り入れる「パッシブデザイン」の設計思想が取り入れられている
LDKの一角に設けられた箱庭には、「シマトネリコ」が植えられている。遊び心にあふれた提案だ。このシンボルツリーが、家族の歴史とともに成長を続けていく
キッチンとダイニングとを分ける造作カウンター。前面はマガジンラックとして、背面は食器棚として使用できる。アイデアにあふれた造作家具の提案も、同社の選ばれる理由のひとつだ
グレーのグラデーションを基調にしたシンプルな色づかいで、統一感のある落ち着いた雰囲気に仕上がったキッチン。写真奧のハイドアの向こうには、玄関収納~玄関という回遊動線がつながっている
前面の窓からの明かりが手元を照らすキッチン。施主の要望によって、飾り棚をはじめとした造作物の位置や大きさも自由自在。大ぶりなタイルで、スタイリッシュな空間に
リビングに造作された壁面の裏も、収納として活用されている。下部の扉を開けると、全館空調のエアコンにアクセスできる。フィルター交換をはじめとしたメンテナンスのし易さにも、配慮された設計だ
玄関収納スペース。キッチンにも近いのでパントリーとして、家族みんなの履き物を収納するシューズクロークとして、また、子どもの外遊びやアウトドアグッズの収納として、様々な応用が可能な格好の位置にある
玄関収納とは別に、普段履きを手軽に収納できるシューズボックスも造作されている。間接照明も設置された、浮遊感のある空間演出が心憎い
玄関からLDKへ。垂れ壁による余分なラインをデザイン上のノイズと考える同社では、出入り口を天井まで続くハイドアで統一することを提唱している。O邸の出入り口もすべてこのプランで設計された。視覚的に空間を広く見せる効果も大きい
2階へのアプローチ部分の天井も、無垢材の格子で統一。こうした細部へのこだわりの積み重ねが、家全体の質感を高めている
ウールの絨毯が敷き詰められた主寝室。自然素材ならではの、柔らかい足ざわりが心地よい。造作された障子室内窓の向こうは吹抜け。射し込む日差しも明るい
2階トイレの手洗いスペース。大きな洗面ボウルも使いやすく、窓からの外光も明るい
子ども部屋(洋室2)の室内窓から見下ろすLDK。開口部の大きさがよくわかる。サッシはすべてトリプルガラスサッシが採用されている
洗練された照明計画にも定評のあるアサヒアレックス。O邸にも、その演出力が発揮されている。リビングの格子天井に深い陰影を与えている間接照明
箱庭に植栽されたシンボルツリーの存在感が浮き立つ、夜のLDK照明
ライトアップされた光と影が、縦格子の和テイストをさらに際立たせる夜の外観。玄関アプローチのデザインも秀逸