「雨にぬれずに車の乗り降りができるインナーガレージは絶対につくろうと思っていました」と話すH夫妻。「そのため、外観はガレージが設計しやすい緩い片流れのスクエアスタイルで、外壁は塗りでと具体的な構想を練りました。あとは自分たちの予算内でできるかどうかが問題だったのですが、サティスホームさんとの出会いでそれもクリア。本当によかったです」と満足そう。ベースになる間取りも自分たちで考えたそうで、明るく伸びやかな吹き抜けリビングを中心に、妻の書斎を兼ねた趣味室を用意… 続きを読む
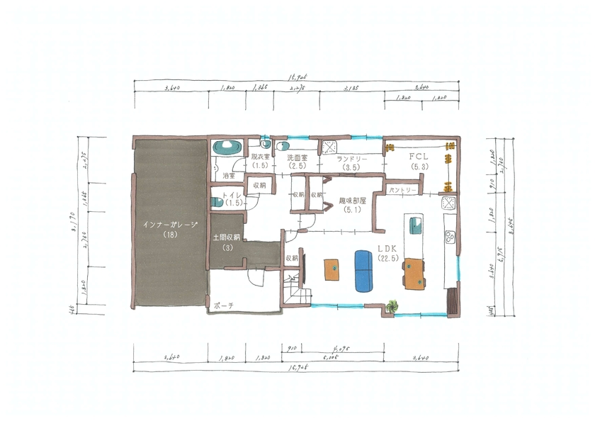
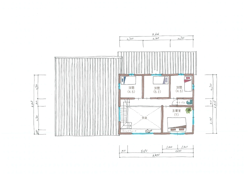
「雨にぬれずに車の乗り降りができるインナーガレージは絶対につくろうと思っていました」と話すH夫妻。「そのため、外観はガレージが設計しやすい緩い片流れのスクエアスタイルで、外壁は塗りでと具体的な構想を練りました。あとは自分たちの予算内でできるかどうかが問題だったのですが、サティスホームさんとの出会いでそれもクリア。本当によかったです」と満足そう。ベースになる間取りも自分たちで考えたそうで、明るく伸びやかな吹き抜けリビングを中心に、妻の書斎を兼ねた趣味室を用意したり、憧れたアイランド型のキッチンや家事動線上に大きなファミリークロゼットをレイアウトしたりと機能性も追求。「一番意識したのは1階だけで日常生活が完結し、2階は寝るためだけに使う、そんな合理性です」とHさん。その2階へはテレビの背面壁を回り込んで上がる仕掛けになっていて、キッチンからも確認できるため「おはよう」や「おやすみ」が自然に言えるそう。また、来客をお通しすることが多いという妻Hさんの趣味室が玄関ホールからスムーズにアクセスできる位置にあり、使わない時はリビングとも一体になる工夫も秀逸。暮らしを重ねるほどこの家の快適性が実感できると話してくれた。
| 商品名 | - |
| 部材・設備 | - |
| 商品名 | - |
| 部材・設備 | - |
| 延床面積 | 134.35m2 (40.6坪) |
| 敷地面積 | 469.46m2 (142.0坪) |
| 工法 | 木造軸組 |
| 本体価格 | 2,500万円~2,999万円 |
| 竣工年月 | 2022年8月 |
| 店舗名 | 四日市本社 |
| 住所 | 三重県四日市市石塚町8-24 |
| 問い合わせ | |
| ホームページ | この会社のホームページへ |