サティスホーム

サティスホーム

自由設計・完全注文住宅で価格明解
お気に入りに追加する
三重県四日市市  Nさん
【四日市/インナーガレージ/間取り図有】仕事着でも気兼ねなく使える家族用玄関と動線のある家
サティスホーム 【四日市/インナーガレージ/間取り図有】仕事着でも気兼ねなく使える家族用玄関と動線のある家の建築実例画像1
  • 本体価格
    2,100万円
    43.5万円/坪
  • 延床面積
    159.81m2 (48.3坪)
    敷地面積
    335.38m2 (101.4坪)
    家族構成
    夫婦+子ども2人
  • 竣工年月
    2018年8月
    工法
    木造軸組
この会社をもっと知りたくなったら
無料でお届け!まずはカタログ請求

施主Nさんのこだわり

見学会で感動!建築関連の仕事を持つ施主が認めた高いコストパフォーマンス

サティスホームを施工会社に選んだ理由について、担当スタッフとのコミュニケーションのしやすさはもちろん、会社全体として自分たちに寄り添ってくれる雰囲気をどこよりも強く感じたこと、と話してくれたのがN邸の施主の夫妻だ。二人は子どもたちが大きくなってしまう前にマイホームの夢を叶えようと家づくりを決心し、子育て環境を考慮して土地入手。同時に施工会社を検討したわけだが、そもそも夫のNさんのお仕事は建築関連。仕事がら同社の評判のよさが伝わってきていたそうだ。実際に相談… 続きを読む

サティスホームを施工会社に選んだ理由について、担当スタッフとのコミュニケーションのしやすさはもちろん、会社全体として自分たちに寄り添ってくれる雰囲気をどこよりも強く感じたこと、と話してくれたのがN邸の施主の夫妻だ。二人は子どもたちが大きくなってしまう前にマイホームの夢を叶えようと家づくりを決心し、子育て環境を考慮して土地入手。同時に施工会社を検討したわけだが、そもそも夫のNさんのお仕事は建築関連。仕事がら同社の評判のよさが伝わってきていたそうだ。実際に相談するとどこよりもフレンドリーな雰囲気で対応してくれたことに一気に魅了されたという。「毎月、実例見学会があるのですが、どの家を見てもお施主様家族の個性がきちんと反映され、仕上がりのよさが確認できました」とN夫妻。また、見学会を通じて、OB家族からも信頼されていることが分かり同社がパートナーなら安心だと感じたそう。さて、そんな二人が完成させた家には、夫の仕事や趣味に役立つ工房を兼ねたインナーガレージがあり、来客用とは分離した仕事着でも気兼ねなく使える家族用の玄関や動線も用意。もちろん、家族全員が伸び伸び過ごせる広さ、天井まで届くハイセンスな引き戸を採用したインテリアなど、理想通りのマイホームができたと目を輝かせて話してくれた。

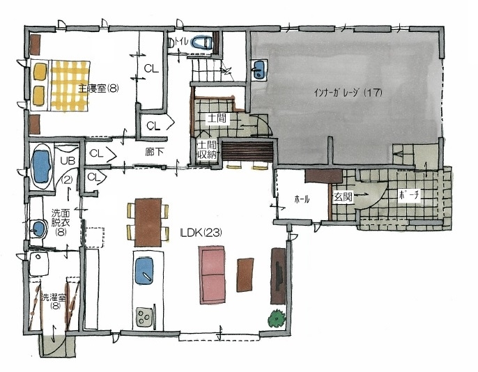
間取り図(4LDK)

1階
サティスホーム 【四日市/インナーガレージ/間取り図有】仕事着でも気兼ねなく使える家族用玄関と動線のある家の間取り図(4LDK)1階
2階
サティスホーム 【四日市/インナーガレージ/間取り図有】仕事着でも気兼ねなく使える家族用玄関と動線のある家の間取り図(4LDK)2階
この会社をもっと知りたくなったら
無料でお届け!まずはカタログ請求

内外観ギャラリー

この会社をもっと知りたくなったら
無料でお届け!まずはカタログ請求

この会社の他の建築実例を見る

この建築実例が気になった方へおすすめ

  • この建築実例のカタログをもらう

    サティスホームのカタログ画像
    ノウハウ
    サティスホーム 安くていい家。
    サティスホームの家づくりが分かるカタログです
  • イベントに参加する

    サティスホームのイベント画像
    【サティスホームの見学会|完全予約制】三重県内にて見学会を開催!ぜひご家族でお越しください
    • キャンペーン情報
    • 設計・資金相談会
    • 完成見学会
    • 入居者宅見学会
    • 土地相談会
    • その他イベント
    開催日
    随時開催!詳細はお問合せください。
    開催場所
    お問合せください
    参加特典
    ご予約の上、ご来場の方に「ギフトカード」をプレゼント!
    お子様にお菓子の詰め合わせプレゼント!

この建築実例の詳細情報

この建築実例を建てた店舗情報

店舗名 四日市本社
住所 三重県四日市市石塚町8-24
問い合わせ
059-351-1376
  • ※営業時間内の対応となります。

  • ※お問い合わせの際は「SUUMO(スーモ)を見て」とお伝え下さい。

ホームページ この会社のホームページへ

サティスホームのコンテンツ一覧

お問い合わせ

カタログをもらう
ノウハウ
サティスホームのカタログ(サティスホーム 安くていい家。)
サティスホーム 安くていい家。
問合コード:1303140007

この会社が気になったら

カタログをもらう
ノウハウ
サティスホームのカタログ(サティスホーム 安くていい家。)
サティスホーム 安くていい家。
問合コード:1303140007

関連キーワード

この建築実例のその他の特徴
ページトップへ戻る