カステルホーム

カステルホーム

予算で諦めない家づくり。デザインと品質を兼ね備えた住まいを
お気に入りに追加する
滋賀県長浜市  Kさん
【回遊動線×子育てしやすい】回遊動線と家族が快適に暮らせる家
  • 本体価格
    2,159万円
    57.5万円/坪
  • 延床面積
    124.20m2 (37.5坪)
    敷地面積
    204.52m2 (61.8坪)
    家族構成
    夫婦+子ども2人
    竣工年月
    2024年9月
    工法
    その他(独自認定工法等)(木造軸組モノコック工法)
  • 特徴
    2階建て  |  収納充実  |  家事がラク  |  高気密・高断熱  |  シンプルモダン  |  子育てしやすい  |  料理を楽しむ  |  …
この会社をもっと知りたくなったら
無料でお届け!まずはカタログ請求

施主Kさんのこだわり

暮らしやすさと温もりを両立した、こだわりの住まい

毎日の暮らしやすさを考え、家の中をスムーズに移動できる回遊動線を採用。無駄な動きを減らし、どこにいても快適に過ごせるよう工夫されている。キッチン周りは広く確保し、料理のしやすさはもちろん、家族が自然に集まれる空間に。またKさんのお気に入りのお酒を飾れるニッチを設け、インテリアの一部として楽しめるように。デザインと色合いをこだわられたKさん。グレーを基調とした統一感のある落ち着いた雰囲気に仕上げている。シンプルながらも洗練された印象を与え、どの空間にいても心… 続きを読む

毎日の暮らしやすさを考え、家の中をスムーズに移動できる回遊動線を採用。無駄な動きを減らし、どこにいても快適に過ごせるよう工夫されている。キッチン周りは広く確保し、料理のしやすさはもちろん、家族が自然に集まれる空間に。またKさんのお気に入りのお酒を飾れるニッチを設け、インテリアの一部として楽しめるように。デザインと色合いをこだわられたKさん。グレーを基調とした統一感のある落ち着いた雰囲気に仕上げている。シンプルながらも洗練された印象を与え、どの空間にいても心地よく感じられるよう配慮している。床は無垢のパイン材を採用。大きな掃き出し窓からたっぷり光が差し込み、より一層温かみを感じられる空間となっている。家全体の環境にも配慮し、どこにいても気温差を感じにくい快適な空間を実現。「冬でも気温差がなく、快適に過ごせています。」とKさん。季節を問わず心地よく過ごせる、こだわりの詰まった住まいである。

間取り図(4LDK+書斎+SIC+WIC)

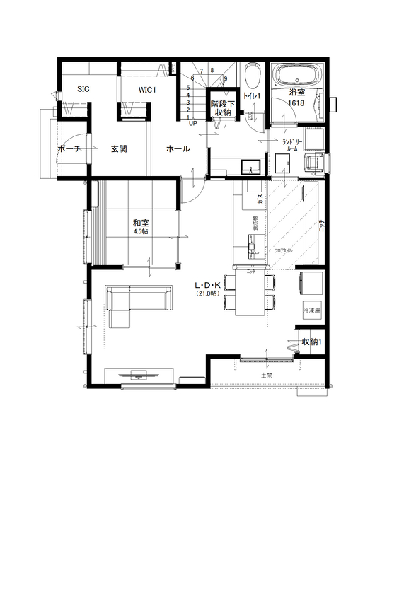
1階
カステルホーム 【回遊動線×子育てしやすい】回遊動線と家族が快適に暮らせる家の間取り図(4LDK+書斎+SIC+WIC)1階

玄関は2wayで、シューズクロークとウォークインクローゼットを設置し、収納スペースも充実。水回りは回遊動線を採用し、玄関から洗面、脱衣室、キッチンへとスムーズに移動でき、家事の効率もアップ◎キッチンはダイニングと横並びで配膳がしやすいように。リビングや和室とも繋がり、家族の様子を見守りながら家事がで… 続きを読む

玄関は2wayで、シューズクロークとウォークインクローゼットを設置し、収納スペースも充実。水回りは回遊動線を採用し、玄関から洗面、脱衣室、キッチンへとスムーズに移動でき、家事の効率もアップ◎キッチンはダイニングと横並びで配膳がしやすいように。リビングや和室とも繋がり、家族の様子を見守りながら家事ができる。リビングの大きな窓から庭へとつながり、土間スペースを活用することで室内外の一体感も感じられる間取りに。

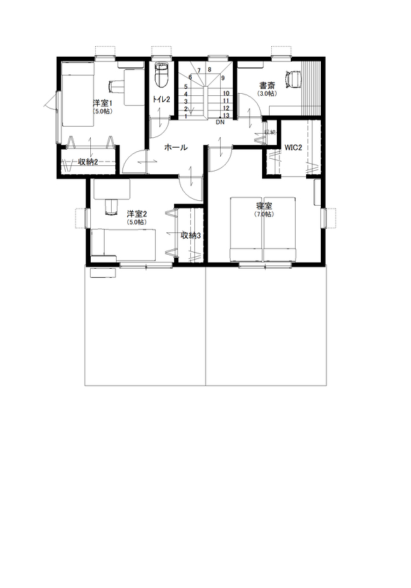
2階
カステルホーム 【回遊動線×子育てしやすい】回遊動線と家族が快適に暮らせる家の間取り図(4LDK+書斎+SIC+WIC)2階

各部屋にしっかりと収納を確保し、寝室にはウォークインクローゼットを採用。書斎は趣味を楽しめる空間に。寝室と書斎のみ無垢のパイン材を使用し、温かみのある雰囲気に仕上げた。

各部屋にしっかりと収納を確保し、寝室にはウォークインクローゼットを採用。書斎は趣味を楽しめる空間に。寝室と書斎のみ無垢のパイン材を使用し、温かみのある雰囲気に仕上げた。

この会社をもっと知りたくなったら
無料でお届け!まずはカタログ請求

内外観ギャラリー

この会社をもっと知りたくなったら
無料でお届け!まずはカタログ請求

施主Kさんがこの会社に決めた理由

こだわりも、快適さも。理想を叶えた、納得の住まい。

友人の紹介で同社を知り、最初に話を聞いた時から、価格がリーズナブルだと感じた。単にリーズナブルなだけでなく、性能もしっかりしており、コストパフォーマンスの高さに驚いたKさん。性能もしっかりしており、気密や断熱性も高く、快適に暮らせる住まいだと実感している。自分たちの要望や理想をしっかりと理解し、それに基づいて提案してくれる姿勢を見て、信用することが出来たそう。また、最初の段階から親身になって相談に乗ってくれたことも大きなポイントのひとつ。こだわりが強かった… 続きを読む

友人の紹介で同社を知り、最初に話を聞いた時から、価格がリーズナブルだと感じた。単にリーズナブルなだけでなく、性能もしっかりしており、コストパフォーマンスの高さに驚いたKさん。性能もしっかりしており、気密や断熱性も高く、快適に暮らせる住まいだと実感している。自分たちの要望や理想をしっかりと理解し、それに基づいて提案してくれる姿勢を見て、信用することが出来たそう。また、最初の段階から親身になって相談に乗ってくれたことも大きなポイントのひとつ。こだわりが強かったが、柔軟に対応し、希望を取り入れてくれる姿勢が決め手となったKさん。その言葉通り、細かな要望を実現してもらえたことで、信頼感が一層深まったそうだ。実際に住んでみると、リビングの開放感や、回遊動線、キッチンの使い勝手の良さが特に気に入っているそう。それもこれも一緒に親身になって考えてくれた同社のおかげと大満足のKさんだ。

この建築実例の担当者より

お施主様の希望を活かし、ご家族の暮らしにぴったりな家づくりができました

初めてお話を伺ったときから、ご家族の理想やこだわりがしっかりと伝わってきました。「リーズナブルなのに性能がしっかりしている」と感じていただけたこと、とても嬉しく思います。私たちが大切にしているのは、ただ価格がリーズナブルなだけではなく、気密性や断熱性を高め、長く快適に暮らせる家をつくること。実際に住んでみて、その快適さを実感していただけたことが何よりの喜びです。また「最初のお打ち合わせから親身に相談に乗ってくれた」とおっしゃっていただきましたが、K様のこだ… 続きを読む

初めてお話を伺ったときから、ご家族の理想やこだわりがしっかりと伝わってきました。「リーズナブルなのに性能がしっかりしている」と感じていただけたこと、とても嬉しく思います。私たちが大切にしているのは、ただ価格がリーズナブルなだけではなく、気密性や断熱性を高め、長く快適に暮らせる家をつくること。実際に住んでみて、その快適さを実感していただけたことが何よりの喜びです。また「最初のお打ち合わせから親身に相談に乗ってくれた」とおっしゃっていただきましたが、K様のこだわりを一つひとつ丁寧に形にすることを大切にしていたので、その思いが伝わっていたことを嬉しく思います。特に間取りについては、回遊動線を取り入れながら、家事がしやすく生活動線がスムーズになるよう、一緒に何度も話し合いましたね。リビングの開放感やキッチンの使い勝手の良さも、実際に暮らしてみて「良かった」と感じていただけたようで、本当に良かったです。K様ご家族がこの家で快適に暮らし、楽しい時間を過ごしていただけることを願っています。これからも長いお付き合いになりますので、何か気になることがあれば、いつでもお気軽にご相談ください。

営業
奥野茂男
得意分野
主婦に寄り添った間取りをご提案いたします。
実績
100棟

この会社の他の建築実例を見る

この建築実例が気になった方へおすすめ

この建築実例の詳細情報

この建築実例を建てた店舗情報

店舗名 カステルホーム 近江八幡店
住所 滋賀県近江八幡市中小森町308-20
問い合わせ
0748-31-0550
  • ※営業時間内の対応となります。

  • ※お問い合わせの際は「SUUMO(スーモ)を見て」とお伝え下さい。

ホームページ この会社のホームページへ

カステルホームのコンテンツ一覧

お問い合わせ

カタログをもらう
工法・技術カタログ
カステルホームのカタログ(カステルホームでかなえる注文住宅 コンセプトブック)
カステルホームでかなえる注文住宅 コンセプトブック
問合コード:1531540001
お問い合わせ先
0748-78-0500
  • ※営業時間内の対応となります。

  • ※お問い合わせの際は「SUUMO(スーモ)を見て」とお伝え下さい。

カステルホーム 甲賀店
  • 滋賀県甲賀市水口町北泉2丁目70番

  • 定休日:水曜日

この会社のホームページへ

この会社が気になったら

カタログをもらう
工法・技術カタログ
カステルホームのカタログ(カステルホームでかなえる注文住宅 コンセプトブック)
カステルホームでかなえる注文住宅 コンセプトブック
問合コード:1531540001

関連キーワード

この建築実例のその他の特徴
ページトップへ戻る